Công trình nằm trên một khu đất ven sông của một thành phố đang trên đà phát triển đô thị mới. Chủ nhân của biệt thự này là một nữ thiết kế thời trang.
Khi thiết kế ngôi nhà, gia chủ cho rằng, ngôi nhà là một tác phẩm nghệ thuật, nơi mọi người trong gia đình có thể trải nghiệm trên từng bước chân. Đó cũng là mục tiêu đặt ra khi thiết kế ngôi nhà.
Ngôi nhà là nơi sinh sống của gia đình, tránh xa nhịp sống hối hả của thành phố. Không chỉ vậy, đây còn là nơi thư giãn, để trở về sau một ngày dài làm việc.
Dựa trên mong muốn và bối cảnh sẵn có, kiến trúc sư tạo ra một ngôi nhà với không gian hướng nội, chú trọng đến sự kết nối hoạt động của các thành viên trong gia đình.
Kiến trúc sư sử dụng cấu trúc tương phản với các ô vuông đơn giản bao bọc bên ngoài tương phản với các đường uốn lượn và cấu trúc đan xen phức tạp của không gian. Điều này đúng theo mong muốn ban đầu của gia chủ là tránh tương tác với không gian bên ngoài và tập trung vào không gian bên trong.
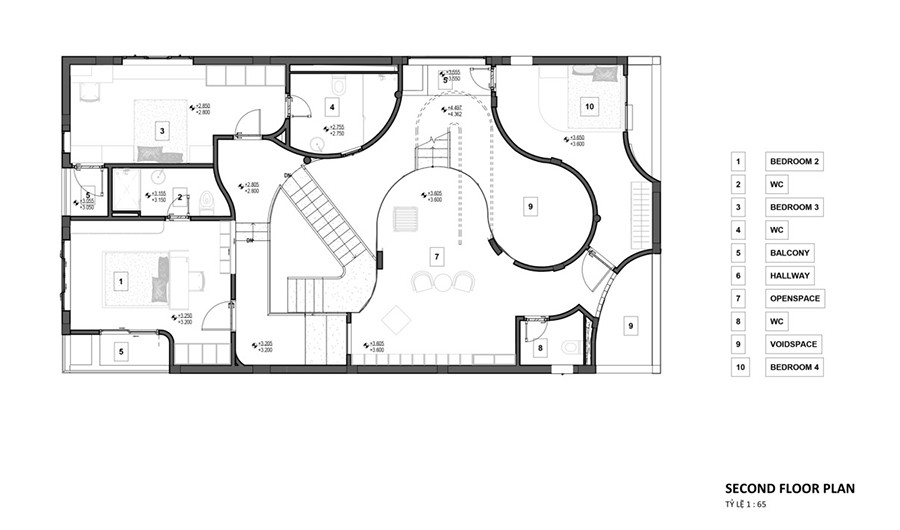
Bên trong là không gian lõi uốn lượn tạo cảm giác ngắm cảnh thú vị cho các thành viên trong nhà. Phần rỗng còn là “lá phổi” của ngôi nhà, nơi tập trung ánh sáng tự nhiên, gió và cây xanh.
Phần lõi này cũng là không gian mở, kết nối các không gian bếp, phòng khách và xóa nhòa ranh giới giữa bên trong và bên ngoài. Tất cả kết hợp với tiếng cười nói của các thành viên trong gia đình tạo nên một bầu không khí sôi động.
Cách tiếp cận của ngôi nhà là một trải nghiệm thú vị. Với góc nhìn từ bên ngoài, ngôi nhà như một chiếc hộp lớn, màu trắng tinh khôi, nổi bật và độc đáo tạo nên sự tò mò, thích thú muốn lại gần.
Một lối vào với cổng lớn và hẹp dần về phía cửa tạo cảm giác chật hẹp cho người bước vào. Bước qua cánh cửa là một không gian hoàn toàn rộng mở.
Không gian phòng khách, bếp, sinh hoạt và nghỉ ngơi được kết nối thông qua hành lang, cầu thang thẳng uốn lượn phù hợp với không gian, một lần nữa phát huy sự tương phản, tạo nên một hình ảnh sống động.
Mỗi vị trí trong nhà đều có một góc nhìn khác nhau được cố tình tạo nên như một bức tranh thú vị. Kiến trúc sư bố trí các không gian theo đường uốn lượn để tối đa hóa sự kết nối giữa bên trong và bên ngoài, đặc và rỗng, con người và thiên nhiên.
Cấu trúc của ngôi nhà với sự tương phản rõ rệt, giữa vuông và tròn; giữa cong và thẳng.
Được kiến tạo từ hình khối chữ nhật, ngôi nhà như một thực thể sống kết nối con người với thiên nhiên và hòa quyện để tồn tại. Ngoài ra, các hoạt động khác nhau của các thành viên trong gia đình tạo nên bức tranh không gian sống động.
