Ngôi nhà đậm chất nghệ thuật giữa những xô bồ, bon chen của phố thị

Ngôi nhà xây 3 tầng với không gian sống đậm chất nghệ thuật, xen lẫn những mảng xanh của cây cối và hình khối bo cong của giếng trời thoáng đãng.

"Anh luôn sợ bọn nhỏ lớn lên rồi khô khan giữa thành phố. Nếu cái đẹp chỉ là trơ trọi với gạch đá và những món đồ công nghệ thì nó vô cảm lắm phải không em?" – đó là tâm sự của chủ nhà với kiến trúc sư khi gặp nhau lần đầu.
Từ mong muốn và ý tưởng của gia chủ, kiến trúc sư Nguyễn Đức Quế cùng cộng sự đã vẽ lên ngôi nhà đẹp, đậm chất nghệ thuật giữa những xô bồ, bon chen của phố thị. Từ đây, kiến tạo nên cuộc sống an yên cho cả gia đình.
Anh Đức Quế cho biết thêm, công trình nằm ở Cửa Lò (Nghệ An), xây trên mảnh đất có kích thước 6,5x22m, tổng diện tích sử dụng sau khi hoàn thiện là 280m2. Trong nhà, anh sử dụng khá nhiều vật liệu tự nhiên, tạo nên sự gần gũi, hài hòa với môi trường, đảm bảo sức khỏe cho gia chủ.
Ngoi nha dam chat nghe thuat giua nhung xo bo, bon chen cua pho thi
Mặt tiền ngôi nhà thiết kế đơn giản,nhẹ nhàng dùng tone trắng sáng nổi bật. Phần nhà ở xây lùi vào trong, nhường lại diện tích cho sân vườn và chỗ để xe.
Ngôi nhà đậm chất nghệ thuật giữa những xô bồ, bon chen của phố thị ảnh 2
Ngôi nhà đậm chất nghệ thuật giữa những xô bồ, bon chen của phố thị ảnh 3
Ngôi nhà đậm chất nghệ thuật giữa những xô bồ, bon chen của phố thị ảnh 4
Phối cảnh bóc mái 3 tầng. Qua đây ta dễ hình dung được công năng sử dụng của nhà. Ngoài phòng ngủ trên tầng 2 và 3, kiến trúc sư đã thiết kế 1 phòng ngủ nhỏ ở tầng 1 cho người lớn tuổi thuận tiện trong sinh hoạt, không phải leo nhiều.
Ngoi nha dam chat nghe thuat giua nhung xo bo, bon chen cua pho thi-Hinh-5
Ban công rộng tầng 2 được dùng trồng cây và đặt bộ bàn ghế gỗ mộc mạc, phục vụ các hoạt động ngoài trời. Đây cũng là phần mái tầng 1, che nắng, mưa. Tuy nhiên, kiến trúc sư cũng bố trí khoảng sân thông tầng, thu ánh sáng tự nhiên và trồng cây ăn quả. Sự phối hợp nhịp nhàng, tầng tầng lớp lớp của các loại cây thể hiện tính thẩm mỹ của nhà.
Ngôi nhà đậm chất nghệ thuật giữa những xô bồ, bon chen của phố thị ảnh 6
Ngôi nhà đậm chất nghệ thuật giữa những xô bồ, bon chen của phố thị ảnh 7
Tầng 1 là phòng khách, sân để xe, phòng ngủ và mảnh vườn mini ở cuối nhà. Bức tượng điêu khắc đậm chất nghệ thuật, mang đến không gian sống duy mỹ và dễ chịu. Phần giếng trời bo cong cho nhà thêm mềm mại.
Ngoi nha dam chat nghe thuat giua nhung xo bo, bon chen cua pho thi-Hinh-8
Mảng tường giếng trời dùng đá rối, có sự bền vững về lâu dài, tránh bị ẩm mốc và tạo điểm nhấn.
Ngoi nha dam chat nghe thuat giua nhung xo bo, bon chen cua pho thi-Hinh-9
Phòng khách nâng cao hơn sàn sảnh tiếp đón nhằm giảm bậc cầu thang và tạo sự phân tách giữa hai không gian. Đá lát sàn màu xám bê tông mang ý đồ của kiến trúc sư, đồng thời cũng giúp gia chủ dễ vệ sinh, tránh ố màu khi sử dụng.
Ngoi nha dam chat nghe thuat giua nhung xo bo, bon chen cua pho thi-Hinh-10
Cửa dẫn ra mảnh vườn mini lấy gió trời cho phòng ngủ.
Ngoi nha dam chat nghe thuat giua nhung xo bo, bon chen cua pho thi-Hinh-11
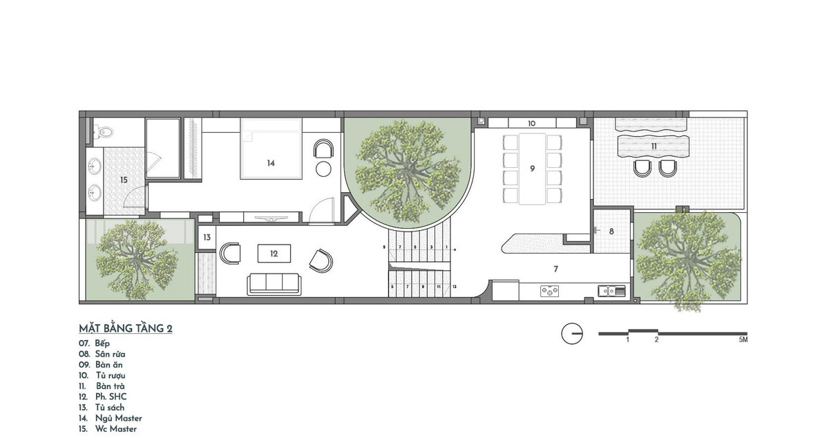
Nhà xây lệch tầng, theo hình zích zắc. Bếp nấu và bàn ăn ở tầng 2, lên vài bậc là vào không gian phòng ngủ. Cách thiết kế này giúp giảm bớt các bậc cầu thang, di chuyển không bị mỏi và mệt.
Ngoi nha dam chat nghe thuat giua nhung xo bo, bon chen cua pho thi-Hinh-12
Một thiết kế hoàn hảo, khiến tất cả các khu vực trong nhà đều có gió trời, ánh sáng tự nhiên.
Ngoi nha dam chat nghe thuat giua nhung xo bo, bon chen cua pho thi-Hinh-13
Từ bàn ăn có thể phóng tầm mắt ra ban công và khoảng không phía xa.
Ngoi nha dam chat nghe thuat giua nhung xo bo, bon chen cua pho thi-Hinh-14
Các thành viên trong gia đình dễ dàng kết nối với nhau qua không gian mở. Sàn lát gạch giả gỗ theo hình xương cá tinh tế, sang trọng.
Ngoi nha dam chat nghe thuat giua nhung xo bo, bon chen cua pho thi-Hinh-15
Màu trắng làm chủ đạo thêm màu gỗ ấm và màu xanh của cây cối là sự kết hợp cơ bản nhưng tạo ra hiệu ứng tuyệt vời.
Ngoi nha dam chat nghe thuat giua nhung xo bo, bon chen cua pho thi-Hinh-16
Sảnh vào nhà rộng mở mang hơi hướng thiết kế Nhật Bản, tối ưu công năng sử dụng, đơn giản nhưng ấm áp.

Người đàn ông chi tiền tỷ để xây ngôi nhà cho mèo đẹp nhất thế giới

Một người yêu mèo ở California đã dành vài thập kỷ và hơn 100.000 USD (hơn 2,3 tỷ VND) để biến ngôi nhà của mình thành ngôi nhà dành cho mèo.

Vườn trong nhà phố - ngôi nhà của ánh sáng, giảm hiệu ứng tiêu cực đô thị

Nhà phố mang thiết kế kiến trúc độc đáo, xen lẫn mảng xanh và khu vườn dịu mát - điều đó giúp không gian sống thêm trong lành.

Kiến trúc sư Phan Duyên chia sẻ, đô thị Việt Nam ngày càng mất đi nhiều khoảng trống cho cây xanh – yếu tố rất cần thiết để môi trường sống trong lành hơn. Do đó các kiến trúc sư không ngừng sáng tạo trong thiết kế đưa được cây xanh vào nhà, giảm các hiệu ứng tiêu cực của đô thị, đồng thời đem lại cảm nhận sự bình an mỗi ngày.
Ngôi nhà tọa lạc tại khu đất có diện tích 5x16m nằm giữa hai ngôi nhà, một kiểu không gian nhà phố điển hình của đô thị Việt Nam. Công trình tọa lạc tại TP.HCM và từng được xuất bản trên các ấn phẩm kiến trúc thế giới Archdaily.
Vuon trong nha pho - ngoi nha cua anh sang, giam hieu ung tieu cuc do thi
Ngay từ mặt tiền, mảng xanh từ cây cối đã gây ấn tượng mạnh.
Với 3 thế hệ sinh sống, yêu cầu của gia chủ là chú trọng đến không gian riêng tư cho từng thành viên cũng như không gian chung để gắn kết các thành viên trong gia đình. Bên cạnh đó, hệ thống thông gió cho toàn bộ nhà cũng được lưu ý đặc biệt để mang lại không gian đối lưu thông thoáng cho ngôi nhà.
Một khoảng trống lớn được đưa ra giữa nhà làm ống thông gió cho mọi không gian. Ánh sáng mặt trời và gió có thể vào nhờ mái kính và cửa gió bằng nhôm trên đỉnh mái. Hai khu vườn nhỏ ở giữa và sau tầng trệt là không gian xanh cho ngôi nhà này.
Phòng ngủ của ông bà được bố trí giữa 2 sân vườn ở tầng trệt, 2 phòng ngủ của con và bố mẹ ở tầng 2, khách - bếp - ăn ở tầng 1 kết nối thành không gian chung để mọi thành viên có thể quây quần bên nhau.
Mọi không gian đều có hai mặt thông ra khoảng trống hoặc sân vườn bằng cửa trượt để cung cấp gió cho phòng. Tầng thượng có một phòng tập thể dục nhỏ mở ra sân vườn, nơi có thể quan sát ánh nắng xuyên qua tán cây vào buổi sáng.
Sự luân chuyển ánh sáng, đối lưu các luồng gió được thực hiện thông qua giếng trời và các cửa lớn ở ban công.
Bếp nấu nằm bên khoảng giếng trời trồng cây bàng lá nhỏ. Loại cây dễ trồng, phát triển xanh tốt và phù hợp khí hậu Việt Nam. Thiết kế bếp hiện đại, gọn gàng, giảm chi tiết rườm rà mang đến không gian thoáng đãng.
Giếng trời còn là nơi thư giãn, nghỉ ngơi cho các thành viên. Chiếc võng độc đáo, thiết kế chắc chắn, an toàn, tăng khả năng vận động cho bé.
Phòng ngủ với phòng tắm hạng 5 sao, dùng vách kính ngăn hiện đại. Do nằm cạnh giếng trời nên không gian bên trong luôn thông thoáng, dễ chịu nhưng ánh sáng cũng không bị quá gắt.
Vuon trong nha pho - ngoi nha cua anh sang, giam hieu ung tieu cuc do thi-Hinh-10
Khu vườn ở sân thượng chan hòa ánh nắng, nhìn ra con phố đông đúc với những nếp nhà đẹp. Chiếc ghế sắt chạy dài cho mọi người ngắm cảnh vật, thiên nhiên vào sáng sớm và chiều tà.
Giếng trời lấy sáng vừa đủ để mọi ngóc ngách đều có khí tươi, dễ chịu. Dưới gốc cây bàng, gia chủ trồng thêm một số cây xanh nữa lọc bụi.
Vuon trong nha pho - ngoi nha cua anh sang, giam hieu ung tieu cuc do thi-Hinh-13
Vườn trong phố, đủ cây cảnh, rau xanh, giàn leo... cung cấp rau sạch quanh năm cho cả nhà.
Vuon trong nha pho - ngoi nha cua anh sang, giam hieu ung tieu cuc do thi-Hinh-14
Cầu thang ốp gỗ ấm áp, dễ chịu. Kiến trúc sư không dùng tay vịn như thông thường mà dùng vách kính đảm bảo an toàn, đồng thời tạo không gian mở cho nhà.

Báo Mỹ trầm trồ biệt thự phủ kín cây xanh ở Thái Bình

Ngôi nhà là sự hội tụ cũng những đường nét truyền thống xen kẽ sự hiện đại, hai yếu tố được chuyển giao mềm mại qua các không gian và cấu trúc.

Bao My tram tro biet thu phu kin cay xanh o Thai Binh
 Ngôi nhà toạ lạc tại vùng quê trồng lúa giáp ranh với thành phố Thái Bình. Phần lớn dân số ở đây làm nông nghiệp và trồng lúa.

Đọc nhiều nhất

CSGT TP HCM ra quân cao điểm TTATGT

CSGT TP HCM ra quân cao điểm TTATGT

Cùng với các Đội, Trạm thuộc PC08, 100% quân số Đội CSGT Rạch Chiếc được huy động, đồng loạt thực hiện cao điểm xử lý TTATGT, nhất là các "điểm nóng".

Tin mới

CSGT TP HCM ra quân cao điểm TTATGT

CSGT TP HCM ra quân cao điểm TTATGT

Cùng với các Đội, Trạm thuộc PC08, 100% quân số Đội CSGT Rạch Chiếc được huy động, đồng loạt thực hiện cao điểm xử lý TTATGT, nhất là các "điểm nóng".