Biệt thự hiện đại này tọa lạc tại một khu vực yên tĩnh, thanh bình của Thành phố Nha Trang, cách xa trung tâm sầm uất của một thành phố với đầy ắp khách du lịch.
Đơn vị thiết kế hướng đến mục tiêu tạo ra một không gian để cả gia đình có thể cùng nhau trải qua những giây phút yên bình, tĩnh lặng và thư giãn. Kiến trúc sư đưa ra thiết kế với mật độ xây dựng thấp, quy mô 1 trệt 2 lầu. Đảm bảo đủ công năng sử dụng, đồng thời tạo thêm không gian thư giãn xen kẽ khắp nhà.
Sân vườn mà chủ nhà đã về hưu sẽ dành nhiều thời gian chăm sóc và tận hưởng là nơi sinh sống của những loài cây mộc mạc, giản dị nhưng thích hợp với nắng và gió biển. Từ khu vườn này, gia chủ có thể cảm nhận được niềm vui của cuộc sống, nhận thấy sự chuyển động của thời gian khi những chùm cây phát triển từng ngày.
Biệt thự được thiết kế đơn giản với nhiều không gian. Đây là những không gian để con người cảm nhận được bản sắc của mình với thiên nhiên. Để tạo ra một cuộc sống "không biên giới", các kiến trúc sư đã bỏ nhiều bức tường bên trong ngôi nhà cũng như mở những bức tường với không gian bên ngoài. Thay vào đó là những bộ bàn ghế, những thanh ray bằng gỗ hay những tấm kính lớn để kết nối không gian.
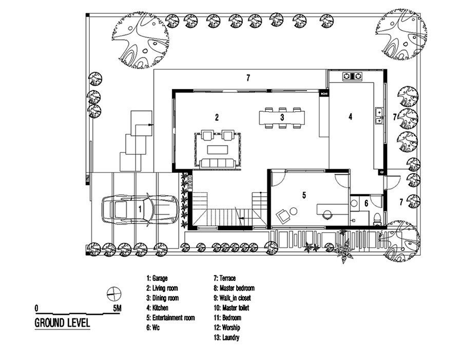
Tầng trệt của ngôi nhà chính là điển hình của thiết kế này. Đó là một không gian rộng lớn liên thông phòng khách, bếp, bàn ăn. Nội thất sử dụng bên trong đơn giản theo yêu cầu của ngôi nhà.
Không quá cầu kỳ, nội thất tầng trệt mang phong cách hiện đại, gọn gàng và được bố trí hợp lý. Ngay tại không gian bếp, bàn ăn, hệ thống cửa thông ra sân vườn được thiết kế linh hoạt nhằm tạo sự kết nối tối đa giữa trong nhà và ngoài trời. Ngay cả khi trời mưa, gia chủ vẫn có thể thưởng thức bữa tối ngay bên bãi cỏ và thả hồn vào thiên nhiên.
Để giữ được sự riêng tư, tĩnh lặng nhưng đồng thời giữ được sự đồng hành với sinh hoạt chung của tất cả các thành viên trong gia đình, phòng thư giãn của gia chủ được thiết kế bằng những khung kính trong suốt. Để khi thưởng thức một cuốn sách, họ vẫn có thể ngắm nhìn quang cảnh xung quanh một cách thoải mái.
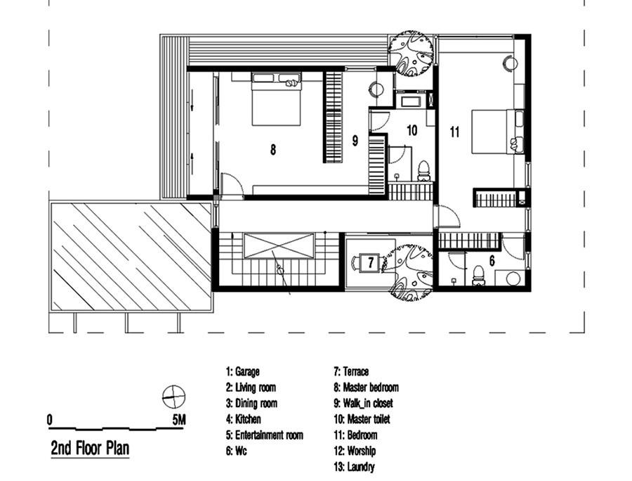
Lên một tầng khác, qua cầu thang gỗ, không gian tầng mở ra với sự yên bình và tĩnh lặng. Không quá nhiều nắng, gió, tầng 1 với khung kính và cửa chớp bằng gỗ tạo ra không gian thư giãn nhẹ nhàng hơn.
Kiến trúc sư hy vọng, cả gia đình sẽ tận hưởng khoảng thời gian quý báu bên nhau thông qua ý tưởng thiết kế cơ bản của ngôi nhà này. Trong khi đó, đơn vị thiết kế tin rằng: “Mục tiêu của kiến trúc sư ... là tạo ra một thiên đường, hay đơn giản hơn là không gian sống với niềm vui và hạnh phúc. Mỗi ngôi nhà, mỗi sản phẩm kiến trúc… đều phải là thành quả nỗ lực để xây dựng một nơi đáng sống cho mọi người".







