Mê mẩn biệt thự có chỗ đậu siêu xe ngay phòng khách ở TP.HCM

Các không gian được thiết kế mở mang lại tầm nhìn thoáng đãng nhưng vẫn giữ được sự riêng tư.

Me man biet thu co cho dau sieu xe ngay phong khach o TP.HCM
Biệt thự toạ lạc ở P.Thảo Điền, TP.Thủ Đức, nơi được biết đến là "khu nhà giàu" của TP.HCM. 
Me man biet thu co cho dau sieu xe ngay phong khach o TP.HCM-Hinh-2
Mặt tiền công trình. 

Tầng hầm của biệt thự có sức chứa 7 ô tô, có khoảng sân vườn lấy sáng và thông gió tự nhiên. Lối vào chính bắt đầu từ đây, theo đoạn đường dốc đi xuyên qua không gian mở với tràn ngập cây xanh này, dẫn lên tầng trên là không gian sinh hoạt, nhà bếp và ăn uống thoáng đãng. 

Me man biet thu co cho dau sieu xe ngay phong khach o TP.HCM-Hinh-3
Mặt bằng chi tiết tầng hầm biệt thự. 
Me man biet thu co cho dau sieu xe ngay phong khach o TP.HCM-Hinh-4
Tầng hầm có khoảng sân nhỏ. 
Me man biet thu co cho dau sieu xe ngay phong khach o TP.HCM-Hinh-5
Ga-ra ở tầng hầm có sức chứa 7 chiếc xe ô tô. 
Me man biet thu co cho dau sieu xe ngay phong khach o TP.HCM-Hinh-6
Có lối đi dốc từ tầng hầm lên tầng trệt. 
Me man biet thu co cho dau sieu xe ngay phong khach o TP.HCM-Hinh-7
Giếng trời ở giữa nhà giúp lấy ánh sáng và thông gió. 

Tầng trệt được thiết kế mở, không có tường ngăn, tạo sự kết nối trực quan cho toàn bộ khuôn viên. Không gian chức năng được thiết kế mở trực tiếp ra sân vườn và cảnh quan xung quanh. 

Từ tầng này, gia chủ có thể có tầm nhìn trực diện ra bộ sưu tập ô tô. Kết cấu được tối giản hóa, tận dụng dầm vượt nhịp dài, tạo cho không gian sự thông thoáng và sang trọng.

Me man biet thu co cho dau sieu xe ngay phong khach o TP.HCM-Hinh-8
Mặt cắt của cộng trình. 
Me man biet thu co cho dau sieu xe ngay phong khach o TP.HCM-Hinh-9
Mặt bằng chi tiết tầng trệt của biệt thự. 
Me man biet thu co cho dau sieu xe ngay phong khach o TP.HCM-Hinh-10
Biệt thự như một khối hộp nằm trên các cột giúp giải phóng không gian cho tầng trệt. 
Me man biet thu co cho dau sieu xe ngay phong khach o TP.HCM-Hinh-11
Tại tầng trệt còn có một lối vào nhà cho xe ô tô. 
Me man biet thu co cho dau sieu xe ngay phong khach o TP.HCM-Hinh-12
Có chỗ đậu ô tô ở ngay không gian tiếp khách. 
Me man biet thu co cho dau sieu xe ngay phong khach o TP.HCM-Hinh-13
Không gian phòng khách vô cùng thoáng đãng. 
Me man biet thu co cho dau sieu xe ngay phong khach o TP.HCM-Hinh-14
Khoảng thông tầng nằm giữa nhà giúp cho gia chủ ở tầng trệt có thể nhìn ngắm siêu xe ở tầng hầm. 
Me man biet thu co cho dau sieu xe ngay phong khach o TP.HCM-Hinh-15
Chùm đèn trang trí được bố trí ngay trên chỗ đậu xe ô tô trong nhà. 
Me man biet thu co cho dau sieu xe ngay phong khach o TP.HCM-Hinh-16
Nhà bếp và không gian ăn uống liên thông với phòng khách. 
Me man biet thu co cho dau sieu xe ngay phong khach o TP.HCM-Hinh-17
Không gian bếp và bàn ăn có hướng nhìn ra bể bơi vô cực. 
Me man biet thu co cho dau sieu xe ngay phong khach o TP.HCM-Hinh-18
Sân sau là khoảng không gian riêng tư của gia đình.
Me man biet thu co cho dau sieu xe ngay phong khach o TP.HCM-Hinh-19
Bể bơi vô cực nhìn từ trên cao. 
Me man biet thu co cho dau sieu xe ngay phong khach o TP.HCM-Hinh-20
Việc hạn chế tối đa tường ngăn giúp người trong nhà dễ dàng tận hưởng môi trường thiên nhiên. 

Với sân sau là không gian riêng tư chính của gia đình, hồ bơi được bố trí liên thông với nhà bếp và không gian ăn uống. Không gian được bao bọc bởi một tán cây rộng lớn để tránh ánh nắng gay gắt của nhiệt đới và gió mùa, đồng thời người trong nhà có thể trải nghiệm những yếu tố tự nhiên này.

Thiết kế được lấy cảm hứng từ hình tượng xếp lớp trong trang phục truyền thống Việt Nam. Đó là sự kết hợp của nhiều lớp vải mỏng, duyên dáng nhưng vẫn quyến rũ, đáp ứng được cả điều kiện khí hậu và sự kín đáo truyền thống. 

Me man biet thu co cho dau sieu xe ngay phong khach o TP.HCM-Hinh-21
Ba phòng ngủ được bố trí ở tầng trên cùng của biệt thự. 
Me man biet thu co cho dau sieu xe ngay phong khach o TP.HCM-Hinh-22
Cả ba phòng ngủ đều có ánh sáng tự nhiên. 
Me man biet thu co cho dau sieu xe ngay phong khach o TP.HCM-Hinh-23
Phòng ngủ lớn còn có tầm nhìn ra khoảng thông tầng. 
Me man biet thu co cho dau sieu xe ngay phong khach o TP.HCM-Hinh-24
Nhà vệ sinh của phòng ngủ lớn rất rộng rãi.
Me man biet thu co cho dau sieu xe ngay phong khach o TP.HCM-Hinh-25
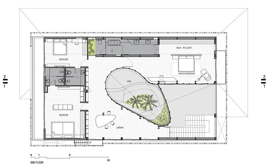
Ngoài ba phòng ngủ còn có Không gian đọc sách ở tầng trên cùng. 
Me man biet thu co cho dau sieu xe ngay phong khach o TP.HCM-Hinh-26
Căn biệt thự này có diện tích gần 1.100m2. 

Lấy vợ đại gia, sao nam Việt sống trong biệt thự hoành tráng cỡ nào?

Sau khi kết hôn với vợ doanh nhân, Quý Bình sống trong căn biệt thự ngập tràn hoa tươi tại quận 7 (TP  HCM) còn Trương Nam Thành sống trong biệt thự sang trọng bậc nhất Hà thành.

Lay vo dai gia, sao nam Viet song trong biet thu hoanh trang co nao?
Sau khi kết hôn với doanh nhân Ngọc Tiền, diễn viên Quý Bình dọn về sống tại căn biệt thự ở quận 7 (TP HCM). Căn nhà được Quý Bình xây từ năm 2019 để chuẩn bị cho cuộc sống hôn nhân. Ảnh: Lao động 

10 mẫu biệt thự vườn từ 500 triệu được ưa chuộng nhất hiện nay

(Kiến Thức) - Tùy theo khả năng tài chính mà gia chủ có thể lựa chọn một trong những mẫu biệt thự vườn đang được ưa chuộng hiện nay như biệt thự vườn 1 tầng, biệt thự 2 tầng, biệt thự mini...

10 mau biet thu vuon tu 500 trieu duoc ua chuong nhat hien nay
 Biệt thự vườn 1 tầng hiện đại được thiết kế đơn giản với mái 4 và có thêm 3 ống khói giả tạo điểm nhấn. Ảnh: Thietkethicongnhadep.

Bên trong dinh thự “đắt nhất thế giới” bị rao bán do chủ vỡ nợ

Siêu dinh thự trải rộng như một cung điện hiện đại trên trên một quả đồi nhìn xuống Los Angeles. Trong dinh thự có 9 phòng ngủ, nhiều bếp, một hộp đêm, sân chơi bowling 9 làn...

Ben trong dinh thu “dat nhat the gioi” bi rao ban do chu vo no
 Tọa lạc tại khu phố Bel Air (Los Angeles, Mỹ), dinh thự rộng gần 10.000 m2 có tên  "The One" từng được dự kiến niêm yết với giá 500 triệu USD, đắt nhất thế giới. Ảnh: CNBC

Đọc nhiều nhất

Ra đầu thú sau 19 năm trốn truy nã

Ra đầu thú sau 19 năm trốn truy nã

Sau khi gây án, Thạch Mi Na (TP Cần Thơ) đã bỏ trốn khỏi địa phương, không chấp hành yêu cầu làm việc của cơ quan Công an, gây khó khăn cho công tác điều tra.

Tin mới