Sở hữu 2 căn hộ nối liền tại tầng 4 và tầng 5 ở một tòa chung cư 20 năm tuổi, một gia chủ ở Nhật Bản đã quyết định cải tạo lại 2 căn hộ để thông tầng nhằm tạo ra khu vườn làm chỗ cho bạn bè tụ tập, thưởng trà dịp năm mới.
Trong hình là các trụ bê tông RC ở phía trước được tháo dỡ để tạo không gian cho khoảng thông tầng.
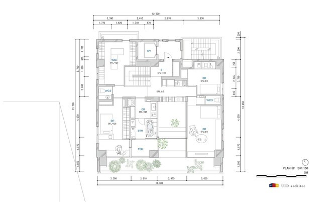
Theo KTS, 2 căn hộ sau khi thông tầng có tổng diện tích là 315m2 với mặt tiền thoáng mát, giúp không gian sống của gia chủ thêm thoải mái và tiện nghi hơn.
Điểm nhấn đặc biệt trong việc cải tạo công trình là các KTS đã tận dụng khoảng thông tầng phía trước để làm sân vườn trồng cây giúp gia chủ có không gian nghỉ ngơi, hóng gió và làm nơi thưởng trà, hàn huyên khi bạn bè đến chơi dịp đầu năm.
Toàn bộ các khu vực bên trong đều được kết nối với khu vực ngoài trời thông qua các khung cửa kính để tận dụng nguồn ánh sáng và không khí tự nhiên ngoài trời.
Đồ dùng trong nhà chủ yếu sử dụng vật liệu gỗ tự nhiên được trang trí theo phong cách tối giản, nhẹ nhàng đậm chất Nhật Bản.
Nhiều người cho rằng thiết kế độc đáo này chắc chắn sẽ ngày càng trở nên phổ biến trong tương lai bởi tính ứng dụng và những trải nghiệm tuyệt vời mà nó mang lại cho gia chủ trong quá trình sinh hoạt thường nhật.
Tầng 1 là không gian của phòng khách, bếp và phòng ăn, các phòng này nằm thông suốt và nối liền với khu vực sân vườn phía trước để tạo sự kết nối với thiên nhiên.
Các phòng ngủ, phòng thay đồ và nhà vệ sinh nằm lùi lại phía sau và được bố trí độc lập để bảo đảm sự kín đáo và riêng tư tối đa cho gia chủ trong quá trình sinh hoạt hàng ngày.
Tất cả phòng tại tầng 2 đều được tách biệt, mỗi phòng là một không gian độc lập để mang đến sự riêng tư tối đa cho gia chủ.
Góc uống trà bên khung cửa sổ trong phòng ngủ mang đến thêm không gian thư giãn trong nhà khi cần nghỉ ngơi.
Bàn làm việc với tầm nhìn bao quát khung cảnh thành phố.
KTS bố trí các cửa sổ tại các vị trí hợp lý để kết nối với không gian chung lấy sáng và không khí, đồng thời, tạo cảm giác thoải mái, dễ chịu cho gia chủ trong quá trình sinh hoạt hàng ngày.
Sơ đồ cấu trúc nhà sau khi cải tạo.

