Biệt thự hiện đại 3 tầng có mái gấp độc đáo ở vùng ven Sài Gòn

Biệt thự hiện đại 3 tầng này có thiết kế thông minh với phần xây dựng kiên cố và hàng hiên.

Nằm trong một khuôn viên xanh mát, đa chức năng với các biệt thự, khu vui chơi giải trí, sân tennis, quán cà phê, hồ bơi và khu vườn, biệt thự hiện đại 3 tầng với mái gấp này có thiết kế thông minh dựa trên hai phần: Phần được xây dựng kiên cố làm tòa nhà chính và phần tiền chế như hiên.

Biệt thự hiện đại 3 tầng có mái gấp độc đáo ở vùng ven Sài Gòn ảnh 1
Vị trí biệt thự nằm ngay góc của khu đất thuộc một quận vùng ven Sài Gòn. 
Biệt thự hiện đại 3 tầng có mái gấp độc đáo ở vùng ven Sài Gòn ảnh 2
Phần lớn diện tích đất được sử dụng làm sân vườn với nhiều loại cây cảnh. 
Biệt thự hiện đại 3 tầng có mái gấp độc đáo ở vùng ven Sài Gòn ảnh 3
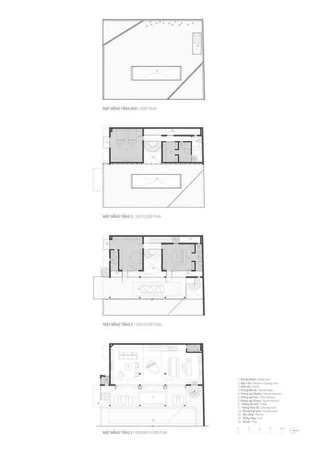
Mặt bằng chi tiết các tầng của biệt thự. 
Biệt thự hiện đại 3 tầng có mái gấp độc đáo ở vùng ven Sài Gòn ảnh 4
Thiết kế mặt đứng và mặt cắt của công trình. 

Mái ngói gấp nối hai phần này với nhau, giúp giảm chiều cao công trình, che chắn ánh nắng từ phía Đông, hướng toàn bộ không gian sống về phía sân vườn và hồ bơi.

Biệt thự hiện đại 3 tầng có mái gấp độc đáo ở vùng ven Sài Gòn ảnh 5
Thiết kế mái gấp độc đáo. 
Biệt thự hiện đại 3 tầng có mái gấp độc đáo ở vùng ven Sài Gòn ảnh 6
Biệt thự được chia làm 2 phần: Phần xây dựng kiên cố và hàng hiên. 
Biệt thự hiện đại 3 tầng có mái gấp độc đáo ở vùng ven Sài Gòn ảnh 7
Mái gấp giúp che chắn ánh nắng từ hướng Đông...
Biệt thự hiện đại 3 tầng có mái gấp độc đáo ở vùng ven Sài Gòn ảnh 8
...đồng thời hướng không gian sống về phía hồ bơi và sân vườn. 
Biệt thự hiện đại 3 tầng có mái gấp độc đáo ở vùng ven Sài Gòn ảnh 9
Không gian tại tầng 1 của biệt thự. 
Biệt thự hiện đại 3 tầng có mái gấp độc đáo ở vùng ven Sài Gòn ảnh 10
Nhà bếp và bàn ăn tràn ngập ánh sáng tự nhiên. 
Biệt thự hiện đại 3 tầng có mái gấp độc đáo ở vùng ven Sài Gòn ảnh 11
Không gian bếp và bàn ăn có tầm nhìn ra hồ bơi.
Biệt thự hiện đại 3 tầng có mái gấp độc đáo ở vùng ven Sài Gòn ảnh 12
Các không gian chức năng bố trí tại tầng 1 được thiết kế liên thông với nhau. 
Biệt thự hiện đại 3 tầng có mái gấp độc đáo ở vùng ven Sài Gòn ảnh 13
Cửa ngăn cách giữa không gian trong nhà và hồ bơi có thể đóng mở linh hoạt. 
Biệt thự hiện đại 3 tầng có mái gấp độc đáo ở vùng ven Sài Gòn ảnh 14
Cầu thang xoắn ốc giúp lưu thông từ các phòng ngủ trên tầng 2 xuống thằng hồ bơi. 
Biệt thự hiện đại 3 tầng có mái gấp độc đáo ở vùng ven Sài Gòn ảnh 15
Cầu thang được bố trí ở khoảng thông tầng, vị trí trung tâm của biệt thự. 
Biệt thự hiện đại 3 tầng có mái gấp độc đáo ở vùng ven Sài Gòn ảnh 16
Bộ bàn ghế lớn được đặt ở khu vực ngoài trời của tầng 2. 
Biệt thự hiện đại 3 tầng có mái gấp độc đáo ở vùng ven Sài Gòn ảnh 17
Về đâm, nơi đây sẽ trở thành không gian thư giãn khá thú vị.

Toàn bộ mặt ngoài của biệt thự này được ốp bằng đá ong, kết hợp với mái ngói làm cho công trình có tính thẩm mỹ và vững chãi hơn. Thiết kế này tạo ra không gian rất lý tưởng cho gia chủ trong những buổi thư giãn cuối tuần riêng tư.

Biệt thự hiện đại 3 tầng có mái gấp độc đáo ở vùng ven Sài Gòn ảnh 18
Mặt ngoài của biệt thự được ốp bằng đá ong. 

Tố cáo của bà Phương Hằng không đúng: “Gậy ông có đập lưng bà”?

Cơ quan công an kết luận bà Phương Hằng tố ông Võ Hoàng Yên không có dấu hiệu tội phạm. Dư luận đặt câu hỏi: Liệu "gậy ông có đập lưng bà”?.

To cao cua ba Phuong Hang khong dung: “Gay ong co dap lung ba”?
Mới đây, Cơ quan CSĐT Công an TP HCM đã ra Quyết định không khởi tố vụ án hình sự đối với đơn tố giác về tội phạm của bà Nguyễn Phương Hằng đối với ông Võ Hoàng Yên. Viện KSND TP HCM cũng có kết luận quyết định của cơ quan điều tra là có căn cứ, đúng pháp luật.  
To cao cua ba Phuong Hang khong dung: “Gay ong co dap lung ba”?-Hinh-2

Lý do không khởi tố vụ án do cơ quan điều tra xác định việc bà Hằng tố cáo Võ Hoàng Yên không có dấu hiệu tội phạm. Quá trình điều tra không có căn cứ chứng minh việc ông  Yên đưa ra thông tin gian dối để bà Hằng tin tưởng mà giao tiền, không có căn cứ chứng minh việc ông Yên sử dụng số tiền vào mục đích bất hợp pháp, gian dối nhằm chiếm đoạt. Số tiền 183 tỷ đồng, trong đó có 60 tỷ tiền mặt, bà Hằng tự nguyện đưa cho ông Yên để trả nợ và xây dựng, sửa chữa chùa, làm từ thiện. 

Nhà mái Thái cấp 4 đẹp như mơ được ưa chuộng ở nông thôn

Những mẫu nhà mái Thái cấp 4 dù nhìn đơn giản, mộc mạc nhưng mang vẻ đẹp khó cưỡng, dễ dàng thu hút ánh nhìn của mọi người.

Nhà mái Thái cấp 4 có sân vườn rộng rãi là kiến trúc đang thịnh hành ở vùng nông thôn hiện nay.

Bên cạnh công năng, không gian sử dụng, nhiều gia đình bắt đầu chú ý đến môi trường sống, cảnh quan thiên nhiên quy hoạch hợp lý…

Chủ Facebook Hoàng Hường bị cướp tại nhà vì khoe tiền khi livestream

Thấy Facebook ‘‘Hoàng Hường’’ bán hàng livestream khoe nhiều cục tiền, hai tên cướp đã mua súng để đến cướp.

Chu Facebook Hoang Huong bi cuop tai nha vi khoe tien khi livestream

Phòng Cảnh sát hình sự, Công an TP Hà Nội và Công an huyện Thạch Thất vừa bắt giữ 2 đối tượng Trần Văn Hào (SN 1987; trú tại Gia Hanh, Can Lộc, Hà Tĩnh) và Phan Ngọc Trăm (SN 1999; trú tại Chi Lăng, Chi Lăng, Lạng Sơn) để điều tra về hành vi cướp tài sản. 

Chu Facebook Hoang Huong bi cuop tai nha vi khoe tien khi livestream-Hinh-2

Đáng chú ý, theo lời khai của hai đối tượng, tháng 7/2021, qua mạng xã hội Facebook, Phan Ngọc Trăm quen biết Trần Văn Hào và cùng bàn bạc cùng chuẩn bị hung khí đi cướp tài sản. Hào lên mạng xã hội mua 1 khẩu súng bắn đạn bi với giá 32 triệu đồng và chuẩn bị 1 xe máy, 1 áo và 1 mũ bảo hiểm Grab, 3 đôi găng tay bằng vải, băng dính để làm phương tiện đi cướp tài sản. 

Đọc nhiều nhất

Tin mới