Khu đất không có hướng nhìn ra biển. Từ nhược điểm đó, kiến trúc sư quyết định thiết kế biệt thự vườn với khoảng sân rộng bên trong như những ngôi nhà truyền thống của Việt Nam. Trong khi với thiết kế quy hoạch tổng thể, kiến trúc sư đã bố trí những ngôi biệt thự san sát nhau như những làng nghề truyền thống ở Việt Nam.
Với hình ảnh những con đường tre, những con đường giao thông bên trong dự án được thiết kế nhỏ nhắn, uốn lượn như những con ngõ quê, tạo cảm giác thân quen cho gia chủ.
Mỗi cụm 5 hoặc 7 biệt thự tạo thành một xóm nhỏ với lối đi riêng và sân chung. Trong khi đó, mỗi căn biệt thự vẫn giữ được không gian riêng tư, yên tĩnh và lãng mạn tuyệt đối trong lối kiến trúc độc đáo.
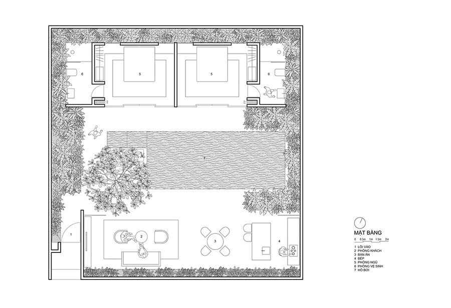
Kiến trúc sư duy trì sự riêng tư cho các biệt thự với những bức tường cao 3 mét và tối đa hóa việc mở ra thiên nhiên bằng cách không sử dụng cửa bên trong mỗi biệt thự.
Với thiết kế độc đáo có sự kết nối từ thiên nhiên đến con người, các không gian trong mỗi căn biệt thự của khu nghỉ dưỡng làm cho gia chủ như lạc vào không gian xanh mát.
Các phòng và sân vườn riêng tư được bao phủ bởi một “bức màn” cây xanh treo trên mái nhà. Các không gian trong biệt thự đều được mở rộng để đón ánh sáng tự nhiên đến mọi ngóc ngách. Chính điều đó đã khiến cho ngôi biệt thự trở thành sự kết hợp hài hòa giữa thiên nhiên và kiến trúc.
Bên trong mỗi căn biệt thự, nội thất cũng được làm bằng vật liệu mộc mạc, thân thiện với thiên nhiên.


