Mẫu nhà đẹp 2 tầng 5x20 dạng ống

Với diện tích đất có hạn, nhà ống là lựa chọn phổ biến ở các vùng thành thị. Nhà ống 2 tầng thỏa mãn được các tiêu chí như chi phí xây dựng, thiết kế đơn giản, diện tích 3-4 người sống thoải mái. Không những thể, kiểu nhà này vẫn cho phép chủ nhà có sự biến tấu về kiến trúc, đầu tư mặt tiền đẹp mắt...

Mẫu nhà 2 tầng chữ L

Mẫu nhà 2 tầng chữ L phù hợp với thị hiếu và nhu cầu sử dụng của cư dân ở các vùng nông thôn do diện thích rộng rãi, dễ thiết kế và thi công. Với chi phí chỉ vài trăm triệu đồng, bạn hoàn toàn có thể xây dựng được một căn nhà 2 tầng tiện nghi và thoải mái cho gia đình.

Mẫu nhà 2 tầng mái thái

Với diện tích đất nhỏ hơn, các nhà ở nông thôn vẫn có thể thiết kế theo mẫu nhà 2 tầng 3 phòng ngủ mái thái. Đây là kiểu nhà có chi phí xây dựng hợp lý nhưng vẫn đảm bảo không gian sinh hoạt thoải mái cho gia đình.
Kiểu nhà này cũng có ưu điểm là không bị lỗi mốt, chống nóng, chống thấm hiệu quả hơn mái bằng. Mái thái thường được lợp bằng ngói nên không gây ra tiếng ồn khó chịu như mái tôn.

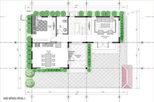
Mẫu nhà 2 tầng mái bằng hình vuông

Với những mảnh đất vuông vắn, bạn vẫn hoàn toàn có thể thiết kế được một căn nhà đẹp. Không cần lo lắng vì căn nhà không đủ đầu sâu mà chỉ cần bố trí phòng ốc, nội thất hợp lý thì ngôi nhà vẫn đảm bảo được yếu tố thẩm mỹ và tận dụng hết mọi diện tích.

Mẫu nhà 2 tầng 1 tum

Mẫu nhà 2 tầng 1 tum là thiết kế phổ biến được ưa chuộng ở cả thành thị và nông thôn. Phần tum ở phía trên cùng không đòi hỏi chi phí xây dựng lớn như một tầng nhà hoàn chỉnh mà vẫn cung cấp thêm diện tích sử dụng. Bạn có thể sử dụng khu vực này làm nơi giặt giũ, phơi quần áo hoặc biến thành vườn cây xanh cho căn nhà thêm tươi mát.



