Nhà cấp 4 là kiểu nhà có phong cách kiến trúc đa dạng, đáp ứng được yêu cầu chi phí thấp mà vẫn đảm bảo không gian sống thoải mái dù gia đình đông người. Kiểu nhà này phù hợp với cả vùng nông thôn và thành thị.
Tùy theo diện tích đất và tài chính, mỗi gia đình có thể chọn thiết kế nhà cấp 4 phù hợp mà vẫn đảm bảo yếu tố đẹp, hiện đại, tiện ích.
Hãy cùng tham khảo một số mẫu nhà cấp 4 đẹp dành cho năm 2022 dưới đây nhé.
Đây là mẫu nhà cấp 4 phổ biến nhất dành cho các gia đình có diện tích đất rộng. Thiết kế mái thái không chỉ đẹp mà còn có ưu điểm chống nắng, chống nóng, chống ẩm tốt... Đây cũng chính là lý do trong những năm gần đây, kiểu nhà mái thái trở nên phổ biến.



Để phù hợp với nhu cầu sinh hoạt hiện nay, các kiểu nhà có sân vườn và gara ô tô cũng được ưa chuộng. Với điện tích đất rộng khoảng 100m2, bạn có thể bố trí căn nhà gồm phòng khách, phòng bếp, 3 phòng ngủ, nhà tắm, gara ô tô hoặc sân vườn.



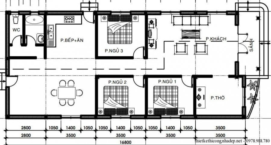
Với diện tích sử dụng đất rộng, bạn có thể thiết kế một căn nhà cấp 4 có từ 2-3 phòng ngủ, đảm bảo thuận tiện ngay cả khi gia đình có đông người.



Thiết kế gác lửng giúp gia tăng diện tích sử dụng của căn nhà. Bạn có thể bố trí thêm phần ban công thoáng đãng và tận dụng để làm nơi trồng cây cảnh hoặc bố trí một số vật dụng khác.


Kiểu nhà này được thiết kế theo phong cách châu Âu hoặc Bắc Âu dành cho những người thích sự hiện đại, đơn giản.


Đây là kiểu thiết kế đơn giản, không sợ lỗi mốt theo thời gian.

Đây là mẫu nhà khá phổ biến ở Việt Nam. Thiết kế ngôi nhà hình chữ L giúp tiết kiệm chi phí, tận dụng tối đa diện tích sử dụng.

Mẫu nhà này phù hợp với gia đình có diện tích đất hẹp, chi phí xây dựng thấp. Ngôi nhà có thiết kế 1 phòng khách, 1 phòng bếp, 2 phòng ngủ đảm bảo sự thuận tiện cho người sử dụng.

Mẫu nhà này có thiết kế thông minh, hiện đại mang đến không gian sống lý tưởng cho các gia đình. Bạn có thể tận dụng tum làm phòng sinh hoạt chung, sân phơi, phòng thờ đều được.
