Tư vấn xây nhà 75m2 khang trang, hiện đại
Kiến trúc sư tư vấn thiết kế nhà có diện tích vừa phải nhưng tiện nghi và độc đáo với mức chi phí hợp lý.
Hỏi: Tôi có mảnh đất không rộng nhưng vuông vắn, đẹp. Diện tích mảnh đất là 75m2, mặt tiền 5m, chiều dài 15m. Gia đình tôi muốn xây nhà bốn tầng trong năm nay. Công năng từng tầng cụ thể như sau:
- Tầng 1 gồm có: Phòng khách, nhà bếp và bàn ăn.
- Tầng 2 gồm có: Hai phòng ngủ, một phòng tắm.
- Tầng 3 gồm có: Một phòng ngủ, một phòng tắm và một phòng sinh hoạt chung.
- Tầng 4 gồm có: Phòng thờ, phòng giặt, phòng xông hơi và sân phơi.
Về kiến trúc mặt tiền tôi muốn nhà mình chắc chắn nhưng không quá thô cứng, đẹp hiện đại và thoáng mát. Mong Kiến trúc sư (KTS) dành thời gian tư vấn giúp gia đình tôi. Tôi xin chân thành cảm ơn KTS và Ban biên tập chuyên mục Nhà vườn.
(CMĐ – Nam Định)
Trả lời:
Dựa theo những thông tin gia chủ cung cấp thì mảnh đất khá vuông vắn. Xét về số lượng các phòng chức năng tương ứng với các tầng theo mong muốn của chủ nhà là hoàn toàn phù hợp. Điều quan trọng là KTS cân nhắc để từng phòng đều thoáng mát và sáng mang lại không gian sống dễ chịu cho các thành viên trong gia đình. Dưới đây là phương án thiết kế nhà chi tiết do KTS Bùi Anh Toàn cân nhắc kỹ lưỡng và đưa ra:
Về phương án thiết kế mặt bằng
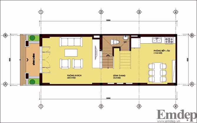
- Mặt bằng tầng 1:
Ở tầng 1, phía trước KTS trừ ra một khoảng diện tích vừa đủ làm nơi để xe và trồng cây cảnh. Không gian tiếp khách và bếp được cân đối rộng tương đối đồng đều. Phòng khách thoáng mở cửa rộng nhìn ra sân trước nhà. Phòng bếp và bàn ăn được sắp xếp chung trong một không gian để tiết kiệm diện tích.
Ở phòng này KTS cũng thiết kế hệ thống hút mùi và các cửa thoáng khí để nơi nấu nướng luôn sạch sẽ, thông thoáng, không bị ám mùi thức ăn. Bên cạnh hai phòng chính như ý muốn của gia chủ, KTS còn thiết kế thêm một phòng vệ sinh tận dụng góc nhỏ nơi gầm cầu thang.
 |
| Mặt bằng tầng 1. |
- Mặt bằng tầng 2:
Tầng 2 gồm có hai phòng ngủ chính và một phòng tắm. Hai phòng ngủ có diện tích tương đối bằng nhau. Tuy nhiên, phòng ngủ phía bên ngoài dành cho vợ chồng gia chủ có diện tích rộng hơn một chút. Không gian riêng tư của vợ chồng gia chủ và con không chỉ có giường ngủ mà còn có khoảng dành cho góc làm việc, học tập, nơi để quần áo hay kê bàn trang điểm…
 |
| Mặt bằng tầng 2. |
Vì diện tích không quá rộng nên nếu thiết kế hai phòng tắm sẽ tương đối chật chội. Do vậy, KTS chỉ bố trí một phòng tắm chung cho cả hai phòng ngủ. Phòng tắm này được đặt cạnh phòng ngủ của vợ chồng chủ nhà. Từ phòng ngủ của con gia chủ đi ra có thừa một khoảng diện tích sảnh thang, KTS tận dụng làm tiểu cảnh xanh mát mang lại không khí trong lành cho toàn bộ không gian tầng 2. Một điều nữa là KTS không quên thiết kế ban công và các cửa lớn để tận dụng hiệu quả ánh sáng và không khí tự nhiên.
- Mặt bằng tầng 3:
Tầng 3 cũng được thiết kế tương tự như tầng 2 với hai phòng chính. Tuy nhiên, thay vì hai phòng ngủ thì tầng 3 chỉ có một phòng ngủ dành cho con và một phòng sinh hoạt chung cho cả gia đình. Phòng ngủ được thiết kế thoáng mát với ban công xinh xắn. Ngay cạnh phòng ngủ là phòng tắm vô cùng tiện lợi cho việc sử dụng. Phòng sinh hoạt chung với diện tích tương đối thoải mái là nơi cả gia đình cùng nhau sum vầy, chia sẻ niềm vui, nỗi buồn hay cùng thưởng thức các chương trình truyền hình yêu thích.
 |
| Mặt bằng tầng 3. |
- Mặt bằng tầng 4:
Không gian tầng 4 gồm có phòng thờ, phòng giặt, phòng xông hơi và sân phơi. Phòng thờ được bố trí phía trước thoáng nhưng vẫn đảm bảo yên tĩnh. Bên cạnh là phòng giặt nhỏ. Phòng tắm xông hơi rộng được sắp xếp phía sau. Liền kề phòng tắm là sân phơi vừa đủ để phơi đồ hoặc thiết kế thêm vườn rau xanh nhỏ xinh.
 |
| Mặt bằng tầng 4. |
Về phương án phối cảnh kiến trúc mặt tiền
Đúng như mong muốn của KTS, mặt tiền ngôi nhà được thiết kế hiện đại và không kém phần sang trọng, khang trang. Thay vì sử dụng những hình khối đơn giản có phần hơi cứng thì KTS tạo nên những đường nét mềm mại hơn với việc kết hợp sử dụng mái ngói dốc không chỉ cho nóc mà còn cho ban công, cửa cổng…
 |
| Mặt tiền ngôi nhà được thiết kế hiện đại và nổi bật. |
Toàn bộ ngôi nhà được sơn màu trắng thanh lịch. Tuy nhiên, KTS vẫn không quên nhấn nhá bằng đá ốp tinh tế màu vàng nhạt cạnh các khung cửa. Ngôi nhà không rộng, nhưng KTS vẫn khéo léo dành diện tích cho không gian xanh tạo không khí trong lành, dễ chịu như sân trước, ban công hay sân thượng…
 |
| KTS luôn tận dụng mọi khoảng không có thể cho không gian xanh. |
Một số gợi ý về cách bài trí các phòng chức năng
 |
| Phòng khách đơn giản, hiện đại. (Ảnh minh họa) |
 |
| Phòng ăn ấm cúng với nội thất gỗ. (Ảnh minh họa) |
 |
| Phòng ngủ dành cho bố mẹ hút mắt với sự kết hợp của hai gam màu trung tính trắng và đen. (Ảnh minh họa) |
 |
| Phòng ngủ dễ thương, ngọt ngào dành cho con gia chủ. (Ảnh minh họa) |
Trên đây là phương án thiết kế phù hợp do KTS đưa ra. Chúc gia đình sớm xây được ngôi nhà đẹp, hiện đại.