Ngôi nhà được xây dựng trên nền tảng của ngôi nhà cũ nằm trong con hẻm ở quận 3, TP.HCM. Khu đất được xây dựng là đặc trưng của hình thức kiến trúc nhà ống trong các đô thị ở Việt Nam, đặc biệt là TP.HCM. Ngôi nhà này được thiết kế bởi hai KTS chính Nguyễn Duy và Phạm Thái Ninh (Timearchtitects.vn).
Gia chủ là người sống ở đây từ bé, như vậy có thể xem ngôi nhà là nơi chôn nhau cắt rốn của các thành viên trong gia đình. Kế hoạch xây dựng đã bắt đầu từ 10 năm trước nhưng phải gác lại bởi một vài biến cố không mong muốn.
Thế rồi 10 năm sau chủ nhà quyết định xây dựng mới ngôi nhà dựa trên thiết kế hoàn toàn mới. Chủ nhà mong muốn ngôi nhà mới sẽ thắt chặt tình cảm của các thành viên trong gia đình, đặc biệt là tạo nên không gian sống để người mẹ của gia chủ an hưởng tuổi già bên con cháu.
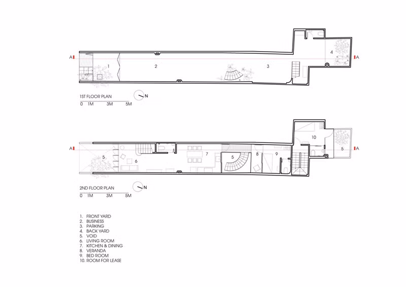
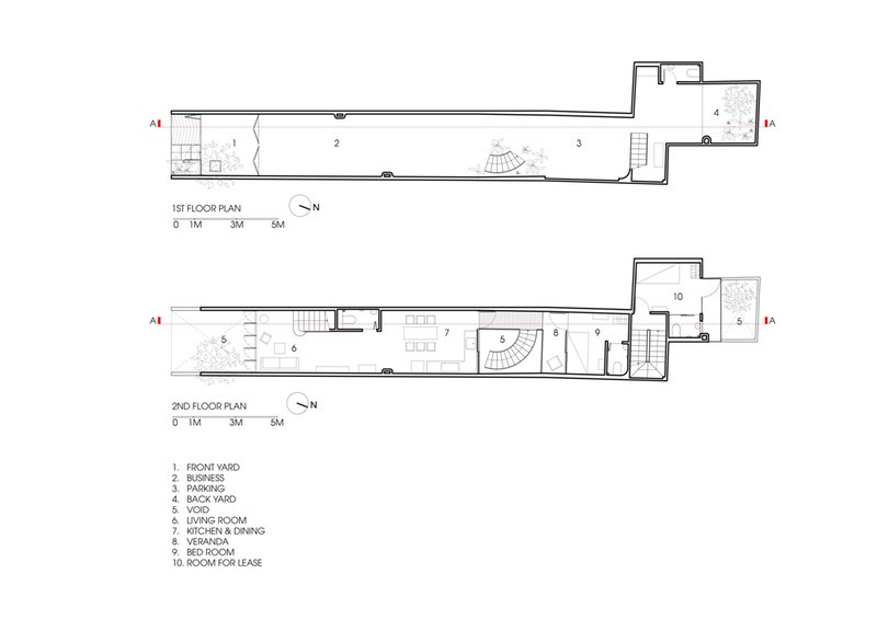
Ngôi nhà ống giữa lòng Sài Gòn được xây dựng trên diện tích sàn 500 m2 và được hoàn thành năm 2017.
Lối dẫn lên nhà bằng cầu thang sắt, men theo là dàn cây leo xanh mát.
Vừa bước vào cổng, gia chủ sẽ cảm thấy thoải mái và yên bình với nhiều tán cây xanh dọc lối dẫn.
Một chút điểm nhấn ở góc cây xanh.
Bao quanh ngôi nhà còn được KTS thiết kế màng bọc bên ngoài.
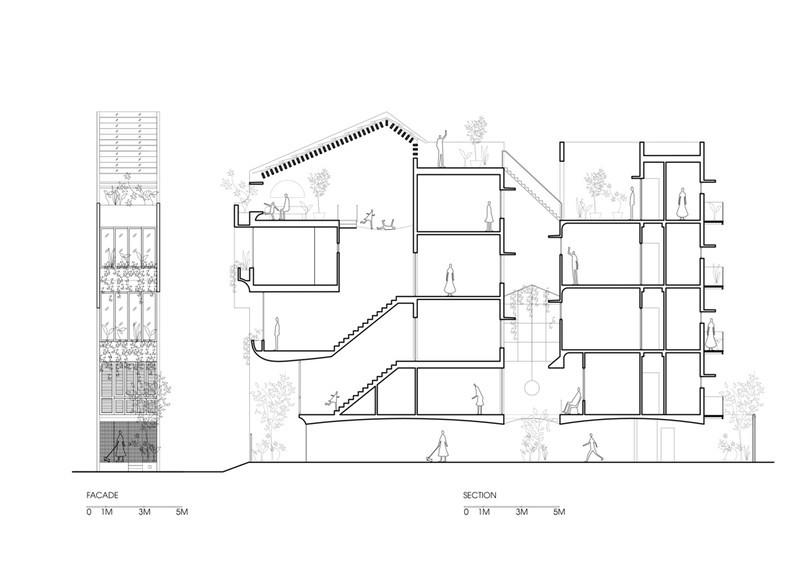
KTS Timearchtitects cho biết ngôi nhà được thiết kế trên quan niệm là một không gian chứa đựng. Đây là không gian lớn, trong đó ngoài chứa nhiều không gian nhỏ mà còn chứa một loạt hoạt động của nhiều thế hệ trong gia đình.
Do đó, mỗi phòng cơ bản như những ngôi nhà được đặt chồng lớp theo phương đứng, như một cộng đồng thu hẹp.
Dù diện tích bề ngang của ngôi nhà khá hẹp nhưng mọi thứ được bài trí khá đơn giản và gọn gàng.
Cạnh lớp màng bọc là hệ thống thông gió với thiết kế độc đáo gắn với những cái chén sành.
Không gian các tầng đều được bài trí cây xanh.
Lối cầu thang cả ngày đều đủ lượng ánh sáng dẫn lối đi.
Ngoài ra, việc tạo ra không gian chứa đựng nhằm gắn kết các gia đình nhỏ trong gia đình lớn và đồng thời dung chứa tất cả những thay đổi chức năng theo nhu cầu của từng cá nhân theo thời gian.
Do đó, với ngôi nhà này hình thức kiến trúc không phải là điều quan trọng nhất mà tinh thần, đời sống, sự kết nối tình cảm giữa các thành viên trong nhà mới là điều được quan tâm.
Các không gian riêng của các thành viên chồng lớp theo phương thẳng đứng như cộng đồng thu hẹp với không gian chung.
Lối cầu thang bắc ngang giữa hai khối không gian của ngôi nhà ống này.
Phòng bếp.
Phòng ngủ lại mang nét truyền thống.
Mỗi căn phòng được thiết kế theo sở thích riêng của mỗi thành viên.


