Nhà vườn 1 tầng 4 phòng ngủ mộc mạc nhưng vẫn rất sang trọng
Kết hợp giữa sự khô cứng của kết cấu và mềm mại của không gian xanh, nhà vườn 1 tầng 4 phòng ngủ này tuy mộc mạc nhưng không kém phần sang trọng.
Theo Quang Đăng/Vietnamnet
Đây là ngôi nhà vườn 1 tầng 4 phòng ngủ yên bình nằm giữa ngôi làng thanh bình và dòng sông Chaliyar, Ấn Độ. Từ nội thất đến ngoại thất, ngôi nhà toát lên sự vững chắc và mang đậm bản sắc riêng.
Ngôi nhà được bao bọc bởi nhiều cây xanh.
Ngôi nhà vườn này được bố trí 4 phòng ngủ.
Với vẻ đẹp vốn có của cảnh vật xung quanh, kiến trúc sư cố gắng mang lại một không gian sống tốt nhất để gia chủ, tránh xa những xô bồ trong cuộc sống bằng cách xoá nhoà ranh giới giữa nội thất và ngoại thất. Các không gian xanh được đưa vào giữa nhà để làm dịu đi sự khô cứng của phần kết cấu.
Mặt đứng của công trình.
Mặt cắt của công trình.
Đi từ cổng vào đến các bậc tam cấp rộng và sau đó xuyên suốt toàn bộ ngôi nhà, có thể nhận thấy sự phân cấp của kết cấu. Từ bức tường thô ráp đến những mặt tường sơn hoàn thiện. Việc phân chia không gian bằng sàn bê tông và sàn gỗ làm cho ngôi nhà không còn đơn điệu.
Trước nhà là khoản sân vườn rộng.
Hiên nhà như một không gian đệm.
Ngôi nhà vườn với 1 tầng duy nhất kết hợp không gian tương tác đối đa cho các thành viên trong gia đình là yêu cầu của gia chủ đưa ra. Các không gian riêng tư trong ngôi nhà được ngăn chia bằng bức tường bê tông đậm, bao phủ bởi những mảng xanh tươi tốt.
Lối đi chính vào nhà.
Góc thư giãn ở hiên nhà.
Sân trong được bố trí bên trong nhà vệ sinh với hệ thống thông gió gián tiếp trên mái giúp duy trì tính thẩm mỹ. Cửa chính xoay đơn giản nhưng táo bạo và cửa trượt của các phòng ngủ nổi bật trong toàn bộ thiết kế.
Ngay sau cửa chính là lối đi.
Bên trái lối đi này là khoảng sân trong.
Hệ thống lấy gió và ánh sáng được chế tác bằng một dải lưới mắt cáo chạy dọc theo hướng Bắc, nơi đây được bố trí không gian phòng khách, phòng ăn và nhà bếp. Thiết kế này mang lại cho ngôi nhà làn gió mát và giảm bớt ánh nắng gây gắt.
Bên phải lối đi trong nhà là không gian phòng khách.
Sự thay đổi trong thiết kế các mái dốc và mái bằng với cao độ khác nhau cũng như các lỗ thông gió trên đường mái giúp cho bên ngôi nhà có nhiều gió hơn.
Bên trong ngôi nhà được bố trí nhiều mảng xanh.
Tất cả các yếu tố từ ngói lợp, ánh sáng đến vật dụng nội thất làm tăng thêm nét mộc mạc cho ngôi nhà. Tường bếp được sơn thay vì ốp lát làm tăng thêm sự hài hoà về màu sắc của ngôi nhà. Đường dây điện được giấu vào giữa mái lợp và ngói trần, nơi này có vai trò như trần giả.
Nối tiếp không gian sân trong là phòng ăn.
Không gian ăn uống tràn ngập ánh sáng tự nhiên nhờ tiếp xúc với sân vườn sau nhà.
Nơi đây cũng là không gian sinh hoạt chung của cả gia đình.
Ngôi nhà vườn này được xây dựng theo hướng Bắc – Nam, việc bố trí khu vực bếp và sinh hoạt chung mang đến không gian tràn ngập ánh nắng buổi sáng. Nội thất tràn ngập ánh sáng tự nhiên còn giúp cho gia chủ giảm thiểu sử dụng đèn điện.
Nhà bếp được bố trí trong một không gian riêng biệt nhưng vẫn rất thông thoáng.
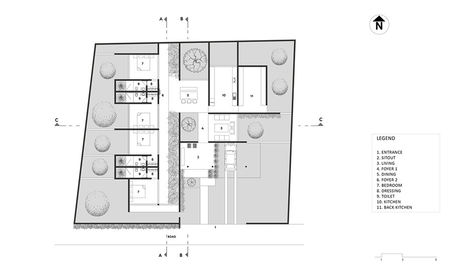
4 phòng ngủ được bố trí theo một dãy.
Trước dãy phòng ngủ là mảng xanh chạy dài suốt hành lang.
Trong phòng vệ sinh của mỗi phòng ngủ đều có cây xanh và ánh sáng tự nhiên.
Ngôi nhà là sự kết hợp hài hoà giữa sự khô cứng của tường bê tông, tường đá, gỗ và sự mềm mại của không gian xanh. Công trình mang phong cách kiến trúc nhiệt đới của vùng nông thôn Nilambur, gợi lên cảm giác mộc mạc nhưng vẫn rất sang trọng.
Ngôi nhà vườn này là sự kết hợp giữa sự mộc mạc và sang trọng.
Nhà vườn tỉnh Tiền Giang vào mùa thu hoạch loại trái cây này rất phấn khởi, bội thu.
Ở thời điểm này, nhà vườn thu hoạch chanh bán cho thương lái tại vườn với mức giá từ 10.000 - 13.000 đồng/kg (tùy chất lượng). Riêng giá chanh tươi ngoài chợ giá lên đến trên 20.000 đồng/kg. Mức giá này cao hơn trước Tết gấp 2 lần; thậm chí trong đợt giãn cách xã hội trước đây trái chanh ế ẩm, bế tắc đầu ra. Cũng theo nhà vườn, giá chanh trên 5.000 đồng/kg là đã có lãi.
Vợ chồng trẻ tự thiết kế, thi công biệt thự kính đủ góc sống ảo
Biệt thự nhà vườn với 3 mặt kính là món quà vợ chồng chị Lê Ngà dành tặng các con và cũng để đánh dấu mốc quan trọng trong cuộc sống hôn nhân.
Căn biệt thự nhà vườn 2 tầng với 3 mặt kính, xây theo kiểu chữ L của vợ chồng chị Lê Ngà và anh Nguyễn Đạt ở Hưng Yên.
Chị Lê Ngà chia sẻ, công trình do chồng chị tự thiết kế, thi công nên thời gian thực hiện có kéo dài hơn, mình anh gánh nhiều vai trò nên công việc cũng vất vả. Tuy nhiên, thành quả sau khi hoàn thiện rất xứng đáng.
Chỉ 20 triệu, người đàn ông biến sân thượng thành vườn cây trĩu quả quanh năm
Chi phí chỉ khoảng 20 triệu đồng, người đàn ông TP.HCM đã biến sân thượng nhà mình thành vườn cây trĩu quả, ăn không hết còn đem cho.
Vốn có sở thích trồng cây, anh Nguyễn Văn Giàu (1991) tận dụng sân thượng của gia đình để làm một vườn cây trồng các loại cây ăn quả. Ngay từ năm 2016, anh vẫn còn ở nhà cũ trên quận 10 (TP.HCM) đã làm một khu vườn nhỏ trên sân thượng. Lúc này, khi mới bắt đầu làm, anh chỉ trồng những cây đơn giản, dễ sống như dưa leo, cà chua, các loại rau ăn lá.
Đến 2018, anh chuyển sang nhà mới ở quận Tân Bình, có sân thượng rộng rãi hơn, khoảng 60m2. Anh đã dành 2 tháng để vác đất từ dưới nhà lên sân thượng. Anh đầu tư khoảng 20 triệu đồng để mua thùng nhựa, giàn để chuẩn bị trồng cây. Đã có kinh nghiệm trồng rau trên sân thượng, anh thử sức trồng cây ăn quả.
Bà L.T.X khai nhận video trên được tải về sau khi xem từ một nhóm kín trên Facebook, việc đăng tải video với mục đích gây tò mò, thu hút lượng tương tác.
Hiện, cơ quan Công an chưa xác định được đối tượng đang ở đâu. Để phục vụ công tác điều tra, Cơ quan CSĐT Công an TP Hà Nội đã ra quyết định truy tìm đối tượng.
Sau khi nhận 70 triệu đồng tiền chuyển nhầm, người đàn ông Phú Thọ không làm theo yêu cầu chuyển sang tài khoản khác mà trình báo công an để xử lý đúng luật.
Cơ quan Cảnh sát điều tra Công an tỉnh Thanh Hóa vừa ra quyết định khởi tố vụ án, khởi tố 3 bị can về tội “Trốn thuế” xảy ra tại Công ty Tập đoàn Cường Minh.
Hà Nội sẽ tái cấu trúc hệ thống đô thị theo mô hình chùm đô thị hướng tâm, với Hà Nội là hạt nhân trung tâm của vùng. Dự kiến hình thành 9 trục phát triển chiến lược, kết nối Đông - Tây - Nam - Bắc, đồng bộ với các trục giao thông và liên kết vùng.
Thấy dấu hiệu khả nghi, lực lượng tuần tra của Công an tỉnh Quảng Ngãi chặn người đi đường và khám xét ba lô thì phát hiện bên trong là động vật quý hiếm.
Hai đối tượng khai nhận bị nhóm 3 thanh niên đi xe mô tô, cầm theo kiếm chặn đánh, sau khi bị đánh đã về lấy phóng lợn tìm 3 thanh niên này để trả thù.
Sau khi nhận 70 triệu đồng tiền chuyển nhầm, người đàn ông Phú Thọ không làm theo yêu cầu chuyển sang tài khoản khác mà trình báo công an để xử lý đúng luật.
Việc đưa máy bay C119 về trưng bày tại Di tích quốc gia sân bay Tà Cơn nhằm góp phần gìn giữ, bảo tồn giá trị lịch sử, văn hóa của di tích chiến tranh...
Bà L.T.X khai nhận video trên được tải về sau khi xem từ một nhóm kín trên Facebook, việc đăng tải video với mục đích gây tò mò, thu hút lượng tương tác.
Đây là 4 bị cáo trong vụ án lừa đảo chiếm đoạt tài sản trên không gian mạng bị Công an tỉnh Hà Tĩnh triệt phá tại Đặc khu kinh tế Tam Giác Vàng vào năm 2024.
Doanh nghiệp vận tải Phương Trang đã cung cấp quyền truy cập hệ thống giám sát phương tiện cho Cục CSGT, phục vụ quản lý nhà nước về kinh doanh vận tải.