Nhà vườn 1 tầng 4 phòng ngủ mộc mạc nhưng vẫn rất sang trọng
Kết hợp giữa sự khô cứng của kết cấu và mềm mại của không gian xanh, nhà vườn 1 tầng 4 phòng ngủ này tuy mộc mạc nhưng không kém phần sang trọng.
Theo Quang Đăng/Vietnamnet
Đây là ngôi nhà vườn 1 tầng 4 phòng ngủ yên bình nằm giữa ngôi làng thanh bình và dòng sông Chaliyar, Ấn Độ. Từ nội thất đến ngoại thất, ngôi nhà toát lên sự vững chắc và mang đậm bản sắc riêng.
Ngôi nhà được bao bọc bởi nhiều cây xanh.
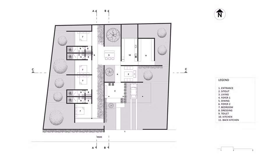
Ngôi nhà vườn này được bố trí 4 phòng ngủ.
Với vẻ đẹp vốn có của cảnh vật xung quanh, kiến trúc sư cố gắng mang lại một không gian sống tốt nhất để gia chủ, tránh xa những xô bồ trong cuộc sống bằng cách xoá nhoà ranh giới giữa nội thất và ngoại thất. Các không gian xanh được đưa vào giữa nhà để làm dịu đi sự khô cứng của phần kết cấu.
Mặt đứng của công trình.
Mặt cắt của công trình.
Đi từ cổng vào đến các bậc tam cấp rộng và sau đó xuyên suốt toàn bộ ngôi nhà, có thể nhận thấy sự phân cấp của kết cấu. Từ bức tường thô ráp đến những mặt tường sơn hoàn thiện. Việc phân chia không gian bằng sàn bê tông và sàn gỗ làm cho ngôi nhà không còn đơn điệu.
Trước nhà là khoản sân vườn rộng.
Hiên nhà như một không gian đệm.
Ngôi nhà vườn với 1 tầng duy nhất kết hợp không gian tương tác đối đa cho các thành viên trong gia đình là yêu cầu của gia chủ đưa ra. Các không gian riêng tư trong ngôi nhà được ngăn chia bằng bức tường bê tông đậm, bao phủ bởi những mảng xanh tươi tốt.
Lối đi chính vào nhà.
Góc thư giãn ở hiên nhà.
Sân trong được bố trí bên trong nhà vệ sinh với hệ thống thông gió gián tiếp trên mái giúp duy trì tính thẩm mỹ. Cửa chính xoay đơn giản nhưng táo bạo và cửa trượt của các phòng ngủ nổi bật trong toàn bộ thiết kế.
Ngay sau cửa chính là lối đi.
Bên trái lối đi này là khoảng sân trong.
Hệ thống lấy gió và ánh sáng được chế tác bằng một dải lưới mắt cáo chạy dọc theo hướng Bắc, nơi đây được bố trí không gian phòng khách, phòng ăn và nhà bếp. Thiết kế này mang lại cho ngôi nhà làn gió mát và giảm bớt ánh nắng gây gắt.
Bên phải lối đi trong nhà là không gian phòng khách.
Sự thay đổi trong thiết kế các mái dốc và mái bằng với cao độ khác nhau cũng như các lỗ thông gió trên đường mái giúp cho bên ngôi nhà có nhiều gió hơn.
Bên trong ngôi nhà được bố trí nhiều mảng xanh.
Tất cả các yếu tố từ ngói lợp, ánh sáng đến vật dụng nội thất làm tăng thêm nét mộc mạc cho ngôi nhà. Tường bếp được sơn thay vì ốp lát làm tăng thêm sự hài hoà về màu sắc của ngôi nhà. Đường dây điện được giấu vào giữa mái lợp và ngói trần, nơi này có vai trò như trần giả.
Nối tiếp không gian sân trong là phòng ăn.
Không gian ăn uống tràn ngập ánh sáng tự nhiên nhờ tiếp xúc với sân vườn sau nhà.
Nơi đây cũng là không gian sinh hoạt chung của cả gia đình.
Ngôi nhà vườn này được xây dựng theo hướng Bắc – Nam, việc bố trí khu vực bếp và sinh hoạt chung mang đến không gian tràn ngập ánh nắng buổi sáng. Nội thất tràn ngập ánh sáng tự nhiên còn giúp cho gia chủ giảm thiểu sử dụng đèn điện.
Nhà bếp được bố trí trong một không gian riêng biệt nhưng vẫn rất thông thoáng.
4 phòng ngủ được bố trí theo một dãy.
Trước dãy phòng ngủ là mảng xanh chạy dài suốt hành lang.
Trong phòng vệ sinh của mỗi phòng ngủ đều có cây xanh và ánh sáng tự nhiên.
Ngôi nhà là sự kết hợp hài hoà giữa sự khô cứng của tường bê tông, tường đá, gỗ và sự mềm mại của không gian xanh. Công trình mang phong cách kiến trúc nhiệt đới của vùng nông thôn Nilambur, gợi lên cảm giác mộc mạc nhưng vẫn rất sang trọng.
Ngôi nhà vườn này là sự kết hợp giữa sự mộc mạc và sang trọng.
Nhà vườn tỉnh Tiền Giang vào mùa thu hoạch loại trái cây này rất phấn khởi, bội thu.
Ở thời điểm này, nhà vườn thu hoạch chanh bán cho thương lái tại vườn với mức giá từ 10.000 - 13.000 đồng/kg (tùy chất lượng). Riêng giá chanh tươi ngoài chợ giá lên đến trên 20.000 đồng/kg. Mức giá này cao hơn trước Tết gấp 2 lần; thậm chí trong đợt giãn cách xã hội trước đây trái chanh ế ẩm, bế tắc đầu ra. Cũng theo nhà vườn, giá chanh trên 5.000 đồng/kg là đã có lãi.
Vợ chồng trẻ tự thiết kế, thi công biệt thự kính đủ góc sống ảo
Biệt thự nhà vườn với 3 mặt kính là món quà vợ chồng chị Lê Ngà dành tặng các con và cũng để đánh dấu mốc quan trọng trong cuộc sống hôn nhân.
Căn biệt thự nhà vườn 2 tầng với 3 mặt kính, xây theo kiểu chữ L của vợ chồng chị Lê Ngà và anh Nguyễn Đạt ở Hưng Yên.
Chị Lê Ngà chia sẻ, công trình do chồng chị tự thiết kế, thi công nên thời gian thực hiện có kéo dài hơn, mình anh gánh nhiều vai trò nên công việc cũng vất vả. Tuy nhiên, thành quả sau khi hoàn thiện rất xứng đáng.
Chỉ 20 triệu, người đàn ông biến sân thượng thành vườn cây trĩu quả quanh năm
Chi phí chỉ khoảng 20 triệu đồng, người đàn ông TP.HCM đã biến sân thượng nhà mình thành vườn cây trĩu quả, ăn không hết còn đem cho.
Vốn có sở thích trồng cây, anh Nguyễn Văn Giàu (1991) tận dụng sân thượng của gia đình để làm một vườn cây trồng các loại cây ăn quả. Ngay từ năm 2016, anh vẫn còn ở nhà cũ trên quận 10 (TP.HCM) đã làm một khu vườn nhỏ trên sân thượng. Lúc này, khi mới bắt đầu làm, anh chỉ trồng những cây đơn giản, dễ sống như dưa leo, cà chua, các loại rau ăn lá.
Đến 2018, anh chuyển sang nhà mới ở quận Tân Bình, có sân thượng rộng rãi hơn, khoảng 60m2. Anh đã dành 2 tháng để vác đất từ dưới nhà lên sân thượng. Anh đầu tư khoảng 20 triệu đồng để mua thùng nhựa, giàn để chuẩn bị trồng cây. Đã có kinh nghiệm trồng rau trên sân thượng, anh thử sức trồng cây ăn quả.
Xe khách chở 26 người rơi xuống vực sâu khoảng 100 m tại Vân Hồ (Sơn La), khiến 2 người tử vong, nhiều nạn nhân đa chấn thương đang được điều trị tích cực.
Khoảng 80ha ngao nuôi ở vùng cửa biển xã Mai Phụ (Hà Tĩnh) chết trắng, khiến người dân nơi đây lâm vào cảnh trắng tay, ước tính thiệt hại gần 2,9 tỷ đồng.
Sử dụng phương tiện công cộng nhằm bảo đảm di chuyển thông suốt giữa 2 sân bay Long Thành - Tân Sơn Nhất là phương án đang được TP HCM tập trung triển khai.
Cuộc chạy đua với thời gian được triển khai và sau nhiều giờ băng rừng tìm kiếm, lực lượng Công an xã Tây Yên Tử (tỉnh Bắc Ninh) đã đưa 2 người về nơi an toàn.
Nhóm đối tượng lợi dụng khu vực đông người, nhất là thời điểm khách đến tham quan, mua sắm tại Công ty Tân Huê Viên để tiếp cận, dàn cảnh để cướp giật tài sản.
Cuộc chạy đua với thời gian được triển khai và sau nhiều giờ băng rừng tìm kiếm, lực lượng Công an xã Tây Yên Tử (tỉnh Bắc Ninh) đã đưa 2 người về nơi an toàn.
Lực lượng Cảnh sát giao thông Hà Nội tăng cường kiểm soát tại các tuyến, cửa ngõ và khu vực bến xe, tập trung xử lý nghiêm vi phạm dừng đỗ sai quy định,...
Xe khách chở 26 người rơi xuống vực sâu khoảng 100 m tại Vân Hồ (Sơn La), khiến 2 người tử vong, nhiều nạn nhân đa chấn thương đang được điều trị tích cực.
Sử dụng phương tiện công cộng nhằm bảo đảm di chuyển thông suốt giữa 2 sân bay Long Thành - Tân Sơn Nhất là phương án đang được TP HCM tập trung triển khai.
UBND xã A Lưới 1 (TP. Huế) cho biết lực lượng liên ngành địa phương vừa tổ chức truy quét hoạt động khai thác khoáng sản trái phép tại khe Bùn và khe Li Leng.
Khoảng 80ha ngao nuôi ở vùng cửa biển xã Mai Phụ (Hà Tĩnh) chết trắng, khiến người dân nơi đây lâm vào cảnh trắng tay, ước tính thiệt hại gần 2,9 tỷ đồng.
Rạng sáng 26/4, một vụ hỏa hoạn lớn đã xảy ra tại Công ty TNHH Tổng hợp Tân Đại Hưng (lô B6.04, Khu công nghiệp Nhơn Hội – Khu A, P. Quy Nhơn Đông, Gia Lai).
Màn bắn pháo hoa tầm cao tối 25/4 (tức 9/3 âm lịch) tại hồ Công viên Văn Lang, thu hút đông đảo người dân và du khách về với Phú Thọ dịp Giỗ Tổ Hùng Vương.