Với công trình nhà Tây Ninh, ngoài hai mái hiên bố trí trước sau nhà, còn có hai mái hiên khác bên trong công trình, được bao bọc bởi lớp ngói vảy cá cũ tận dụng sau khi dỡ nhà, tạo ra những cung bậc cảm xúc khác cho không gian đặc biệt này.
Công trình sẽ tự trở nên thú vị nếu được xây nên từ chính câu chuyện của những người sống trong nó. Một căn nhà với hình hài ra sao đã được các thành viên trong gia đình xây viên gạch đầu tiên từ lúc họ kể câu chuyện của họ. Đây là một căn nhà cho hai thế hệ, nhu cầu ở thông thường với với hai phòng ngủ, các không gian khách, bếp, ăn. Vợ chồng chủ nhà có chung niềm đam mê với thiên nhiên, yêu thích những thứ đơn sơ, mộc mạc, đặc biệt anh chồng cũng có tính nghệ sỹ và lãng mạn.
Anh chị có hai bé gái nhỏ đáng yêu và rất sợ ma, luôn muốn được gần cha mẹ. Bên cạnh đó, ngôi nhà cũ còn lại rất nhiều ngói vảy cá đã dỡ ra từ các căn nhà mát đã xây trước đó. Mối lo ngại về một ngôi nhà ống hẹp dài và mọi người trong nhà bị chia cách được anh chị chia sẻ.
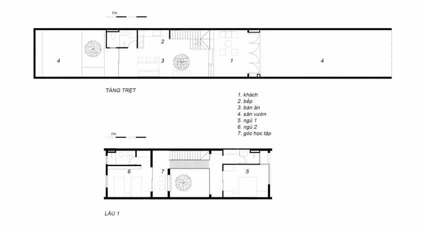
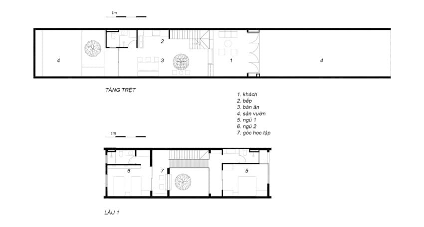
Giải pháp đưa ra là một căn nhà hai tầng, chiếm chưa đến phân nửa diện tích đất với đầy đủ công năng sử dụng. Phần đất còn lại làm sân vườn trước và sau nhà, vừa có giá trị cảnh quan, là không gian cho tụ họp bạn bè, nơi anh chồng chăm cây, chị vợ trồng rau, con trẻ choi đùa. vườn vừa có tác dụng đón gió, lấy sáng cho căn nhà giữa một vùng đô thị mà bêtông đã chen chân kín.
Các không gian khách, bếp, các phòng ngủ phân làm hai khối, kết nối nhau bằng hai mái hiên, thông tầng và cây xanh giữa nhà.
Tách khối công trình đảm bảo cho việc thông gió, tối đa sử dụng ánh sáng tự nhiên cho mọi không gian, hạn chế năng lượng chiếu sáng, làm mát. Không gian hai mái hiên bên trong nhà là nơi sinh hoạt chung của gia đình, làm nhiệm vụ kết nối các thành viên, giúp mọi người có thể dễ dàng trông thấy nhau. Đây là nơi nơi gia đình cùng ăn cơm, nơi con trẻ học bài, ba nằm võng, mẹ ngồi nghỉ, đọc sách hay nấu ăn. Mái hiên hạ thấp, bao bọc không gian học của hai đứa trẻ tạo ra một cảm giác ấm cúng, an toàn nhưng vẫn thoáng mát và linh động.
Về vật liệu, ngôi nhà sử dụng chủ yếu là gạch nung và ngói vảy cá cũ là những thứ gần gũi với thiên nhiên, mang lại chất cảm riêng biệt và phù hợp tinh thần công trình. Gạch thô, không tô, đã qua xử lý mang lại cảm giác ấm cúng, đơn giản nhưng vẫn có chất cảm mạnh mẽ, đảm bảo tính thẩm mỹ và vệ sinh cho sử dụng. Bên cạnh việc xác định vừa đủ nhu cầu ở để xây dựng thì việc sử dụng phần lớn tường gạch thô cũng làm giảm chi phí cho phần hoàn thiện tường hay chi phí bảo trì nứt vỡ, sơn sửa hàng năm.
Ngói vảy cá cũ được tận dụng lại đã phủ một màu thời gian, cho ta cảm giác bình dị, thân thương mà màu ngói mới khó có thể mang lại. Hệ ngói vảy cá bao lấy hai mái hiên trong và ngoài nhà làm ra một hình thể hài hòa với công năng sử dụng. Tất cả tạo ra mái “An hiên” riêng, nơi lưu giữ ký ức và chốn về bình yên của gia đình.


