Nhà ống 2 tầng đơn giản này nằm trong khu dân cư đông đúc tại tỉnh Đồng Nai. Ngôi nhà được thiết kế dành cho một cặp vợ chồng trẻ theo đạo thiên chúa với những đứa con tương lai của họ.
Vợ chồng này rất yêu thiên nhiên nên một trong những yêu cầu cơ bản đưa ra cho kiến trúc sư là tạo ra một không gian sống nhiều ánh sáng, gió, cây xanh và gắn kết với thiên nhiên một cách tối đa.
Đôi vợ chồng trẻ muốn ngủ trong một căn phòng, nơi họ có thể nhìn thấy nhiều màu xanh khi thức dậy vào mỗi buổi sáng. Hơn nữa, người vợ muốn phòng ngủ của mình có màu trắng vì cô ấy muốn không gian riêng tư của mình trở nên độc đáo. Từ tất cả các sở thích này, kiến trúc sư đã đưa ra phương án phù hợp với họ.
Ngôi nhà sử dụng vật liệu địa phương nhưng được bố trí một cách phù hợp nhằm mang lại chất lượng cuộc sống tốt nhất cho gia chủ. Ngoài ra, ngôi nhà được thiết kế theo không gian mở, bố trí nhiều cây xanh, tận dụng được thiên nhiên, gió và ánh sáng.
Vì vậy, ngôi nhà không cần ánh sáng nhân tạo vào ban ngày và điều hòa không khí vào ban đêm. Ngôi nhà tận dụng tối đa những không gian xanh yên bình để gia chủ thể bỏ lại mọi mệt mỏi sau một ngày dài làm việc.
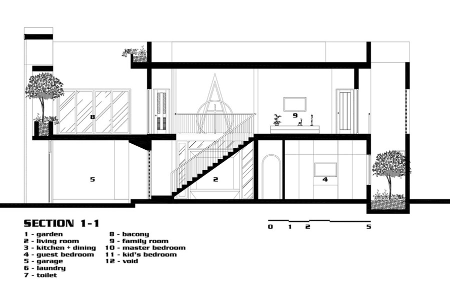
Tầng 1 là không gian sinh hoạt chính của gia đình bao gồm phòng khách, phòng ngủ, bếp, phòng ăn. Các khu vực này được bao quanh bởi các khu vườn nhỏ giúp ngôi nhà thoáng và thông gió khắp ngôi nhà. Ngoài ra, ánh sáng tự nhiên có thể chiếu vào tất cả các phòng.
Tầng 2 là nơi bố trí phòng ngủ và phòng sinh hoạt chung của gia đình cùng với một lỗ thông gió lớn ở giữa mang đến sự kết nối giữa các không gian tốt hơn.
Phòng ngủ và phòng sinh hoạt chung của gia đình được thiết kế với khoảng thông tầng và khoảng sân nhỏ giúp gia chủ có thể ngắm nhìn bầu trời thư thái và đón gió tự nhiên mỗi ngày.
Ngôi nhà không chỉ có công năng và thẩm mỹ mà quan trọng nhất là ngôi nhà được thiết kế để tăng sự kết nối giữa con người với thiên nhiên thông qua không gian sống với các giải pháp kiến trúc nhằm tạo điều kiện sống tốt hơn cho con người trong khi đô thị hóa tác động xấu đến môi trường sống.

