Căn nhà của người chủ cũ trên mảnh đất 80m2 ở Hà Nội được tách làm hai nửa, mỗi bên 40m2 và đã được cấp sổ đỏ riêng biệt. Một nửa đã được cải tạo thành nơi ở. Phần còn lại đang bị bỏ hoang.
Khi kiến trúc sư Nguyễn Hoàng Khương cùng các cộng sự đến khảo sát phần nhà bị bỏ hoang này, anh nhận thấy công trình đã xuống cấp. Việc lựa chọn phá dỡ hay cải tạo được đặt lên bàn cân.
Bởi ngôi nhà nằm trong hẻm, việc vận chuyển rác thải phát sinh nhiều chi phí. Hơn nữa, việc phá dỡ có thể ảnh hưởng đến sự bền vững của phần nhà đã được cải tạo trước đó.
Cuối cùng, thay vì phá dỡ và xây mới hoàn toàn, họ bàn với gia chủ phương án cải tạo.
Ngôi nhà sau khi được cải tạo mang tên “Raincoat House”. Do mái nhà và các mặt bao che trước sau được ví như một chiếc áo mưa, trùm lên khối nhà cũ, bảo vệ phần tường, sàn khỏi xuống cấp do thời tiết. Đồng thời đưa ánh sáng tối đa vào không gian bên trong.
Kiến trúc sư Nguyễn Hoàng Khương chia sẻ, đây là công trình nhà ống “hẹp ngang và sâu” điển hình ở các khu đô thị đất chật, người đông.
Các ngôi nhà xây san sát nhau khiến việc lắp đặt các cửa sổ mở đón nắng và không khí gặp khó khăn.
Cấu trúc dài chiều sâu cũng “gây khó” khi bố trí nội thất cho nhà. Các món đồ phải trải dài khắp không gian nhà và phải đảm bảo được tính khoa học, cũng như công năng sử dụng của nó.
Các kiến trúc sư đã sử dụng gạch và bê-tông kín đặc, một nửa mái chéo và các mặt bao che trước sau được làm từ tấm lợp trong suốt để lấy ánh sáng cho các khoảng xanh và tạo cảm giác không gian được mở rộng.
Phần hiện trạng đã được xây dựng khá lâu và xuống cấp, lớp khung áo bao che bên ngoài được thiết kế với trọng lượng nhẹ nhất, bao gồm sắt, tấm lợp và gỗ xoan đào. Đây là các vật liệu phổ biến ở địa phương.
Cách thiết kế, bố trí cấu trúc như vậy đã giúp ngôi nhà luôn ngập tràn ánh sáng tự nhiên dù nằm sâu trong hẻm và bị nhà cao tầng vây quanh.
Mặt tiền được bao bọc bởi cây dây leo xanh tươi, đầy sức sống, khác hẳn với những công trình lân cận.
Mặt tiền được bao bọc bởi dây leo xanh.
Lối tiếp cận từ hẻm vào không gian bên trong qua hành lang như một khoảng đệm, vừa có tác dụng đảm bảo sự riêng tư, vừa tạo cảm giác không gian thoáng đãng, rộng mở hơn.
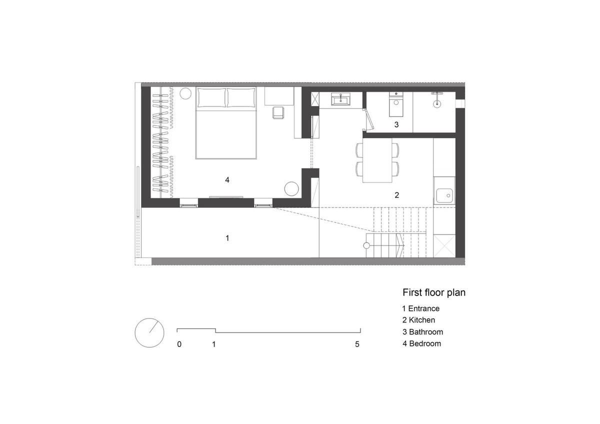
Raincoat House chỉ gồm 2 tầng để tiết kiệm chi phí. Tầng một bao gồm một phòng ngủ, phòng bếp và khu vệ sinh.
Tầng 2 bao gồm phòng làm việc, khu giặt và một khoảng sân áp mái với nhiều cây xanh. Cầu thang sắt lỗ được tạo ra để kết nối hai tầng nhưng vẫn đảm bảo ánh sáng lọt xuống khu bếp vào ban ngày. Đây được coi là khoảng giếng trời mini, lấy ánh sáng cho bếp.
Bếp và bàn ăn nhỏ xinh, bố trí hợp lý. Sự thay đổi chất liệu sàn từ xi măng sang gỗ để phân chia không gian chính - phụ.
Nhóm thiết kế tập trung khai thác không gian và ánh sáng, phần vật tư hoàn thiện không quá chau chuốt.
Khoảng đệm giúp phòng ngủ ngập tràn ánh sáng tươi, không bị tối tăm như các công trình phố khác.
Kiến trúc sư Nguyễn Hoàng Khương đưa ra một số tư vấn cho các gia đình khi chuẩn bị cải tạo hay xây nhà mới.
Theo anh, khi quyết định xây dựng ngôi nhà cho bản thân hoặc gia đình mình, mình thấy ai cũng sẽ gặp những trở ngại nhất định. Ví dụ với ngôi nhà này: Nằm trong hẻm rất sâu khiến việc vận chuyển rác thải và vật liệu khó khăn. Phần nhà dính liền với ngôi nhà cũ, dẫn tới việc phá dỡ khó khăn. Định kiến về việc nhà cải tạo sẽ chắp vá.
Để cải tạo hay quyết định xây mới, theo anh gia chủ nên cân nhắc vài điểm chính sau đây: Thời gian sử dụng của công trình sau cải tạo. So sánh tổng mức đầu tư giữa cải tạo và xây mới. Yếu tố kỹ thuật và công năng của công trình cải tạo có đáp ứng được phần lớn yêu cầu đưa ra hay không?
Cầu thang sắt lỗ được tạo ra để kết nối tầng 1 và tầng 2 nhưng vẫn đảm bảo ánh sáng lọt xuống khu bếp vào ban ngày.
Tổng mức đầu tư được giảm bớt do kết cấu vì kéo mái và nội thất được làm từ gỗ xoan từ vườn quê. Ông bà của chủ nhà đã trồng các cây xoan từ nhiều năm và không ngờ chúng trở thành món quà cho ngôi nhà của cháu nội. Góc ngồi đọc sách thật chill cho gia chủ.
Phòng làm việc đơn giản, nhẹ nhàng với nhiều cửa sổ. Bức tranh DIY giá 18 nghìn đồng vẫn làm nên điểm nhấn tuyệt vời.











