Cải tạo căn hộ diện tích 22 m2 đầy đủ tiện nghi

Cải tạo căn hộ diện tích 22 m2 đầy đủ tiện nghi

Sau khi được cải tạo các khu vực phục vụ nhu cầu sinh hoạt cũng trở nên rộng rãi hơn. Diện tích chỉ 22m2 nhưng căn hộ này lại vô cùng tiện nghi và không kém phần hiện đại.
 

Đây là một dự án cải tạo của một căn hộ cũ có diện tích 22m2 và chiều cao 3,3m. Do giá nhà đất ở thành phố Đài Bắc rất cao nên trong thập kỷ qua, không gian sống mà những người trẻ tuổi có thể mua được ngày càng nhỏ hơn.
Đây là một dự án cải tạo của một căn hộ cũ có diện tích 22m2 và chiều cao 3,3m. Do giá nhà đất ở thành phố Đài Bắc rất cao nên trong thập kỷ qua, không gian sống mà những người trẻ tuổi có thể mua được ngày càng nhỏ hơn.
Đối mặt với diện tích đất không được rộng rãi nhưng yêu cầu các chức năng sống cơ bản vẫn phải có đầy đủ, chính vì thế việc nghiên cứu, phân tích, sắp xếp các nhu cầu của khách hàng cần được tính toán một cách cẩn thận.
Đối mặt với diện tích đất không được rộng rãi nhưng yêu cầu các chức năng sống cơ bản vẫn phải có đầy đủ, chính vì thế việc nghiên cứu, phân tích, sắp xếp các nhu cầu của khách hàng cần được tính toán một cách cẩn thận.
Khách hàng đồng tình với quan điểm rằng, không gian cũng như chức năng sống là vô cùng quan trọng đối với một nơi ở mà người đó sẽ sống trong một thời gian dài, chứ không phải chỉ đơn thuần là một căn phòng cho họ nghỉ ngơi trong kỳ nghỉ ngắn hạn.
Khách hàng đồng tình với quan điểm rằng, không gian cũng như chức năng sống là vô cùng quan trọng đối với một nơi ở mà người đó sẽ sống trong một thời gian dài, chứ không phải chỉ đơn thuần là một căn phòng cho họ nghỉ ngơi trong kỳ nghỉ ngắn hạn.
Khách hàng trong dự án lần này là một cô gái phải thường xuyên đi công tác nước ngoài và sau khi kết thúc công việc và về nhà, tất cả những gì cô ấy cần là tắm nước nóng và có giấc ngủ ngon.
Khách hàng trong dự án lần này là một cô gái phải thường xuyên đi công tác nước ngoài và sau khi kết thúc công việc và về nhà, tất cả những gì cô ấy cần là tắm nước nóng và có giấc ngủ ngon.
Bên cạnh một phòng tắm được trang bị đầy đủ, một nhà bếp nhỏ gọn cũng là yêu cầu được đưa ra, và phải có không gian để lưu trữ quần áo và sách.
Bên cạnh một phòng tắm được trang bị đầy đủ, một nhà bếp nhỏ gọn cũng là yêu cầu được đưa ra, và phải có không gian để lưu trữ quần áo và sách.
Cô cũng hy vọng phòng khách có thể có cả ghế dài và bàn ăn. Bởi vì nhiều cư dân sống trong các căn hộ có diện tích nhỏ ở Đài Bắc chỉ có thể dùng bữa trên ghế sofa.
Cô cũng hy vọng phòng khách có thể có cả ghế dài và bàn ăn. Bởi vì nhiều cư dân sống trong các căn hộ có diện tích nhỏ ở Đài Bắc chỉ có thể dùng bữa trên ghế sofa.
Hiểu được nhu cầu của khách hàng, nhóm kiến trúc sư đã quyết định chấp nhận sự hạn chế của không gian và sử dụng nó một cách có hiệu quả hơn.
Hiểu được nhu cầu của khách hàng, nhóm kiến trúc sư đã quyết định chấp nhận sự hạn chế của không gian và sử dụng nó một cách có hiệu quả hơn.
Đầu tiên, vòi hoa sen được thay thế bằng bồn tắm, và máy giặt được chuyển đến nhà bếp.
Đầu tiên, vòi hoa sen được thay thế bằng bồn tắm, và máy giặt được chuyển đến nhà bếp.
Bởi vì ở Đài Loan, khí gas không thể được dẫn vào nhà mà không có ban công và lò sưởi điện nhỏ không thể cung cấp đủ nước nóng để tắm, chúng tôi đã điều chỉnh cách bố trí nhà vệ sinh để nhường chỗ cho bình nước nóng. Cửa trượt với một chiếc gương không chỉ giúp việc bảo trì dễ dàng mà còn khuếch đại không gian một cách trực quan.
Bởi vì ở Đài Loan, khí gas không thể được dẫn vào nhà mà không có ban công và lò sưởi điện nhỏ không thể cung cấp đủ nước nóng để tắm, chúng tôi đã điều chỉnh cách bố trí nhà vệ sinh để nhường chỗ cho bình nước nóng. Cửa trượt với một chiếc gương không chỉ giúp việc bảo trì dễ dàng mà còn khuếch đại không gian một cách trực quan.
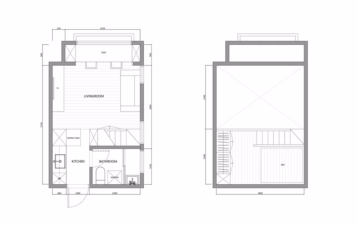
Đồ đạc cố định như tủ bếp, tủ quần áo và kệ được gắn vào tường để tận dụng tối đa chiều cao và tránh lối đi. Tủ quần áo được bố trí ở dưới kệ do tần suất sử dụng cao hơn. Tuy nhiên, một phần của tủ vẫn được sử dụng một các dễ dàng từ khu vực gác lửng.
Đồ đạc cố định như tủ bếp, tủ quần áo và kệ được gắn vào tường để tận dụng tối đa chiều cao và tránh lối đi. Tủ quần áo được bố trí ở dưới kệ do tần suất sử dụng cao hơn. Tuy nhiên, một phần của tủ vẫn được sử dụng một các dễ dàng từ khu vực gác lửng.
Vì chiều cao của tầng lửng không thể cho phép đứng, nên đồ đạc trên đó phải bố trí là giường và bàn làm việc. Tất cả các đồ đạc được xếp chồng lên nhau nhưng tuân theo nguyên tắc không được nén, làm giảm kích thước của đồ đạc.
Vì chiều cao của tầng lửng không thể cho phép đứng, nên đồ đạc trên đó phải bố trí là giường và bàn làm việc. Tất cả các đồ đạc được xếp chồng lên nhau nhưng tuân theo nguyên tắc không được nén, làm giảm kích thước của đồ đạc.
Có hai bàn gỗ đặt dọc theo bức tường trong phòng khách có thể là một bàn dài giúp tiết kiệm phòng và có thể kết hợp theo hướng khác để trở thành bàn ăn. Do đó, không gian trống linh hoạt cho các nhu cầu khác nhau, và làm cho căn hộ nhỏ bớt chật chội.
Có hai bàn gỗ đặt dọc theo bức tường trong phòng khách có thể là một bàn dài giúp tiết kiệm phòng và có thể kết hợp theo hướng khác để trở thành bàn ăn. Do đó, không gian trống linh hoạt cho các nhu cầu khác nhau, và làm cho căn hộ nhỏ bớt chật chội.
Căn hộ nhỏ có đủ ánh sáng và thông gió tự nhiên, và màu sắc chính được sử dụng là màu trắng kết hợp cùng gỗ sồi làm cho không gian sáng sủa và rộng rãi hơn. Ở một thành phố như Đài Bắc, nơi không gian sống bị hạn chế, dự án là một giải pháp thiết thực cho những người sở hữu một không gian sống nhỏ bé như thế này.
Căn hộ nhỏ có đủ ánh sáng và thông gió tự nhiên, và màu sắc chính được sử dụng là màu trắng kết hợp cùng gỗ sồi làm cho không gian sáng sủa và rộng rãi hơn. Ở một thành phố như Đài Bắc, nơi không gian sống bị hạn chế, dự án là một giải pháp thiết thực cho những người sở hữu một không gian sống nhỏ bé như thế này.

GALLERY MỚI NHẤT