Ngôi nhà này nằm ở vùng ngoại ô, địa hình xung quanh chủ yếu là đồi núi và có lượng mưa lớn.
Do đó, KTS chia ngôi nhà thành ba gian hình vuông, nằm dọc theo chiều dài của khu đất, mỗi gian có dạng giống như nhà sàn để tạo nền trên cao, chống ngập úng vào mùa mưa.
Sự tách biệt giữa các gian nhà cho phép ánh nắng mặt trời được len lỏi vào sâu hơn trong không gian nhà.
Về cấu trúc, mỗi gian trong số ba gian hình vuông được chia nhỏ thành một mạng lưới kết cấu 3,6m với các trụ thép ở mỗi góc hỗ trợ sàn nhà khỏi mặt đất. Các thanh giằng chéo bằng thép đã được loại bỏ bằng cách sử dụng đất và một lò sưởi bằng khối kết nối tầng cao nhất với mặt đất.
Cửa sổ dạng vách cho phép mỗi phòng ngủ giống như một mái hiên khi mở ra.
Phía trên của căn nhà có ba dạng mái hình kim tự tháp. Trên đỉnh của mỗi mái nhà là một giếng trời có thể hoạt động bằng năng lượng mặt trời được tự động hóa giúp mở và đóng cửa để thoát khí nóng cũng như hút gió qua các cửa sổ bên ngoài.
Phần bên dưới của các gian nhà được tận dụng làm nơi đậu xe ô tô hoặc các khu vực giải trí ngoài trời có mái che.
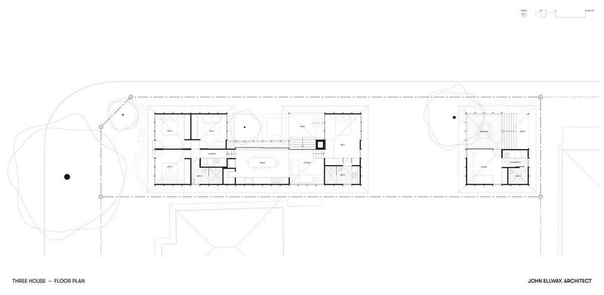
Khu vực riêng tư bao gồm phòng ngủ và phòng tắm nằm ở gian cao nhất trong khuôn viên ngôi nhà.
Khu vực cao thứ 2 là khu vực sinh hoạt hình chữ nhật, khu vực này có vai trò làm cầu nối giữa các không gian riêng tư liền kề.
Khu vực thứ ba nằm ở phía xa hơn so với 2 khu vực vừa nêu. Mục đích sử dụng hiện tại của nó là nhà ở thứ cấp hay nơi cho khách ngủ khi đến thăm nhà.
Hình ảnh khác của ngôi nhà.

