Biệt thự đầu tiên ở Cần Thơ đáp ứng loạt tiêu chí công trình xanh

Căn biệt thự gây chú ý khi kết hợp đồng bộ các giải pháp không gian mở, thông gió và chiếu sáng tự nhiên, giúp con người sống chan hoà với thiên nhiên.

Tọa lạc tại TP.Cần Thơ, bên dòng sông Mekong êm đềm, biệt thự này được thiết kế theo phong cách hiện đại, phù hợp với Tiêu chuẩn Công trình Xanh của Lotus Home, được chứng nhận bởi Hội đồng Công trình Xanh Việt Nam, với không gian mở giao hoà với thiên nhiên. 

Biet thu dau tien o Can Tho dap ung loat tieu chi cong trinh xanh
Biệt thự có diện tích 1.800m2. 

Với mật độ xây dựng dưới 15%, ưu tiên cho không gian xanh, mặt nước, bề mặt cỏ thấm nước mưa, cây xanh trên mái… tất cả góp phần làm giảm hiệu ứng đảo nhiệt đô thị.

Cảnh quan khu vườn được trồng các loại cây ăn trái, cây xanh địa phương như: Xoài, vú sữa, chôm chôm, kè…, hồ cá sinh thái bờ mềm, trồng các loại cây thủy sinh lọc nước tự nhiên như sen, hoa súng,rau má, thuỷ trúc… 

Ngôi nhà, cây cối địa phương, ao sinh thái giúp hút nước mưa. Trong tương lai, gia chủ có thể sử dụng hệ thống lọc để tái sử dụng nước mưa thành nguồn nước uống tinh khiết. 

Biet thu dau tien o Can Tho dap ung loat tieu chi cong trinh xanh-Hinh-2
Biệt thự nằm trong khu dân cư quy hoạch mới, hạ tầng hoàn chỉnh. 
Biet thu dau tien o Can Tho dap ung loat tieu chi cong trinh xanh-Hinh-3
Biệt thự có thiết kế kiến trúc hiện đại. 
Biet thu dau tien o Can Tho dap ung loat tieu chi cong trinh xanh-Hinh-4
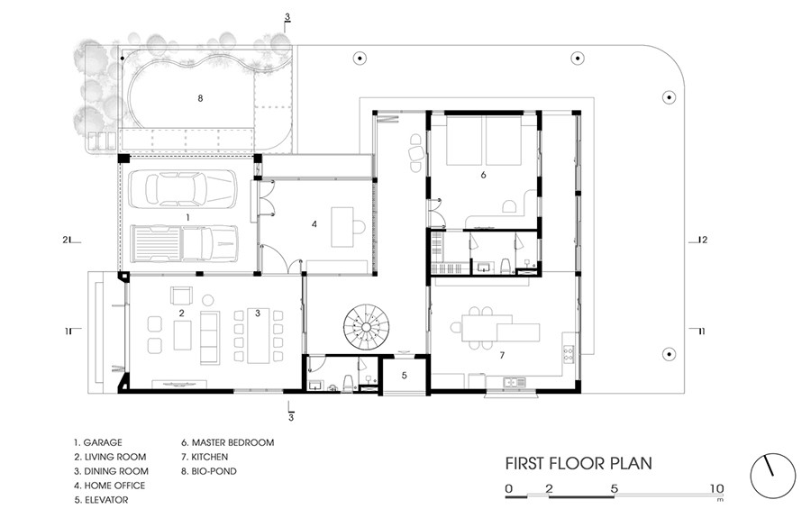
Mặt bằng chi tiết tầng 1. 

Nằm ở vùng khí hậu đặc trưng gió mùa của Đồng bằng sông Cửu Long, biệt thự này được thiết kế với các không gian mở, các bức tường hoa gió, các vị trí cửa đi và cửa sổ được bố trí hợp lý nhằm đón và tối ưu hoá các dòng gió đối lưu đem đến sự mát mẻ tự nhiên bên trong nhà. 

Với nguồn sáng mặt trời dồi dào của vùng nhiệt đới, kiến trúc sư đã đưa giải pháp chiếu sáng tự nhiên vào công trình như: Sân vườn trong nhà, giếng trời cùng các cửa sổ lấy sáng lớn giúp công trình gần như không phải sử dụng ánh sáng nhân tạo vào ban ngày. Các thành viên trong gia đình dễ dàng nhìn thấy nhau và tận hưởng vẻ đẹp của khu vườn xung quanh. 

Biet thu dau tien o Can Tho dap ung loat tieu chi cong trinh xanh-Hinh-5
Với mật độ xây dựng dưới 15%, gia chủ muốn ưu tiên cho không gian xanh. 
Biet thu dau tien o Can Tho dap ung loat tieu chi cong trinh xanh-Hinh-6
Góc thư giãn ngoài trời thú vị. 
Biet thu dau tien o Can Tho dap ung loat tieu chi cong trinh xanh-Hinh-7
Không gian phòng khách tràn ngập ánh sáng tự nhiên. 
Biet thu dau tien o Can Tho dap ung loat tieu chi cong trinh xanh-Hinh-8
Nhà bếp được bao bọc bởi sân vườn. 
Biet thu dau tien o Can Tho dap ung loat tieu chi cong trinh xanh-Hinh-9
Giải pháp thông gió cho công trình. 
Biet thu dau tien o Can Tho dap ung loat tieu chi cong trinh xanh-Hinh-10
Cầu thang xoắn ốc đặt ở vị trí trung tâm biệt thự. 
Biet thu dau tien o Can Tho dap ung loat tieu chi cong trinh xanh-Hinh-11
Cầu thang này như là một điểm nhấn của ngôi nhà. 
Biet thu dau tien o Can Tho dap ung loat tieu chi cong trinh xanh-Hinh-12
Nó còn có vai trò như một giếng trời lấy ánh sáng tự nhiên cho không gian sảnh chính của ngôi nhà. 

Công trình sử dụng các vật liệu thân thiện với môi trường như gạch không nung làm vách ngăn, thép chịu nhiệt cho hàng rào và mặt tiền hai lớp. Gỗ trồng được sử dụng cho sàn và đồ nội thất. 

Việc kết hợp đồng bộ giữa các giải pháp thông gió và lấy ánh sáng tự nhiên, cách nhiệt cho mái, mặt tiền hai lớp, kính hai lớp low-E che nắng hướng Tây… giúp cho ngôi nhà sử dụng năng lượng nhân tạo một cách hiệu quả và tiết kiệm. 

Con đường cảnh quan dài 50m tạo sự kết nối cho người dân địa phương tiếp cận với công viên cây xanh gần đó và có thể sử dụng cho các hoạt động cộng đồng khác. 

Biet thu dau tien o Can Tho dap ung loat tieu chi cong trinh xanh-Hinh-13
Mặt bằng chi tiết tầng 2 của biệt thự. 
Biet thu dau tien o Can Tho dap ung loat tieu chi cong trinh xanh-Hinh-14
Tầng 2 bố trí 3 phòng ngủ. 
Biet thu dau tien o Can Tho dap ung loat tieu chi cong trinh xanh-Hinh-15
Các phòng ngủ được trang trí theo phong cách khác nhau. 

Ngôi nhà được phân chia theo từng khu vực rõ ràng. Phòng ngủ chính nằm ở khu vực riêng tư nhưng vẫn có tầm nhìn đẹp nhất ra khu vườn xung quanh nhà. Ở tầng một, các phòng ngủ khác nằm xung quanh một khu vườn nhỏ và yên tĩnh. Khu vườn này cũng là không gian để thư giãn và mang nhiều ánh sáng tự nhiên và thông gió vào các phòng ngủ.

Phòng khách, phòng ăn và bếp được thiết kế sang trọng. Mỗi phòng ngủ đều có thiết kế hiện đại và trang nhã, thể hiện cá tính của người sử dụng. Bên trong tất cả các phòng luôn có ánh sáng tự nhiên và tầm nhìn ra sân vườn. 

Biet thu dau tien o Can Tho dap ung loat tieu chi cong trinh xanh-Hinh-16
Tầm nhìn xuống sân vườn từ tầng 2. 
Biet thu dau tien o Can Tho dap ung loat tieu chi cong trinh xanh-Hinh-17
Các mảng xanh được đưa vào từng ngóc ngách của công trình. 
Biet thu dau tien o Can Tho dap ung loat tieu chi cong trinh xanh-Hinh-18
Thép chịu nhiệt được sử dụng trong công trình. 
Biet thu dau tien o Can Tho dap ung loat tieu chi cong trinh xanh-Hinh-19
Hệ thống cửa hai lớp này vừa có tác dụng chống ánh nắng trực tiếp...
Biet thu dau tien o Can Tho dap ung loat tieu chi cong trinh xanh-Hinh-20
... vừa hiệu quả trong việc tận dụng tối đa ánh sáng tự nhiên vào ngôi nhà.  

Cầu thang xoắn ốc là điểm nhấn nghệ thuật ở vị trí trung tâm ngôi nhà. Đây cũng là giếng trời để lấy ánh sáng tự nhiên và lưu thông không khí cho công trình. 

Tầng trên cùng là không gian thư giãn với phòng xông hơi giữa thiên nhiên. Gạch hoa gió được sử dụng nhằm tạo sự riêng tư nhưng vẫn đáp ứng sự thông thoáng và chiếu sáng tự nhiên. 

Biet thu dau tien o Can Tho dap ung loat tieu chi cong trinh xanh-Hinh-21
Tầng trên cùng của biệt thự là không gian thư giãn của gia đình. 
Biet thu dau tien o Can Tho dap ung loat tieu chi cong trinh xanh-Hinh-22
Tầm nhìn từ các không gian ở tầng 2 rất thoáng đãng. 
Biet thu dau tien o Can Tho dap ung loat tieu chi cong trinh xanh-Hinh-23
Phòng xông hơi nằm ở tầng trên cùng của biệt thự. 
Biet thu dau tien o Can Tho dap ung loat tieu chi cong trinh xanh-Hinh-24
Con đường cảnh quan dài 50m, nơi người dân địa phương có thể đi ra công viên gần đó và có thể sử dụng cho các hoạt động cộng đồng khác. 
Biet thu dau tien o Can Tho dap ung loat tieu chi cong trinh xanh-Hinh-25
Đây là công trình nhà ở đầu tiên tại TP.Cần Thơ đạt chứng nhận công trình xanh của Hội đồng Công trình Xanh Việt Nam. 

Biệt thự giữa phố cổ của đại gia “ném” tiền tỷ chơi chim cảnh

(Kiến Thức) - Căn biệt thự của đại gia Chương Tailor nằm giữa trung tâm thủ đô Hà Nội được thiết kế theo kiểu cổ điển, sang trọng. Trong biệt thự có hồ cá Koi rộng tới 16m2. 

Biet thu giua pho co cua dai gia “nem” tien ty choi chim canh
 Anh Dương Văn Chương (tên thường gọi là Chương Tailor) được biết đến là đại gia nức tiếng Hà thành khi sở hữu chuỗi cửa hàng veston nổi tiếng và bộ sưu tập chim độc lạ trị giá hàng chục tỷ đồng. Ảnh: Dân Việt.

Đọ biệt thự dát vàng, sang như khách sạn 5 sao của mỹ nhân Việt

(Kiến Thức) - Sống trong những căn biệt thự sang trọng với nhiều chi tiết dát vàng lộng lẫy, nhiều mỹ nhân Việt khiến khán giả tưởng như ở trong khách sạn 5 sao nào đó.

Do biet thu dat vang, sang nhu khach san 5 sao cua my nhan Viet
 Nhắc đến biệt thự dát vàng của mỹ nhân Việt không thể bỏ qua căn biệt thự tại khu dân cư Thảo Điển (quận 2, TP HCM) của Lý Nhã Kỳ. Nhìn từ bên ngoài, căn biệt thự này trông không khác gì toà lâu đài của hoàng gia thời xưa. Ảnh: Facebook

Những biệt thự vườn hiện đại "đáng đồng tiền bát gạo"

Biệt thự vườn thường gây ấn tượng bởi nét đẹp sang trọng nhưng cũng rất gần gũi, thanh bình. Đại dịch COVID-19 càng khiến nhiều người dư dả về tài chính quan tâm đến việc xây dựng một biệt thự vườn làm chốn nghỉ ngơi yên bình.

Nhung biet thu vuon hien dai
Biệt thự vườn chú trọng đến không gian sân vườn, đài phun nước, hòn non bộ, hồ bơi… nên thường được xây dựng trên những mảnh đất diện tích lớn ở ngoại thành hoặc các vùng nông thôn.
Nhung biet thu vuon hien dai
Biệt thự vườn này có hệ cửa sử dụng chất liệu kính trong suốt toát lên vẻ đẹp hiện đại, phù hợp với tổng thể công trình. Hệ tường rào bao quanh đan xen các thanh lam bằng gỗ vừa đẹp mắt lại đảm bảo yếu tố an ninh.

Đọc nhiều nhất

Tin mới

Vạch trần thủ đoạn của Lê Trung Khoa

Vạch trần thủ đoạn của Lê Trung Khoa

Thủ đoạn Lê Trung Khoa là sử dụng AI, Deepfake để giả mạo âm thanh, hình ảnh của lãnh đạo Đảng, Nhà nước, cắt ghép, giật tít gây sốc, kiếm lợi bất chính.