Những năm gần đây, xu hướng xây nhà cấp 4 mái thái có sân vườn đang rất được ưa chuộng.
Kiểu nhà này thích hợp xây dựng trên những miếng đất rộng khoảng trên 100m2. Sở dĩ nó được yêu thích bởi thiết kế đơn giản nhưng đẹp mắt, không quá đồ sộ nhưng vẫn đảm bảo đủ không gian sinh hoạt cho cả gia đình.
Đặc biệt, so với nhà cao tầng, nhà cấp 4 có thời gian thi công rất ngắn chỉ khoảng 5 - 6 tháng là hoàn thành. Hơn nữa, mức phí xây dựng cũng không quá lớn.
Với nhu cầu hiện nay, ngoài 1 căn nhà đẹp, người ta còn tính toán đến việc xây dựng khuôn viên xung quanh vừa đảm bảo thẩm mỹ lại có cây xanh tạo không khí trong lành.
Khu sân vườn ngoài không gian vui chơi còn có khoảnh vườn nhỏ trồng rau, trồng hoa,... Mô hình này rất phù hợp với các gia đình xây nhà tại vùng ngoại ô, nông thôn.
Ước tính, 1 căn nhà cấp 4 mái thái có diện tích khoảng 100m2 sẽ tiêu tốn khoảng 350 - 400 triệu đồng.
Lưu ý, mức phí này chỉ là dự tính, chi phí thực tế có thể tăng thêm tùy vào giá vật liệu trên thị trường, giá nhân công ở từng khu vực.
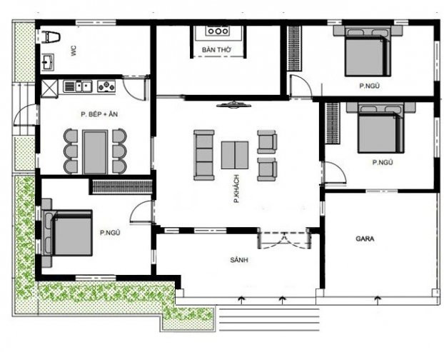
Gợi ý mẫu nhà cấp 4 mái thái có sân vườn đẹp
Với thiết kế này, rất nhiều người băn khoăn không biết bố trí khoảnh sân vườn này ở vị trí nào là hợp lý. Trên thực tế, sân vườn có thể bố trí ở trước nhà hoặc tận dụng khoảng trống bên cạnh cửa chính hay đặt ở khu vực phía sau của ngôi nhà.
Tùy vào mong muốn, sở thích của gia chủ mà lựa chọn vị trí cho phù hợp và tiện lợi nhất.
Bản vẽ mẫu nhà cấp 4 mái thái đẹp 2020-2-21
Tham khảo các bản vẽ mẫu cho các căn nhà cấp 4 mái thái được nhiều người ưa chuộng năm 2020-2021

