Theo quan điểm của đơn vị thiết kế, biệt thự này không chỉ là nơi lánh xa những yếu tố tác động của môi trường mà còn phản ánh phong cách sống của gia chủ.
Chủ nhân của căn biệt thự này luôn muốn tạo ra một sự kết hợp tuyệt vời giữa các không gian khác nhau trong nhà để gìn giữ sự kết nối truyền thống giữa các thế hệ trong một gia đình Việt Nam.
Đó là cách đơn giản mà đơn vị thiết kế bắt đầu và tiếp cận để thiết kế ngôi nhà với một khoảng trống lớn ở giữa làm tăng sự kết nối giữa các không gian của ngôi nhà.
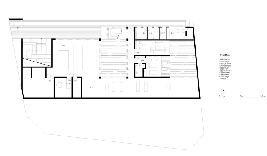
Khoảng thông tầng lớn này, cộng với mặt nước và ánh sáng trời nhằm kết nối tự nhiên, tạo ra sự liên kết tất cả không gian như phòng ngủ, phòng khách, phòng spa, phòng tập thể dục và cả khu vực đậu xe.
Nguyên tắc này kết hợp với sự vận dụng khéo léo quy luật thông gió tự nhiên đã giữ cho ngôi nhà luôn mát mẻ và mang đến cho gia đình những trải nghiệm sảng khoái.
Cách xử lý đó cùng với việc kết hợp cây xanh, gió và mặt nước, khoảng trống trong ngôi nhà đã trở thành môi trường trong lành, thanh khiết, tạo thêm sức sống cho ngôi nhà.
Nằm ở phía trực diện với hướng mặt trời mọc, ngôi nhà tuy đón ánh sáng dịu nhẹ và chiếu góc chếch thẳng vào buổi sáng nhưng phải hứng chịu ánh nắng gay gắt vào buổi trưa.
Để giải quyết vấn đề này, kiến trúc sư đã tạo ra những tán cây lớn để giảm nhiệt từ ánh nắng gay gắt ở góc trên cao và những tấm cửa gió thẳng đứng để đón ánh nắng sớm vào trong nhà và đón những làn gió ban mai bằng bóng râm và ánh nắng ban mai.
Hình dạng phong phú của bóng đổ là một trong những quy luật tự nhiên mà kiến trúc sư muốn kết hợp vào kiến trúc, tạo nên quan niệm thiết kế chấp nhận quy luật tự nhiên mà sống cùng với nó.
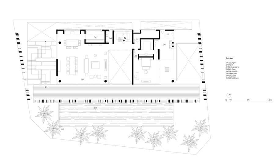
Tận dụng lợi thế của không gian công viên phía trước nhà và cảnh quan xung quanh, kiến trúc sư đã nâng tầng sinh hoạt lên để không chỉ thuận tiện cho việc đậu xe mà còn xoá nhoà ranh giới giữa cảnh quan và mức độ riêng tư từ độ cao này.
Từ đó, kiến trúc sư đã tạo ra không gian chuyển tiếp bằng việc kết hợp các bậc cấp nổi trên mặt nước nhằm tăng sự giao tiếp của con người với thiên nhiên, mang đến cảm giác cho thành viên trong gia đình như đang thư giãn ở một nơi nghỉ dưỡng, xoá tan mọi muộn phiền trong cuộc sống.
Với cảnh quan thiên nhiên, tầm nhìn thoáng đãng và khu vực sinh hoạt thoải mái, ngôi nhà này thực sự là nơi gia chủ có thể tận hưởng một không gian sống sang trọng, riêng tư.
Đó là cách đơn vị thiết kế tạo ra một công trình không chỉ phản ánh văn hóa của một gia đình Việt Nam hiện đại mà còn thích ứng với khí hậu nhiệt đới để bảo vệ kiến trúc khỏi những bất lợi của thời tiết.
Triết lý của đơn vị thiết kế là không chỉ tạo ra hình thức và không gian mà còn kết nối phong cách sống của con người với thiên nhiên.
