Căn hộ thiết kế “hộp ngủ” tiết kiệm diện tích 1-0-2

Căn hộ thiết kế “hộp ngủ” tiết kiệm diện tích 1-0-2

Nhờ thiết kế hợp lý giúp tận dụng tốt không gian eo hẹp, căn hộ chỉ 35 m2 vẫn sở hữu đầy đủ tiện nghi và không tạo cảm giác bí bách.

 Căn hộ có diện tích sàn 35 m2, được thiết kế bởi Bazi Studio.
Căn hộ có diện tích sàn 35 m2, được thiết kế bởi Bazi Studio.
Một góc căn hộ được thiết kế nâng lên thành giường ngủ.
Một góc căn hộ được thiết kế nâng lên thành giường ngủ.
Chiếc "hộp ngủ" đủ chỗ cho hai người, tuy nhiên chủ nhân chỉ có thể ngồi, không đứng được trong "hộp".
Chiếc "hộp ngủ" đủ chỗ cho hai người, tuy nhiên chủ nhân chỉ có thể ngồi, không đứng được trong "hộp".
Không gian sinh hoạt chính được ngăn cách với khu vực cửa ra vào bằng một rèm lớn cùng màu gỗ.
Không gian sinh hoạt chính được ngăn cách với khu vực cửa ra vào bằng một rèm lớn cùng màu gỗ.
Bên dưới giường ngủ là tủ đồ dạng ngăn kéo, gồm ba ngăn lớn giúp chủ nhân có thêm không gian chứa đồ. Bậc thang lên giường ngủ cũng là những ngăn kéo ẩn để chứa đồ.
Bên dưới giường ngủ là tủ đồ dạng ngăn kéo, gồm ba ngăn lớn giúp chủ nhân có thêm không gian chứa đồ. Bậc thang lên giường ngủ cũng là những ngăn kéo ẩn để chứa đồ.
Ngay cả những góc nhỏ nhất trong căn hộ cũng được tận dụng để không lãng phí không gian.
Ngay cả những góc nhỏ nhất trong căn hộ cũng được tận dụng để không lãng phí không gian.
Bếp ăn với nội thất mang tông trắng. Màu trắng giúp không gian có cảm giác rộng hơn thực tế. Tuy nhiên, kiến trúc sư vẫn khéo léo sử dụng gạch hoa để tạo điểm nhấn cho căn bếp nhằm tách biệt không gian.
Bếp ăn với nội thất mang tông trắng. Màu trắng giúp không gian có cảm giác rộng hơn thực tế. Tuy nhiên, kiến trúc sư vẫn khéo léo sử dụng gạch hoa để tạo điểm nhấn cho căn bếp nhằm tách biệt không gian.
Phòng tắm rộng rãi, có bồn tắm.
Phòng tắm rộng rãi, có bồn tắm.
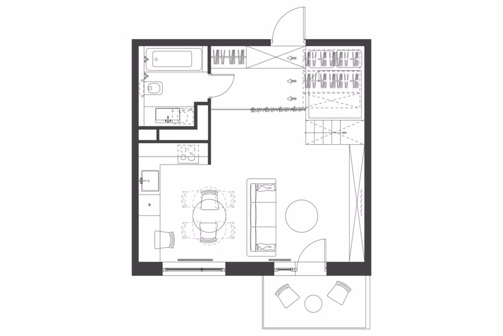
Mặt bằng căn hộ 35 m2. Theo kiến trúc sư, khi cần thiết sofa có thể được kéo áp tường để mở rộng căn bếp, phục vụ mở một bữa tiệc cho 10 người một cách thoải mái.
Mặt bằng căn hộ 35 m2. Theo kiến trúc sư, khi cần thiết sofa có thể được kéo áp tường để mở rộng căn bếp, phục vụ mở một bữa tiệc cho 10 người một cách thoải mái.

GALLERY MỚI NHẤT