Vẻ đẹp không ngờ bên trong căn biệt thự bêtông thô kệch ở TP HCM

Vẻ đẹp không ngờ bên trong căn biệt thự bêtông thô kệch ở TP HCM

Ẩn sau những khối bê tông lớn của ngôi nhà ở TP HCM là một không gian tiện nghi, thoáng mát, với lối bài trí độc đáo.

Thông thường trong các dự án, hệ thống dầm và cột bê tông vốn chỉ được sử dụng để giải phóng các sơ đồ tầng của các cột, kết nối tốt hơn các không gian khác nhau.
Thông thường trong các dự án, hệ thống dầm và cột bê tông vốn chỉ được sử dụng để giải phóng các sơ đồ tầng của các cột, kết nối tốt hơn các không gian khác nhau.
Trong ngôi nhà này, các kiến trúc sư sử dụng hệ thống bê tông này không chỉ trong cấu trúc, mà còn là không gian phân vùng và thẩm mỹ tổng quan của dự án.
Trong ngôi nhà này, các kiến trúc sư sử dụng hệ thống bê tông này không chỉ trong cấu trúc, mà còn là không gian phân vùng và thẩm mỹ tổng quan của dự án.
Trên diện tích xây dựng 870 m2, các kiến trúc sư đã sử dụng hệ thống dầm và cột bê tông để thiết kế, tạo không gian kết nối giữa bên trong và bên ngoài căn biệt thự được tốt hơn.
Trên diện tích xây dựng 870 m2, các kiến trúc sư đã sử dụng hệ thống dầm và cột bê tông để thiết kế, tạo không gian kết nối giữa bên trong và bên ngoài căn biệt thự được tốt hơn.
Hầu hết mặt trước là bê tông và kính trắng, các khối không gian mở. Cổng vào được mở rộng bằng gỗ cùng hệ thống bê tông kiên cố.
Hầu hết mặt trước là bê tông và kính trắng, các khối không gian mở. Cổng vào được mở rộng bằng gỗ cùng hệ thống bê tông kiên cố.
Một loạt các cột bê tông được nhóm thành 3 chân trụ đóng vai trò là điểm neo kết cấu cho các phần kết cấu dầm.
Một loạt các cột bê tông được nhóm thành 3 chân trụ đóng vai trò là điểm neo kết cấu cho các phần kết cấu dầm.
3 chân trụ này tạo ra những trải nghiệm không gian cho toàn bộ ngôi nhà.
3 chân trụ này tạo ra những trải nghiệm không gian cho toàn bộ ngôi nhà.
Mặt sau lại được phủ bởi lớp cửa gỗ trượt, có thể đóng mở dễ dàng theo ý thích.
Mặt sau lại được phủ bởi lớp cửa gỗ trượt, có thể đóng mở dễ dàng theo ý thích.
Những lớp cửa này giúp đón ánh nắng và luồng gió tự nhiên một cách dễ dàng, làm bừng sáng không gian bên trong những lớp bê tông tối màu.
Những lớp cửa này giúp đón ánh nắng và luồng gió tự nhiên một cách dễ dàng, làm bừng sáng không gian bên trong những lớp bê tông tối màu.
Các loại cây được bài trí khắp mọi không gian, mang lại màu sắc xanh tươi đối lập với không gian tổng quan.
Các loại cây được bài trí khắp mọi không gian, mang lại màu sắc xanh tươi đối lập với không gian tổng quan.
Bê tông giờ đây không chỉ làm dầm hay trụ, mà còn định hướng tính thẩm mĩ cho mọi không gian, ví dụ như căn phòng khách này.
Bê tông giờ đây không chỉ làm dầm hay trụ, mà còn định hướng tính thẩm mĩ cho mọi không gian, ví dụ như căn phòng khách này.
Nhờ các khối cột và trần bê tông, căn biệt thự được phân định các không gian trải nghiệm khác nhau dù các không gian được thiết kế liền kề.
Nhờ các khối cột và trần bê tông, căn biệt thự được phân định các không gian trải nghiệm khác nhau dù các không gian được thiết kế liền kề.
Phòng khách và bếp không có vách ngăn nhưng vẫn dễ dàng phân định
Phòng khách và bếp không có vách ngăn nhưng vẫn dễ dàng phân định
Cảm giác đứng giữa phòng khách và bòng bếp khiến người tham quan cảm thấy như đứng giữa một căn hầm chiến đấu rộng lớn giữa thiên nhiên.
Cảm giác đứng giữa phòng khách và bòng bếp khiến người tham quan cảm thấy như đứng giữa một căn hầm chiến đấu rộng lớn giữa thiên nhiên.
Ngôi nhà có những không gian đọc sách thư giãn rất đơn giản…
Ngôi nhà có những không gian đọc sách thư giãn rất đơn giản…
…và cũng có những không gian tiếp khách và trải nghiệm cực kỳ sang trọng.
…và cũng có những không gian tiếp khách và trải nghiệm cực kỳ sang trọng.
Phòng ngủ mang đậm nối thiết kế phương Tây, khá đơn giản nhưng vẫn mang lại không gian thoáng đãng vừa ấm cúng.
Phòng ngủ mang đậm nối thiết kế phương Tây, khá đơn giản nhưng vẫn mang lại không gian thoáng đãng vừa ấm cúng.
Các khối kính trong suốt cỡ lớn giúp ánh sáng tự nhiên có thể tràn vào căn phòng.
Các khối kính trong suốt cỡ lớn giúp ánh sáng tự nhiên có thể tràn vào căn phòng.
Bồn tắm ngoài trời sang trọng, không gian gần gũi với thiên nhiên sẽ mang lại cảm giác thư giãn tuyệt vời cho chủ nhân của ngôi nhà.
Bồn tắm ngoài trời sang trọng, không gian gần gũi với thiên nhiên sẽ mang lại cảm giác thư giãn tuyệt vời cho chủ nhân của ngôi nhà.
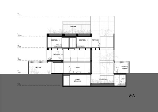
Sơ đồ thiết kế tổng quan của ngôi nhà.
Sơ đồ thiết kế tổng quan của ngôi nhà.

GALLERY MỚI NHẤT

Cận cảnh công trình hồ điều hòa Cự Khối gần 1.000 tỷ ở Long Biên

Cận cảnh công trình hồ điều hòa Cự Khối gần 1.000 tỷ ở Long Biên

Dự án mương Việt Hưng - Cầu Bây và hồ điều hòa Cự Khối tại phường Long Biên đang được tăng tốc thi công với nhiều hạng mục đạt tiến độ tích cực. Khi hoàn thành, công trình sẽ góp phần giảm úng ngập, nâng cao năng lực tiêu thoát nước và cải thiện cảnh quan khu vực phía Đông Hà Nội.