Những mẫu nhà cấp 4, 3 phòng ngủ được ưa chuộng hiện nay

Những mẫu nhà cấp 4, 3 phòng ngủ được ưa chuộng hiện nay

Các mẫu nhà cấp 4 có 3 phòng ngủ rất đa dạng về kiểu dáng, giá thành xây dựng, không gian lại có tính kết nối chứ không tách biệt như nhà tầng, tạo sự gần gũi cho các thành viên trong gia đình.

Đây là mẫu nhà cấp 4 có 3 phòng ngủ và một phòng thờ. Bản vẽ cho thấy mặt bằng nhà không quá rộng, phòng ngủ được phân bố ở hai phía nhà, ở giữa là phòng khách, sau phòng khách là phòng thờ nhỏ rồi phòng bếp
Đây là mẫu nhà cấp 4 có 3 phòng ngủ và một phòng thờ. Bản vẽ cho thấy mặt bằng nhà không quá rộng, phòng ngủ được phân bố ở hai phía nhà, ở giữa là phòng khách, sau phòng khách là phòng thờ nhỏ rồi phòng bếp
Mẫu nhà này có diện tích 100m2, được thiết kế với phong cách thanh lịch, trang nhã. Chi phí xây dựng khoảng 600 triệu đồng
Mẫu nhà này có diện tích 100m2, được thiết kế với phong cách thanh lịch, trang nhã. Chi phí xây dựng khoảng 600 triệu đồng
Ngôi nhà này được xây dựng trên diện tích 80m2. Mẫu thiết kế này đáp ứng mọi nhu cầu thiết yếu như không gian sử dụng, phong cách hiện đại và tiết kiệm chi phí
Ngôi nhà này được xây dựng trên diện tích 80m2. Mẫu thiết kế này đáp ứng mọi nhu cầu thiết yếu như không gian sử dụng, phong cách hiện đại và tiết kiệm chi phí
Đây là bản vẽ một mẫu nhà cấp 4 có sân vườn thân thiện với thiên nhiên. Ngôi nhà có chiều sâu, được bố trí không gian hợp lí, có sân trước, sân sau và vườn. Nhà gồm 3 phòng ngủ, 2 nhà vệ sinh
Đây là bản vẽ một mẫu nhà cấp 4 có sân vườn thân thiện với thiên nhiên. Ngôi nhà có chiều sâu, được bố trí không gian hợp lí, có sân trước, sân sau và vườn. Nhà gồm 3 phòng ngủ, 2 nhà vệ sinh
Mẫu nhà cấp 4 có 3 phòng ngủ này thiết kế theo hơi hướng Hàn Quốc, phù hợp cho gia đình ít người. Phòng khách liền bếp có không gian mở thường thấy ở chung cư. 3 phòng ngủ có cấu trúc giống nhau, riêng phòng ngủ master có cửa ra hiên tiện lợi
Mẫu nhà cấp 4 có 3 phòng ngủ này thiết kế theo hơi hướng Hàn Quốc, phù hợp cho gia đình ít người. Phòng khách liền bếp có không gian mở thường thấy ở chung cư. 3 phòng ngủ có cấu trúc giống nhau, riêng phòng ngủ master có cửa ra hiên tiện lợi
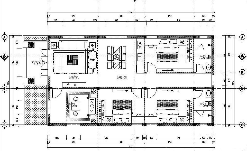
Nhà cấp 4 chữ L giải quyết được vấn đề giảm nóng vào mùa hè, dễ dàng thoát nước vào mùa mưa nhờ hệ thống mái thái chữ A nên rất phù hợp với khí hậu Việt Nam. Sảnh chính được thiết kế rộng hơn giúp ngôi nhà hút gió, đón ánh sáng dễ dàng hơn
Nhà cấp 4 chữ L giải quyết được vấn đề giảm nóng vào mùa hè, dễ dàng thoát nước vào mùa mưa nhờ hệ thống mái thái chữ A nên rất phù hợp với khí hậu Việt Nam. Sảnh chính được thiết kế rộng hơn giúp ngôi nhà hút gió, đón ánh sáng dễ dàng hơn
Ngôi nhà này có cảm hứng thiết kế từ phong cách Mỹ. Sự kết hợp hai màu cơ bản chủ đạo trắng, đen cho thấy sự hài hòa trong cách phối màu một cách tổng thể
Ngôi nhà này có cảm hứng thiết kế từ phong cách Mỹ. Sự kết hợp hai màu cơ bản chủ đạo trắng, đen cho thấy sự hài hòa trong cách phối màu một cách tổng thể
Mẫu nhà cấp 4 mái thái có gác lửng 3 phòng ngủ được cho là khá thông dụng, độc đáo, tạo nên sự thanh thoát, nổi bật
Mẫu nhà cấp 4 mái thái có gác lửng 3 phòng ngủ được cho là khá thông dụng, độc đáo, tạo nên sự thanh thoát, nổi bật
Mẫu nhà mái bằng có gác lửng tuy không phổ biến như mái thái nhưng vẫn luôn được ưa thích vì kiểu dáng đẹp, chẳng lo bị lỗi mốt
Mẫu nhà mái bằng có gác lửng tuy không phổ biến như mái thái nhưng vẫn luôn được ưa thích vì kiểu dáng đẹp, chẳng lo bị lỗi mốt
Đây là kiểu bố cục chia nhà cấp 4 có 3 phòng ngủ đầy đủ công năng và đẹp mắt, phù hợp với diện tích đất rộng
Đây là kiểu bố cục chia nhà cấp 4 có 3 phòng ngủ đầy đủ công năng và đẹp mắt, phù hợp với diện tích đất rộng

GALLERY MỚI NHẤT