Cải tạo căn hộ cũ thành không gian ngập tràn ánh sáng tự nhiên

Cải tạo căn hộ cũ thành không gian ngập tràn ánh sáng tự nhiên

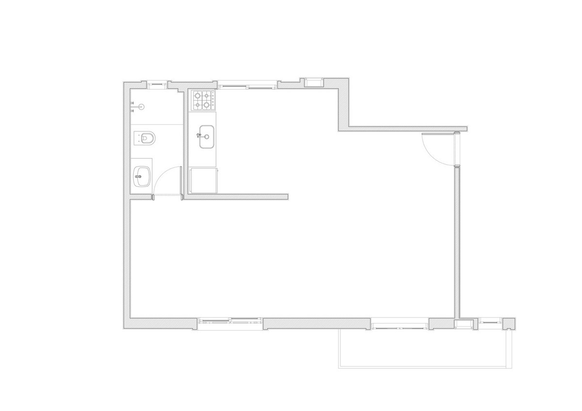
Việc cải tạo căn hộ studio cũ được thực hiện gần như không có bất kỳ sự phá dỡ nào, các khu vực sinh hoạt chung của căn hộ nhỏ như được mở rộng đầy ánh sáng tự nhiên.

Dựa trên yêu cầu của gia chủ, việc xây dựng được thực hiện gần như không có bất kỳ sự phá dỡ nào.
Dựa trên yêu cầu của gia chủ, việc xây dựng được thực hiện gần như không có bất kỳ sự phá dỡ nào.
Việc mở rộng bức tường hiện có, cho phép tạo ra một khối lượng che chắn phòng ngủ, di chuyển nó từ mặt tiền chính, quay ra phố nơi các cửa sổ hướng ra khu vườn.
Việc mở rộng bức tường hiện có, cho phép tạo ra một khối lượng che chắn phòng ngủ, di chuyển nó từ mặt tiền chính, quay ra phố nơi các cửa sổ hướng ra khu vườn.
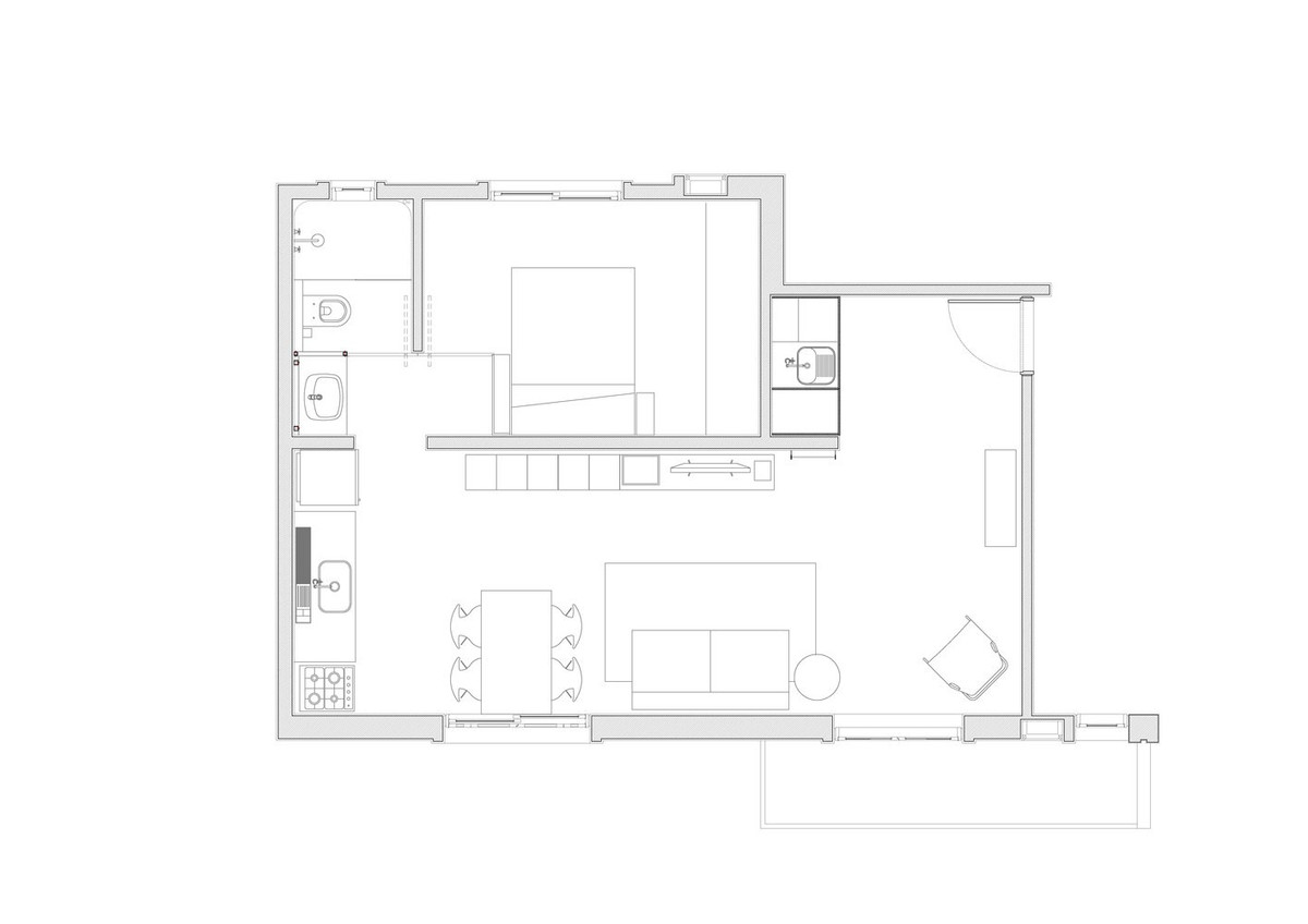
Bên cạnh việc đảm bảo phòng ngủ không bị ảnh hưởng bởi tiếng ồn của phố, các khu vực sinh hoạt như phòng khách, bếp và ban công được tích hợp với nhau.
Bên cạnh việc đảm bảo phòng ngủ không bị ảnh hưởng bởi tiếng ồn của phố, các khu vực sinh hoạt như phòng khách, bếp và ban công được tích hợp với nhau.
Việc tích hợp giúp cho các không gian đều có ánh sáng tự nhiên chiếu vào.
Việc tích hợp giúp cho các không gian đều có ánh sáng tự nhiên chiếu vào.
Ở mặt ngoài, hướng đến phòng khách, một kệ sắt kết hợp với gỗ dài 3,5 mét là nơi đặt sách và các thiết bị điện tử.
Ở mặt ngoài, hướng đến phòng khách, một kệ sắt kết hợp với gỗ dài 3,5 mét là nơi đặt sách và các thiết bị điện tử.
Khu vực vốn là nơi giặt ủi, được thay thế bằng một tủ đựng thức ăn lớn (không chỉ chứa thực phẩm và hóa chất tẩy rửa gia dụng mà còn chứa cả một máy giặt).
Khu vực vốn là nơi giặt ủi, được thay thế bằng một tủ đựng thức ăn lớn (không chỉ chứa thực phẩm và hóa chất tẩy rửa gia dụng mà còn chứa cả một máy giặt).
Phía trên phòng tắm là các bể chứa nước của toàn bộ tòa nhà.
Phía trên phòng tắm là các bể chứa nước của toàn bộ tòa nhà.
Lớp lót bên dưới bếp, phòng tắm và phòng ngủ tuân theo một mặt bằng nằm ngang có chiều cao thấp hơn, và chỉ bị gián đoạn ở khu vực phòng khách, nơi trần nhà để lộ cấu trúc gỗ.
Lớp lót bên dưới bếp, phòng tắm và phòng ngủ tuân theo một mặt bằng nằm ngang có chiều cao thấp hơn, và chỉ bị gián đoạn ở khu vực phòng khách, nơi trần nhà để lộ cấu trúc gỗ.
Nhờ cách cải tạo khoa học, các khu vực sinh hoạt chung của căn hộ như được mở rộng, thông thoáng và tràn đầy ánh sáng.
Nhờ cách cải tạo khoa học, các khu vực sinh hoạt chung của căn hộ như được mở rộng, thông thoáng và tràn đầy ánh sáng.