Nhà 3 tầng thoáng sáng với mặt tiền kim loại đục lỗ

Nhà 3 tầng thoáng sáng với mặt tiền kim loại đục lỗ

(Kiến Thức) - Chỉ có một mặt tiền hướng ra đường lớn, 3 mặt còn lại đều giáp với công trình của hàng xóm nhưng nhờ sử dụng mặt tiền đục lỗ, giếng trời, các phòng đều có cửa sổ, ngôi nhà ống 3 tầng thoáng sáng đến khó tin. 

Ngôi nhà ống 3 tầng ở Phan Thiết (Bình Thuận) thu hút sự chú ý của người qua đường khi mặt tiền bao phủ bởi tấm kim loại đục lỗ.
Ngôi nhà ống 3 tầng ở Phan Thiết (Bình Thuận) thu hút sự chú ý của người qua đường khi mặt tiền bao phủ bởi tấm kim loại đục lỗ.
Những ô vuông sắp xếp ngẫu nhiên trên tấm kim loại không chỉ cho ánh sáng tự nhiên tràn vào nhà mà còn giúp ngôi nhà 3 tầng giống như một tác phẩm nghệ thuật đương đại.
Những ô vuông sắp xếp ngẫu nhiên trên tấm kim loại không chỉ cho ánh sáng tự nhiên tràn vào nhà mà còn giúp ngôi nhà 3 tầng giống như một tác phẩm nghệ thuật đương đại.
Sân thượng được thiết kế thành khu vực thư giãn. Bức tường gạch nung gợi nhớ kiến trúc truyền thống.
Sân thượng được thiết kế thành khu vực thư giãn. Bức tường gạch nung gợi nhớ kiến trúc truyền thống.
Phòng khách đơn giản với sofa da màu đỏ. Kế đến là khu vực bàn ăn ở trong góc.
Phòng khách đơn giản với sofa da màu đỏ. Kế đến là khu vực bàn ăn ở trong góc.
Cầu thang dây cáp bố trí sát tường giúp tiết kiệm không gian.
Cầu thang dây cáp bố trí sát tường giúp tiết kiệm không gian.
Giếng trời bố trí phía trên cầu thang gỗ.
Giếng trời bố trí phía trên cầu thang gỗ.
Phòng ngủ thoáng có tầm nhìn hướng ra bên ngoài.
Phòng ngủ thoáng có tầm nhìn hướng ra bên ngoài.
3 mặt giáp với công trình xung quanh nhưng bên trong nhà vẫn cực thoáng sáng.
3 mặt giáp với công trình xung quanh nhưng bên trong nhà vẫn cực thoáng sáng.
Phòng tắm có cửa sổ lớn để lấy ánh sáng.
Phòng tắm có cửa sổ lớn để lấy ánh sáng.
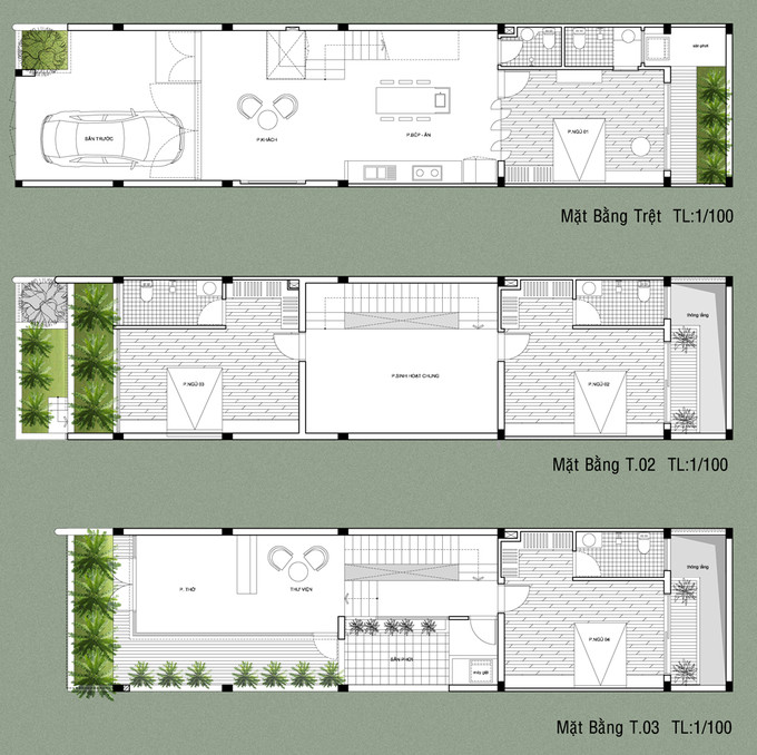
Bản vẽ thiết kế nhà ống 3 tầng. Nguồn ảnh: Toàn Nguyễn.
Bản vẽ thiết kế nhà ống 3 tầng. Nguồn ảnh: Toàn Nguyễn.
Video: Nhà ống 4 tầng đẹp hiện đại. Nguồn: Thietkenhaxinh.

GALLERY MỚI NHẤT

Cận cảnh công trình hồ điều hòa Cự Khối gần 1.000 tỷ ở Long Biên

Cận cảnh công trình hồ điều hòa Cự Khối gần 1.000 tỷ ở Long Biên

Dự án mương Việt Hưng - Cầu Bây và hồ điều hòa Cự Khối tại phường Long Biên đang được tăng tốc thi công với nhiều hạng mục đạt tiến độ tích cực. Khi hoàn thành, công trình sẽ góp phần giảm úng ngập, nâng cao năng lực tiêu thoát nước và cải thiện cảnh quan khu vực phía Đông Hà Nội.