Kiến trúc cổng vòm đặc trưng trong không gian
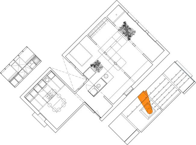
Lối đi vào trong nhà nằm ở giữa sàn, đánh dấu bởi giếng lấy sáng - chi tiết giúp chia ngôi nhà thành 2 không gian riêng biệt: Căn phòng đối diện với khu phố và không gian rộng gấp 4 lần được phân tách bởi rất nhiều bức tường khác nhau. Đây là những bức tường chịu tải cho công trình.
 |
| Kiến trúc mái vòng cùng bảng màu dịu nhẹ trong căn hộ Penthouse. Ảnh: José Hevia |
 |
| Phác thảo những bức tường chịu tải và tường ngăn với cửa vòm trong Penthouse |
Kiến trúc vòm ở mặt tiền là hình ảnh chủ đạo của cả dự án. Sự lặp lại về mặt hình học ở các bức tường chịu tải, tường ngăn tạo nên nét độc đáo và duy trì sự thống nhất.
 |
| Chi tiết mái vòm được thể hiện ở ngay phần tường mặt tiền. Ảnh: José Hevia |
 |
| Hình ảnh này được lặp lại ở các bức tường khác trong nhà. Ảnh: José Hevia |
 |
| Mái vòm đối xứng giúp không gian thêm lạ mắt và ấn tượng. Ảnh: José Hevia |
Màu sắc và gương là 2 yếu tố góp phần tạo nên sự khác biệt của căn hộ Penthouse
Các khu vực chức năng được bố trí xung quanh tường. Bộ sofa, bồn tắm, phòng ngủ, khu vực thay đồ được sắp xếp tại căn phòng trải thảm nhung màu xanh lá cây. Đây cũng là một trong những cách đánh dấu ranh giới khá thú vị.
 |
| Khu vực chức năng trong nhà được bố trí quanh tường. Ảnh: José Hevia |
 |
| Phần sàn có thảm nhung màu xanh là nơi tập trung các khu vực chức năng chính. Ảnh: José Hevia |
 |
| Đó là phòng khách, phòng ngủ và 1 số phòng chức năng khác. Ảnh: José Hevia |
 |
| Màu xanh của thảm nhung tương phản với màu trắng của nội thất và tường tạo nên hiệu ứng thị giác đẹp mắt. Ảnh: José Hevia |
 |
| Ngoài ra, kiến trúc sư cũng bố trí thêm các chậu cây xanh trong nhà. Ảnh: José Hevia |
 |
| Ngoài màu xanh, trắng thì 1 số gam màu khác cũng được lựa chọn nhưng chủ yếu là gam màu tự nhiên. Ảnh: José Hevia |
Ngoài màu sắc, kiến trúc sư sử dụng thêm 1 yếu tố tạo điểm nhấn cho căn Penthouse. Đó chính là chiếc phòng nhỏ ốp gương giúp kết nối 2 khu vực trong nhà. Không những vậy, việc bố trí nhiều gương còn giúp không gian trở nên rộng rãi hơn rất nhiều.
 |
| Căn phòng gương nhỏ đóng vai trò kết nối 2 khu vực chính trong nhà. Ảnh: José Hevia |
 |
| Phòng có gương phản chiếu giúp không gian trở nên rộng rãi hơn, tăng cường độ sáng cho Penthouse. Ảnh: José Hevia |
 |
| Phòng tắm và phòng vệ sinh cũng có cột gương dài. Ảnh: José Hevia |
 |
| Hiệu ứng phản chiếu ấn tượng trong phòng vệ sinh. Ảnh: José Hevia |
 |
| Tận dụng tác dụng phản chiếu, đội ngũ kiến trúc sư đã có 1 sự sắp đặt khá thú vị. Ảnh: José Hevia |
 |
| Đầu tiên là thiết kế 1 chiếc cửa sổ khung tròn màu vàng cam sáng. Ảnh: José Hevia |
 |
| Khi ánh sáng chiếu qua, tương phản vào gương biến khung cửa sổ tựa như mặt trời. Ảnh: José Hevia |
Căn phòng đối diện với khu phố là không gian sinh hoạt chính của ngôi nhà, điểm nhấn là chiếc bàn rộng. Mặc dù các món đồ nội thất đều được chăm chút kỹ lưỡng nhưng có 1 số khu vực, kiến trúc sư cố tình để vật liệu dạng mộc. Cách bố trí này mang đến 1 hơi thở mới cho không gian, loại bỏ sự nhàm chán.
 |
| Chiếc bàn rộng ở gần khu bếp với khoảng sàn ốp gạch bông. Ảnh: José Hevia |
 |
| Bản vẽ chi tiết công trình |