Thiết kế căn hộ cho gia đình trẻ tiện nghi mà cực tiết kiệm

Thiết kế căn hộ cho gia đình trẻ tiện nghi mà cực tiết kiệm

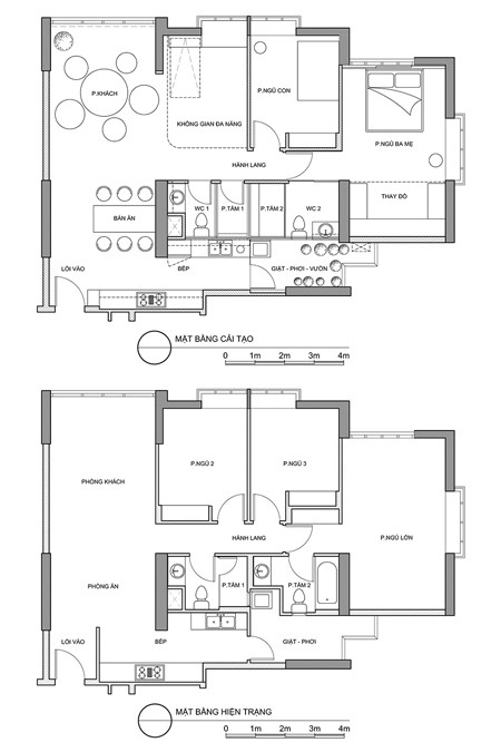
Đó là căn hộ cho gia đình trẻ 3 phòng ngủ tại huyện Nhà Bè (TP HCM), dù được cải tạo lại từ ngôi nhà cũ nhưng vẫn rất đỗi cá tính.

Với căn nhà cũ, gia chủ đã lên ý tưởng tháo dỡ trần thạch cao vốn đã cũ kỹ và có phần rối rắm, nhằm tạo ra không gian cao và thoáng đãng hơn so với “người tiền nhiệm”. Và với cách làm này, chủ nhà cũng đã tạo được sự ấn tượng cho căn hộ của mình bởi sự tương phản giữa bề mặt vật liệu bê tông trần và sàn gỗ màu xám với các vách tường cùng các món nội thất khoác áo trắng… mang lại một tổng thể đầy cảm xúc, mới lạ và cá tính.
Với căn nhà cũ, gia chủ đã lên ý tưởng tháo dỡ trần thạch cao vốn đã cũ kỹ và có phần rối rắm, nhằm tạo ra không gian cao và thoáng đãng hơn so với “người tiền nhiệm”. Và với cách làm này, chủ nhà cũng đã tạo được sự ấn tượng cho căn hộ của mình bởi sự tương phản giữa bề mặt vật liệu bê tông trần và sàn gỗ màu xám với các vách tường cùng các món nội thất khoác áo trắng… mang lại một tổng thể đầy cảm xúc, mới lạ và cá tính.
Sự tiện nghi của căn hộ cho gia đình trẻ được đẩy lên mức tối đa khi hầu hết các không gian chức năng trong nhà đều được thiết kế nội thất theo hướng mở, vừa hiện đại, phóng khoáng và cũng tràn đầy cảm xúc với điểm nhấn là chiếc bàn ăn màu đỏ.
Sự tiện nghi của căn hộ cho gia đình trẻ được đẩy lên mức tối đa khi hầu hết các không gian chức năng trong nhà đều được thiết kế nội thất theo hướng mở, vừa hiện đại, phóng khoáng và cũng tràn đầy cảm xúc với điểm nhấn là chiếc bàn ăn màu đỏ.
Thiết kế nội thất phòng khách không những rất thoáng rộng mà còn tạo view đẹp ra khung cảnh bên ngoài. Gia chủ không dùng sofa mà thay vào đó là ghế lười, tạo sự linh hoạt và rất tiện cho trẻ nhỏ.
Thiết kế nội thất phòng khách không những rất thoáng rộng mà còn tạo view đẹp ra khung cảnh bên ngoài. Gia chủ không dùng sofa mà thay vào đó là ghế lười, tạo sự linh hoạt và rất tiện cho trẻ nhỏ.
Tính linh hoạt của căn hộ cũng được thể hiện khá rõ khi phòng ngủ thứ 3 được tái thiết kế để trở thành không gian chơi đùa của trẻ, phòng sinh hoạt chung của gia đình được nối liên hoàn với phòng khách và phòng ăn.
Tính linh hoạt của căn hộ cũng được thể hiện khá rõ khi phòng ngủ thứ 3 được tái thiết kế để trở thành không gian chơi đùa của trẻ, phòng sinh hoạt chung của gia đình được nối liên hoàn với phòng khách và phòng ăn.
Ngoài ra, không gian đa năng này còn có thể sử dụng để biến hóa thành một phòng ngủ khi có khách qua đêm bởi phòng có các vật dụng nội thất rất tiện lợi với chất liệu vải mềm.
Ngoài ra, không gian đa năng này còn có thể sử dụng để biến hóa thành một phòng ngủ khi có khách qua đêm bởi phòng có các vật dụng nội thất rất tiện lợi với chất liệu vải mềm.
Bức tường trắng ở phòng đa năng đồng thời là nơi ngự trị cho máy chiếu thông dụng, giúp gia chủ có thể quây quần xem phim lúc cần. Sự linh hoạt cũng thể hiện rõ ở những vật dụng nội thất có bánh xe, dễ dàng di chuyển, sân phơi kiêm nơi để cây cảnh.
Bức tường trắng ở phòng đa năng đồng thời là nơi ngự trị cho máy chiếu thông dụng, giúp gia chủ có thể quây quần xem phim lúc cần. Sự linh hoạt cũng thể hiện rõ ở những vật dụng nội thất có bánh xe, dễ dàng di chuyển, sân phơi kiêm nơi để cây cảnh.
Các vách tường là nơi trưng bày nghệ thuật với các bộ hình phong cảnh.
Các vách tường là nơi trưng bày nghệ thuật với các bộ hình phong cảnh.
Gam màu trung tính được sử dụng cho phòng ngủ trẻ làm nền cho các vật dụng nội thất. Phòng vệ sinh đã được tái thiết kế thành phòng tắm và phòng vệ sinh riêng biệt, rất thuận tiện cho gia đình có con nhỏ.
Gam màu trung tính được sử dụng cho phòng ngủ trẻ làm nền cho các vật dụng nội thất. Phòng vệ sinh đã được tái thiết kế thành phòng tắm và phòng vệ sinh riêng biệt, rất thuận tiện cho gia đình có con nhỏ.
Cửa sổ và vách kính thay thế cho tường gạch, vừa lấy sáng thông minh, vừa tạo sự thông thoáng cho không gian.
Cửa sổ và vách kính thay thế cho tường gạch, vừa lấy sáng thông minh, vừa tạo sự thông thoáng cho không gian.
Ngăn chia phòng ngủ chính và phòng thay đồ một cách khéo léo với rèm vải voan trắng, vừa hiện đại, tinh tế và khơi gợi nhiều cảm xúc.
Ngăn chia phòng ngủ chính và phòng thay đồ một cách khéo léo với rèm vải voan trắng, vừa hiện đại, tinh tế và khơi gợi nhiều cảm xúc.
Phòng tắm có ô cửa sổ ngang, mang lại tầm nhìn ra khoảng sân vườn và tạo sự thông thoáng, tận dụng ánh sáng tự nhiên, tiết kiệm điện năng.
Phòng tắm có ô cửa sổ ngang, mang lại tầm nhìn ra khoảng sân vườn và tạo sự thông thoáng, tận dụng ánh sáng tự nhiên, tiết kiệm điện năng.
Hầu hết các vật dụng nội thất cũng mang tính kinh tế cao với chất liệu gỗ công nghiệp, những bức rèm vải tiện dụng để thay thế cho tường và cửa, hệ thống đường ống kỹ thuật cũng được tính toán để tiết kiệm chi phí nhất.
Hầu hết các vật dụng nội thất cũng mang tính kinh tế cao với chất liệu gỗ công nghiệp, những bức rèm vải tiện dụng để thay thế cho tường và cửa, hệ thống đường ống kỹ thuật cũng được tính toán để tiết kiệm chi phí nhất.

GALLERY MỚI NHẤT