Tận mục ngôi nhà quanh năm thoáng mát

Tận mục ngôi nhà quanh năm thoáng mát

Công trình là tổ hợp của nhiều phong cách, đường nét và hình khối khác nhau, chính sự bất quy tắc trong lối thiết kế đã đem lại sự đột phá trong kiến trúc và khiến trải nghiệm của người ở trở nên mới mẻ, thú vị hơn.

Trên mảnh đất có diện tích 5x22m, Cherry homestay là một công trình mang hơi thở thiên nhiên lồng ghép trong phong cách kiến trúc đương đại độc đáo. Ngôi nhà là tổ hợp của nhiều phong cách, đường nét, hình khối khác nhau.
Trên mảnh đất có diện tích 5x22m, Cherry homestay là một công trình mang hơi thở thiên nhiên lồng ghép trong phong cách kiến trúc đương đại độc đáo. Ngôi nhà là tổ hợp của nhiều phong cách, đường nét, hình khối khác nhau.
Ngay từ mặt tiền, sự phối trộn kiến trúc và văn hóa cũng đã được thể hiện rõ nét. Tổng thể mặt tiền toát lên sự mạnh mẽ và hiện đại với hình khối kiến trúc của hệ trụ chữ V bằng bê tông cốt thép, sàn bê tông nhám, vật liệu kim loại, nhưng cũng đầy mềm mại với những chi tiết truyền thống của mái ngói Hội An, hoa văn trên mặt sàn, cầu thang xoắn ốc mềm mại và những cây chuối cảnh bản địa.
Ngay từ mặt tiền, sự phối trộn kiến trúc và văn hóa cũng đã được thể hiện rõ nét. Tổng thể mặt tiền toát lên sự mạnh mẽ và hiện đại với hình khối kiến trúc của hệ trụ chữ V bằng bê tông cốt thép, sàn bê tông nhám, vật liệu kim loại, nhưng cũng đầy mềm mại với những chi tiết truyền thống của mái ngói Hội An, hoa văn trên mặt sàn, cầu thang xoắn ốc mềm mại và những cây chuối cảnh bản địa.
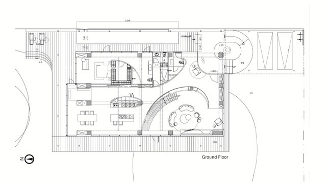
Khi vào bên trong, ngôn ngữ thiết kế vẫn giữ được sự thống nhất với "cuộc chơi" phối trộn. Trần bê tông lộ dầm cứng cáp thô nhám với tường ngói và đá xếp ngẫu hứng đi cùng sàn đá mài và nội thất gỗ có kiểu dáng truyền thống "rất Hội An.
Khi vào bên trong, ngôn ngữ thiết kế vẫn giữ được sự thống nhất với "cuộc chơi" phối trộn. Trần bê tông lộ dầm cứng cáp thô nhám với tường ngói và đá xếp ngẫu hứng đi cùng sàn đá mài và nội thất gỗ có kiểu dáng truyền thống "rất Hội An.
Chọn một khu vườn khô kiểu Nhật với đá mộc được sắp đặt có chủ ý dọc theo cầu thang đá mài xanh ngọc - kiểu cầu thang quen thuộc trong kiến trúc nhà phố cũ. Dẫn lối lên các tầng phía trên là các phòng lưu trú có đầy đủ tiện nghi khép kín.
Chọn một khu vườn khô kiểu Nhật với đá mộc được sắp đặt có chủ ý dọc theo cầu thang đá mài xanh ngọc - kiểu cầu thang quen thuộc trong kiến trúc nhà phố cũ. Dẫn lối lên các tầng phía trên là các phòng lưu trú có đầy đủ tiện nghi khép kín.
Để đảm bảo tuân thủ các quy định xây dựng của phố cổ Hội An. Các kiến trúc sư đã giảm số lượng phòng từ 9 phòng xuống còn 7 phòng, để dành một phần không gian cho việc di chuyển hấp dẫn hơn.
Để đảm bảo tuân thủ các quy định xây dựng của phố cổ Hội An. Các kiến trúc sư đã giảm số lượng phòng từ 9 phòng xuống còn 7 phòng, để dành một phần không gian cho việc di chuyển hấp dẫn hơn.
Cài cắm những phong cách thiết kế khác nhau trong thiết kế nội thất cũng là cách để biến không gian thành một tổ hợp đa văn hóa. Từ bộ bàn trà kiểu Nhật đến những vòm cửa cong cong Địa Trung Hải, từ bồn ngâm lộ ra ngoài đến những mảnh ngói cũ dán tường,...mọi sự sắp đặt vừa mang tính ngẫu hứng vừa là sự cố ý cài cắm.
Cài cắm những phong cách thiết kế khác nhau trong thiết kế nội thất cũng là cách để biến không gian thành một tổ hợp đa văn hóa. Từ bộ bàn trà kiểu Nhật đến những vòm cửa cong cong Địa Trung Hải, từ bồn ngâm lộ ra ngoài đến những mảnh ngói cũ dán tường,...mọi sự sắp đặt vừa mang tính ngẫu hứng vừa là sự cố ý cài cắm.
Vẫn là triết lý xanh bền vững với không gian mở tối ưu ánh sáng tự nhiên, tạo nguồn không khí lưu thông giúp điều hoà không gian sống, một khoảng không gian được kiến trúc sử dụng cho hồ bơi, thay vì bố trí ở tầng 1 gây mất riêng tư và chật hẹp đã được đưa lên tầng 2, nơi có thể phóng tầm mắt ra xa và mang tính riêng tư cao hơn.
Vẫn là triết lý xanh bền vững với không gian mở tối ưu ánh sáng tự nhiên, tạo nguồn không khí lưu thông giúp điều hoà không gian sống, một khoảng không gian được kiến trúc sử dụng cho hồ bơi, thay vì bố trí ở tầng 1 gây mất riêng tư và chật hẹp đã được đưa lên tầng 2, nơi có thể phóng tầm mắt ra xa và mang tính riêng tư cao hơn.
Bên ngoài mang dáng dấp của một công trình kiến trúc hiện đại nhưng đi sâu vào bên trong lại là một câu chuyện về kiến trúc truyền thống, về những nét nhà xưa. Một nét kiến trúc truyền thống đặt giữa lòng một kiến trúc hiện đại; một kết cấu kèo gỗ, mái ngói nằm trong một hệ kết cấu cốt thép bê tông. Dù là hiện đại hay truyền thống, dù là những điều cũ xưa hay mới mẻ, cả hai đều mang những giá trị riêng, nét đẹp riêng, đều cần được gìn giữ và phát huy, và rõ ràng nhóm thiết kế đã làm trọn vẹn điều đó.
Bên ngoài mang dáng dấp của một công trình kiến trúc hiện đại nhưng đi sâu vào bên trong lại là một câu chuyện về kiến trúc truyền thống, về những nét nhà xưa. Một nét kiến trúc truyền thống đặt giữa lòng một kiến trúc hiện đại; một kết cấu kèo gỗ, mái ngói nằm trong một hệ kết cấu cốt thép bê tông. Dù là hiện đại hay truyền thống, dù là những điều cũ xưa hay mới mẻ, cả hai đều mang những giá trị riêng, nét đẹp riêng, đều cần được gìn giữ và phát huy, và rõ ràng nhóm thiết kế đã làm trọn vẹn điều đó.