Ngôi nhà mái nghiêng, có kiến trúc độc lạ chưa từng thấy

Ngôi nhà mái nghiêng, có kiến trúc độc lạ chưa từng thấy

Ngôi nhà có kiến trúc đặc biêt với mái nghiêng lạ mắt cùng kết cấu độc lạ chưa từng thấy làm hài lòng bất kỳ ai khi bước vào.

Ngôi nhà có thiết kế lạ với phần mái nghiêng lạ mắt dốc ngược ra phía sau nhưng khi nhìn vào kết cấu bên trong khiến nhiều người bất ngờ.
Ngôi nhà có thiết kế lạ với phần mái nghiêng lạ mắt dốc ngược ra phía sau nhưng khi nhìn vào kết cấu bên trong khiến nhiều người bất ngờ.
Đây là ngôi nhà có thiết kế đặc biệt với mái nghiêng ngược và thu hẹp dần vào cuối.
Đây là ngôi nhà có thiết kế đặc biệt với mái nghiêng ngược và thu hẹp dần vào cuối.
Lấy ý tưởng từ những nông trại ở Iran, đây thực sự là ngôi nhà đáng sống.
Lấy ý tưởng từ những nông trại ở Iran, đây thực sự là ngôi nhà đáng sống.
Không gian bên trong ngôi nhà được thiết kế theo phong cách hiện đại, bố trí khoa học và rất tiện lợi.
Không gian bên trong ngôi nhà được thiết kế theo phong cách hiện đại, bố trí khoa học và rất tiện lợi.
Không gian trắng sáng, thông thoáng và tràn ngập ánh sáng tự nhiên từ bên ngoài.
Không gian trắng sáng, thông thoáng và tràn ngập ánh sáng tự nhiên từ bên ngoài.
Những căn phòng khác nhau được thiết kế hiện đại và rất sang trọng ví như phòng tắm này.
Những căn phòng khác nhau được thiết kế hiện đại và rất sang trọng ví như phòng tắm này.
Đuôi phía sau ngôi nhà được thu gọn dần bằng bức tường gạch thông gió.
Đuôi phía sau ngôi nhà được thu gọn dần bằng bức tường gạch thông gió.
Một lối đi nhỏ vào ngôi nhà từ phía sau đã được tạo ra rất độc đáo.
Một lối đi nhỏ vào ngôi nhà từ phía sau đã được tạo ra rất độc đáo.
Toàn cảnh ngôi nhà nhìn từ phía sau.
Toàn cảnh ngôi nhà nhìn từ phía sau.
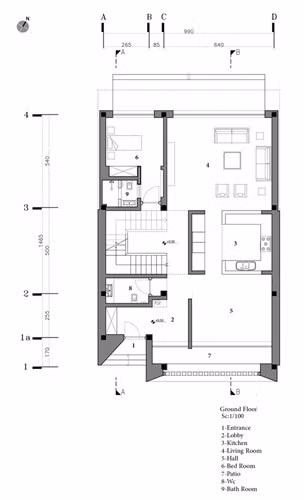
Ngôi nhà nhìn qua bản thiết kế tổng thể.
Ngôi nhà nhìn qua bản thiết kế tổng thể.

GALLERY MỚI NHẤT

Hàng nghìn người hưởng ứng “Hành động Xanh - Chọn tương lai Xanh”

Hàng nghìn người hưởng ứng “Hành động Xanh - Chọn tương lai Xanh”

Sáng 4/4, hàng nghìn người dân và thanh niên trên khắp cả nước cùng tham gia hoạt động dọn dẹp vệ sinh khu phố và thu gom đồ dùng cũ, hưởng ứng lời kêu gọi “Hành động Xanh - Chọn tương lai Xanh” do Quỹ Vì Tương lai xanh do Tập đoàn Vingroup phát động. Đây là một trong những hoạt động tiêu biểu mở màn cho chuỗi chiến dịch “Thứ 4 Ngày Xanh” được Quỹ triển khai xuyên suốt năm 2026 với thông điệp “Hành động Xanh - Chọn tương lai Xanh”.