Độc đáo nhà 50 m² ở TP.HCM có sân và ban công trong nhà

Độc đáo nhà 50 m² ở TP.HCM có sân và ban công trong nhà

Sân và ban công trong nhà Bi & Sam kết nối gần gũi với thiên nhiên tạo nên không gian vui chơi an toàn cho các thành viên.

Công trình Bi & Sam house có diện tích 50 m² được thiết kế bởi kiến trúc sư T H I A architecture.
Công trình Bi & Sam house có diện tích 50 m² được thiết kế bởi kiến trúc sư T H I A architecture.
 Ngôi nhà tọa lạc ở quận 12, TP.HCM sở hữu mặt tiền với cửa sổ lớn giúp không gian trong nhà luôn tràn ngập ánh sáng và thông gió nhưng đảm bảo sự riêng tư cho gia chủ.
Ngôi nhà tọa lạc ở quận 12, TP.HCM sở hữu mặt tiền với cửa sổ lớn giúp không gian trong nhà luôn tràn ngập ánh sáng và thông gió nhưng đảm bảo sự riêng tư cho gia chủ.
Trong ngôi nhà này, chủ nhà muốn dành thời gian chơi và chăm sóc hai đứa con của mình, Bi (5 tuổi) và Sam (3 tuổi).
Trong ngôi nhà này, chủ nhà muốn dành thời gian chơi và chăm sóc hai đứa con của mình, Bi (5 tuổi) và Sam (3 tuổi).
Theo đó, ở mỗi tầng của ngôi nhà, kiến trúc sư đã tạo ra các không gian để kích thích sự khám phá và sáng tạo của trẻ em và giúp cha mẹ có thể quan sát con cái trong nhà.
Theo đó, ở mỗi tầng của ngôi nhà, kiến trúc sư đã tạo ra các không gian để kích thích sự khám phá và sáng tạo của trẻ em và giúp cha mẹ có thể quan sát con cái trong nhà.
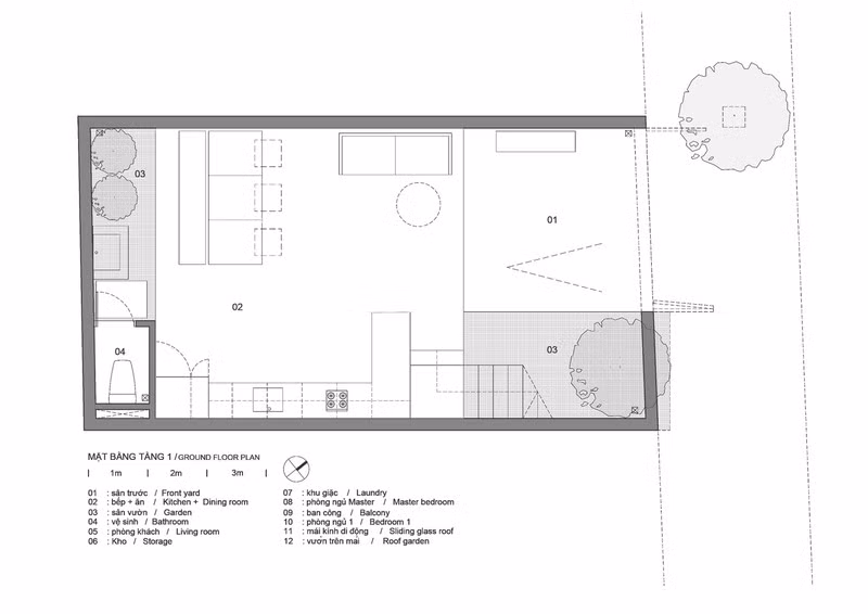
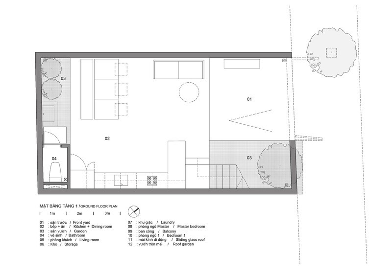
Tầng một là khoảng không gian của nhà bếp và phòng ăn, sân trước, sân sau và các không gian phụ khác.
Tầng một là khoảng không gian của nhà bếp và phòng ăn, sân trước, sân sau và các không gian phụ khác.
Cầu thang được bố trí phía trước nhà.
Cầu thang được bố trí phía trước nhà.
Vị trí cầu thang của ngôi nhà liên tục thay đổi, nằm ở giữa tâm nhĩ với sự xuất hiện của cây xanh, ánh sáng nhằm kích thích các hoạt động và quan sát chiều dọc của ngôi nhà.
Vị trí cầu thang của ngôi nhà liên tục thay đổi, nằm ở giữa tâm nhĩ với sự xuất hiện của cây xanh, ánh sáng nhằm kích thích các hoạt động và quan sát chiều dọc của ngôi nhà.
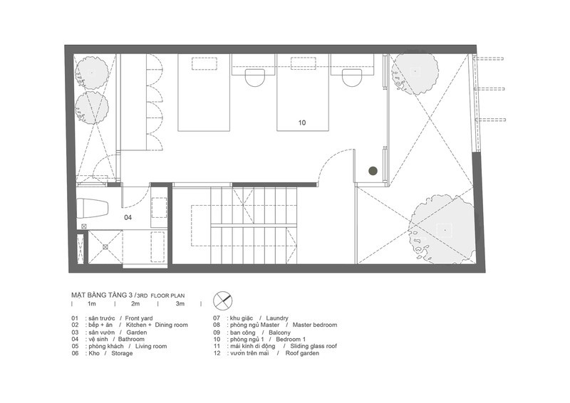
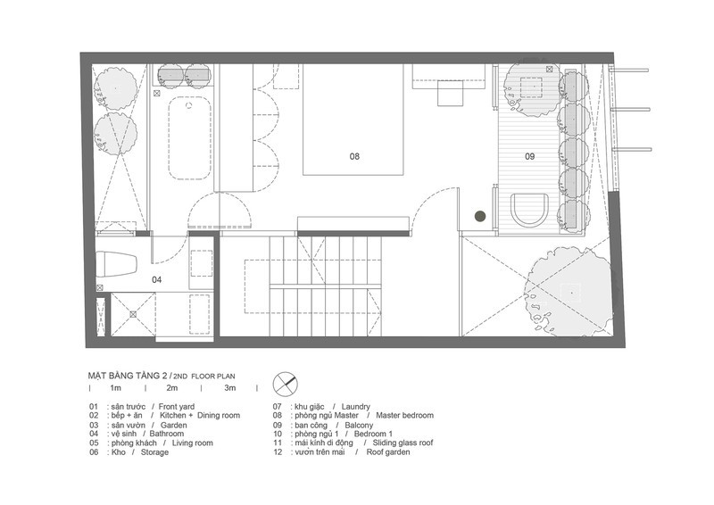
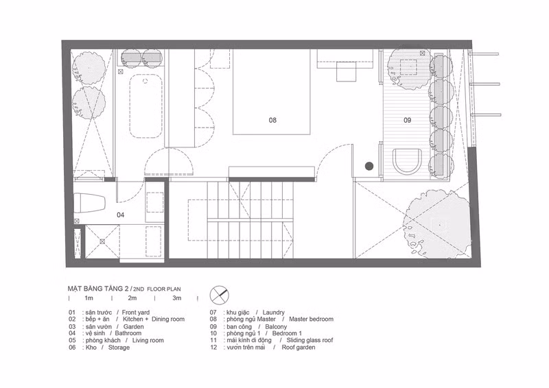
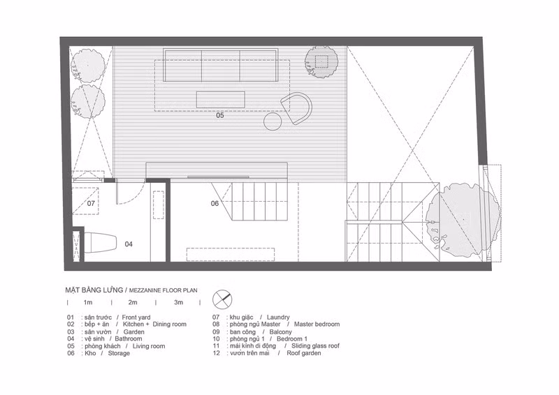
Tầng lửng là không gian của phòng khách.
Tầng lửng là không gian của phòng khách.
Nội thất tối giản tích hợp các chức năng với màu trắng và gỗ làm màu chủ đạo để tạo nền cho ánh sáng, cây cối.
Nội thất tối giản tích hợp các chức năng với màu trắng và gỗ làm màu chủ đạo để tạo nền cho ánh sáng, cây cối.
Điều đặc biệt của ngôi nhà là kiến trúc sư đưa sân và ban công vào bên trong ngôi nhà Bi & Sam.
Điều đặc biệt của ngôi nhà là kiến trúc sư đưa sân và ban công vào bên trong ngôi nhà Bi & Sam.
Theo đó, hai người con có thể chơi, khám phá và quan sát các yếu tố tự nhiên (cây cối, bầu trời, gió, mưa) và các hoạt động từ hẻm nhưng vẫn được bảo vệ an toàn.
Theo đó, hai người con có thể chơi, khám phá và quan sát các yếu tố tự nhiên (cây cối, bầu trời, gió, mưa) và các hoạt động từ hẻm nhưng vẫn được bảo vệ an toàn.
Sân hoặc ban công được gắn vào các khu vực chức năng như nhà bếp và phòng ngủ, nơi cha mẹ có thể vừa nấu ăn vừa quan sát con cái.
Sân hoặc ban công được gắn vào các khu vực chức năng như nhà bếp và phòng ngủ, nơi cha mẹ có thể vừa nấu ăn vừa quan sát con cái.
Phòng ngủ tràn ngập ánh sáng và gió.
Phòng ngủ tràn ngập ánh sáng và gió.
Cây xanh ở mọi ngóc ngách trong nhà giúp kết nối thiên nhiên với không gian sống và không gian riêng tư của các thành viên.
Cây xanh ở mọi ngóc ngách trong nhà giúp kết nối thiên nhiên với không gian sống và không gian riêng tư của các thành viên.

GALLERY MỚI NHẤT

Cận cảnh công trình hồ điều hòa Cự Khối gần 1.000 tỷ ở Long Biên

Cận cảnh công trình hồ điều hòa Cự Khối gần 1.000 tỷ ở Long Biên

Dự án mương Việt Hưng - Cầu Bây và hồ điều hòa Cự Khối tại phường Long Biên đang được tăng tốc thi công với nhiều hạng mục đạt tiến độ tích cực. Khi hoàn thành, công trình sẽ góp phần giảm úng ngập, nâng cao năng lực tiêu thoát nước và cải thiện cảnh quan khu vực phía Đông Hà Nội.