Căn hộ 18m2 nhưng đầy đủ tiện nghi và gác xép lơ lửng “kịch độc”

Căn hộ 18m2 nhưng đầy đủ tiện nghi và gác xép lơ lửng “kịch độc”

(Kiến Thức) - Mặc dù chỉ rộng vỏn vẹn 18m2 nhưng căn hộ này lại đầy đủ phòng ngủ, phòng tắm, nhà bếp, khu vực ăn uống, phòng khách  và làm việc. Điểm nhấn đặc biệt chính là gác xép treo lơ lửng trên trần nhà rất độc đáo.

Công ty kiến trúc Standard Studio vừa thiết kế và hoàn thành xong khu nhà ở sinh viên có tên Hermes City Plaza ở thành phố Rotterdam (Hà Lan).
Công ty kiến trúc Standard Studio vừa thiết kế và hoàn thành xong khu nhà ở sinh viên có tên Hermes City Plaza ở thành phố Rotterdam (Hà Lan).
Khu nhà ở được cải tạo từ một tòa nhà văn phòng cũ. Thách thức đặt ra cho các kiến trúc sư của hãng Standard Studio là làm sao có thể “biến” một không gian chỉ rộng 18m2 thành một căn hộ hoàn chỉnh, đầy đủ cho các sinh viên.
Khu nhà ở được cải tạo từ một tòa nhà văn phòng cũ. Thách thức đặt ra cho các kiến trúc sư của hãng Standard Studio là làm sao có thể “biến” một không gian chỉ rộng 18m2 thành một căn hộ hoàn chỉnh, đầy đủ cho các sinh viên.
Vì vậy, yêu cầu đặt ra với căn hộ là phải được trang bị đầy đủ nhà vệ sinh với vòi hoa sen, bàn trang điểm, nhà bếp, các đồ dùng nội thất như bàn ăn, bàn, ghế sofa, giường và không gian để lưu trữ.
Vì vậy, yêu cầu đặt ra với căn hộ là phải được trang bị đầy đủ nhà vệ sinh với vòi hoa sen, bàn trang điểm, nhà bếp, các đồ dùng nội thất như bàn ăn, bàn, ghế sofa, giường và không gian để lưu trữ.
Chính vì vậy, các kiến trúc sư đã tận dụng mọi ngóc ngách của không gian cũng như tối đa hóa chiều cao của căn hộ.
Chính vì vậy, các kiến trúc sư đã tận dụng mọi ngóc ngách của không gian cũng như tối đa hóa chiều cao của căn hộ.
Những ô cửa sổ lớn giúp đem lại ánh sáng cho toàn bộ căn hộ.
Những ô cửa sổ lớn giúp đem lại ánh sáng cho toàn bộ căn hộ.
Nhà vệ sinh nằm gọn gàng phía cuối căn hộ, sau khu vực bếp.
Nhà vệ sinh nằm gọn gàng phía cuối căn hộ, sau khu vực bếp.
Cầu thang lên gác xép được tích hợp với những ô tủ để đồ thông minh.
Cầu thang lên gác xép được tích hợp với những ô tủ để đồ thông minh.
Nhìn tổng thể căn hộ được bài trí, sắp xếp rất gọn gàng, khoa học.
Nhìn tổng thể căn hộ được bài trí, sắp xếp rất gọn gàng, khoa học.
Những chậu cây nhỏ xinh đem lại mảng xanh cho căn hộ nhỏ.
Những chậu cây nhỏ xinh đem lại mảng xanh cho căn hộ nhỏ.
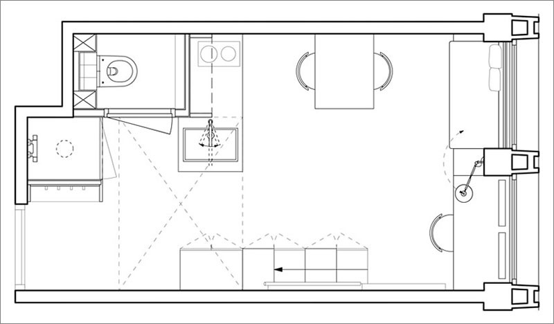
Hình ảnh bản vẽ thiết kế của căn hộ do Standard Studio thiết kế. Ảnh: Contemporist.
Hình ảnh bản vẽ thiết kế của căn hộ do Standard Studio thiết kế. Ảnh: Contemporist.

GALLERY MỚI NHẤT

c

c

Xiaomi xác nhận đã sửa lỗi cuộc gọi nghiêm trọng trên POCO F8 Pro bằng bản cập nhật HyperOS mới, khôi phục chất lượng âm thanh ổn định cho người dùng.