Nhà ống trong ngõ nhỏ ở Thụy Khuê, Hà Nội mà đẹp như biệt thự sân vườn

Nhà ống trong ngõ nhỏ ở Thụy Khuê, Hà Nội mà đẹp như biệt thự sân vườn

Căn nhà mới được tạp chí kiến trúc uy tín thế giới ArchDaily khen ngợi vì thiết kế thông minh, hiện đại.

Căn nhà này nằm ở Thụy Khuê, một khu dân cư đông đúc giữa thủ đô Hà Nội.
Căn nhà này nằm ở Thụy Khuê, một khu dân cư đông đúc giữa thủ đô Hà Nội.
Đặc trưng của những khu vực như thế này là mật độ nhà ở dày đặc, lối vào là những con ngõ nhỏ, dài và hẹp.
Đặc trưng của những khu vực như thế này là mật độ nhà ở dày đặc, lối vào là những con ngõ nhỏ, dài và hẹp.
Chính vì thế, không gian sống ở đây thường thiếu hụt ánh sáng tự nhiên và các mảng xanh.
Chính vì thế, không gian sống ở đây thường thiếu hụt ánh sáng tự nhiên và các mảng xanh.
Một điều đặc biệt nữa là, căn nhà tọa lạc trên một mảnh đất vô định hình, không hề có mặt tiền, bị bao quanh bởi các ngôi nhà cao 4-5 tầng và chỉ có thể vào nhà thông qua một lối đi rất hẹp.
Một điều đặc biệt nữa là, căn nhà tọa lạc trên một mảnh đất vô định hình, không hề có mặt tiền, bị bao quanh bởi các ngôi nhà cao 4-5 tầng và chỉ có thể vào nhà thông qua một lối đi rất hẹp.
Bài toán đặt ra cho các kiến trúc sư là phải khắc phục được tất cả các khuyết điểm của mảnh đất, tạo ra một không gian sống nhiều ánh sáng, thoáng đãng, có cây xanh.
Bài toán đặt ra cho các kiến trúc sư là phải khắc phục được tất cả các khuyết điểm của mảnh đất, tạo ra một không gian sống nhiều ánh sáng, thoáng đãng, có cây xanh.
Đội ngũ kiến trúc sư thực sự đã phải làm việc khá vất vả mới có thể tạo ra được một ngôi nhà ưng ý và thỏa mãn yêu cầu của gia chủ.
Đội ngũ kiến trúc sư thực sự đã phải làm việc khá vất vả mới có thể tạo ra được một ngôi nhà ưng ý và thỏa mãn yêu cầu của gia chủ.
Giải pháp đưa ra đó là bố trí một khoảng sân kết hợp giếng trời ở trung tâm của công trình.
Giải pháp đưa ra đó là bố trí một khoảng sân kết hợp giếng trời ở trung tâm của công trình.
Khoảng sân này sẽ đóng vai trò như “không gian thở” cho căn nhà, giúp thông gió và ánh sáng, giúp con người gần gũi với thiên nhiên.
Khoảng sân này sẽ đóng vai trò như “không gian thở” cho căn nhà, giúp thông gió và ánh sáng, giúp con người gần gũi với thiên nhiên.
Giếng trời được chia thành 2 phần, 1 phần bên trong và 1 bên ngoài ngôi nhà.
Giếng trời được chia thành 2 phần, 1 phần bên trong và 1 bên ngoài ngôi nhà.
Phần giếng trời bên trong đồng thời là khoảng thông tầng, giúp các thành viên trong gia đình dễ dàng giao tiếp với nhau.
Phần giếng trời bên trong đồng thời là khoảng thông tầng, giúp các thành viên trong gia đình dễ dàng giao tiếp với nhau.
Đây là một cải tiến giúp xóa nhòa sự tách biệt giữa các tầng, đồng thời giảm thiểu những nhược điểm của mô hình nhà ống.
Đây là một cải tiến giúp xóa nhòa sự tách biệt giữa các tầng, đồng thời giảm thiểu những nhược điểm của mô hình nhà ống.
Khoảng thông tầng xuyên suốt 3 tầng nhà.
Khoảng thông tầng xuyên suốt 3 tầng nhà.
Từ lối đi nhỏ hẹp, bước qua cánh cửa, một thế giới hoàn toàn khác mở ra, thoáng đãng và yên bình, đối lập hẳn với sự xô bồ và bụi bặm bên ngoài.
Từ lối đi nhỏ hẹp, bước qua cánh cửa, một thế giới hoàn toàn khác mở ra, thoáng đãng và yên bình, đối lập hẳn với sự xô bồ và bụi bặm bên ngoài.
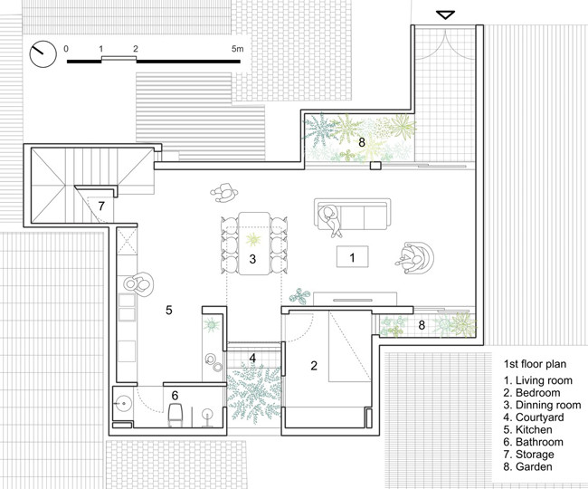
Tầng 1 được bố trí phòng khách, bếp và phòng ăn thông nhau cùng một không gian nhỏ để trồng cây xanh.
Tầng 1 được bố trí phòng khách, bếp và phòng ăn thông nhau cùng một không gian nhỏ để trồng cây xanh.
Không gian sinh hoạt chung luôn ngập tràn ánh sáng tự nhiên và màu xanh cây lá.
Không gian sinh hoạt chung luôn ngập tràn ánh sáng tự nhiên và màu xanh cây lá.
Phòng khách nằm ngay cạnh khoảng sân nhỏ.
Phòng khách nằm ngay cạnh khoảng sân nhỏ.
Các tầng trên là nơi nghỉ ngơi của cả gia đình.
Các tầng trên là nơi nghỉ ngơi của cả gia đình.
Khu vực giếng trời và khoảng sân mang đến tầm nhìn thoáng đãng hơn cho tất cả các phòng ngủ.
Khu vực giếng trời và khoảng sân mang đến tầm nhìn thoáng đãng hơn cho tất cả các phòng ngủ.
Một góc thư giãn, đọc sách lý tưởng
Một góc thư giãn, đọc sách lý tưởng
Thiết kế nội thất theo phong cách tối giản, chủ yếu sử dụng các tông màu sáng để tạo cảm giác rộng rãi hơn cho không gian.
Thiết kế nội thất theo phong cách tối giản, chủ yếu sử dụng các tông màu sáng để tạo cảm giác rộng rãi hơn cho không gian.
Khu vực sân thượng được trồng rau xanh mướt
Khu vực sân thượng được trồng rau xanh mướt
Bản vẽ sơ đồ tầng 1
Bản vẽ sơ đồ tầng 1
Bản vẽ sơ đồ tầng 2
Bản vẽ sơ đồ tầng 2
Bản vẽ sơ đồ tầng 3
Bản vẽ sơ đồ tầng 3
Từ bất cứ đâu trong nhà, các thành viên đều có thể ngắm nhìn những khoảng xanh.
Từ bất cứ đâu trong nhà, các thành viên đều có thể ngắm nhìn những khoảng xanh.
Mặt cắt đứng căn nhà
Mặt cắt đứng căn nhà

GALLERY MỚI NHẤT