Nhà nhỏ ở nông thôn gây ấn tượng vì quá tiện nghi

Nhà nhỏ ở nông thôn gây ấn tượng vì quá tiện nghi

Đây là căn nhà nhỏ do chính các con của đôi vợ chồng xây dựng để họ nghỉ dưỡng lúc về già.

Nature Powered, ngôi nhà thuộc sở hữu của cặp vợ chồng mới về hưu Jenson và DeLeeuw, được con cái của họ xây dựng làm nơi nghỉ dưỡng khi về già tại một vùng quê thuộc Massachusetts (Hoa Kỳ).
Nature Powered, ngôi nhà thuộc sở hữu của cặp vợ chồng mới về hưu Jenson và DeLeeuw, được con cái của họ xây dựng làm nơi nghỉ dưỡng khi về già tại một vùng quê thuộc Massachusetts (Hoa Kỳ).
Ngôi nhà có thể tự cung cấp năng lượng để sử dụng thông qua các hệ thống năng lượng tái tạo với pin mặt trời và tích hợp các nguyên tắc thiết kế thụ động.
Ngôi nhà có thể tự cung cấp năng lượng để sử dụng thông qua các hệ thống năng lượng tái tạo với pin mặt trời và tích hợp các nguyên tắc thiết kế thụ động.
Căn nhà nhỏ nằm ở bìa rừng nhưng đầy đủ tiện nghi hiện đại.
Căn nhà nhỏ nằm ở bìa rừng nhưng đầy đủ tiện nghi hiện đại.
Các cửa sổ mở rộng hướng về phía nam giúp không gian sống nhận được ánh sáng tự nhiên và mang lại hơi ấm vào mùa đông lạnh giá.
Các cửa sổ mở rộng hướng về phía nam giúp không gian sống nhận được ánh sáng tự nhiên và mang lại hơi ấm vào mùa đông lạnh giá.
Mái hiên rộng che bớt ánh nắng gay gắt vào mùa hè.
Mái hiên rộng che bớt ánh nắng gay gắt vào mùa hè.
Mặt bằng sàn mở và trần nhà cao mang lại sự thông thoáng tự nhiên.
Mặt bằng sàn mở và trần nhà cao mang lại sự thông thoáng tự nhiên.
Vào mùa đông, cửa sổ ba lớp, tường cách nhiệt và vật liệu có độ thấm thấp giúp tối ưu hóa sự ấm áp bên trong ngôi nhà.
Vào mùa đông, cửa sổ ba lớp, tường cách nhiệt và vật liệu có độ thấm thấp giúp tối ưu hóa sự ấm áp bên trong ngôi nhà.
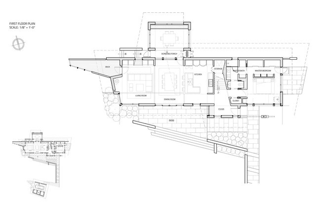
Sơ đồ thiết kế tầng 1 của ngôi nhà.
Sơ đồ thiết kế tầng 1 của ngôi nhà.
Lối vào nhẹ nhàng sáng sủa.
Lối vào nhẹ nhàng sáng sủa.
Không gian thiết kế hiện đại, toàn bộ thiết bị điện đều sử dụng năng lượng mặt trời.
Không gian thiết kế hiện đại, toàn bộ thiết bị điện đều sử dụng năng lượng mặt trời.
Khu vực phòng khách liền kề với phòng ăn và khu vực bếp, sở hữu thiết kế nhẹ nhàng đầm ấm.
Khu vực phòng khách liền kề với phòng ăn và khu vực bếp, sở hữu thiết kế nhẹ nhàng đầm ấm.
Tường được sử dụng làm kệ trang trí và giá sách.
Tường được sử dụng làm kệ trang trí và giá sách.
Khu vực phòng bếp sử dụng các vật liệu địa phương, đơn giản nhưng vẫn đầy đủ tiện nghi.
Khu vực phòng bếp sử dụng các vật liệu địa phương, đơn giản nhưng vẫn đầy đủ tiện nghi.
Bàn ăn có tầm nhìn hướng ra nhà kho bên ngoài cùng cánh rừng rộng lớn.
Bàn ăn có tầm nhìn hướng ra nhà kho bên ngoài cùng cánh rừng rộng lớn.
Khu vực bếp rộng và đầy đủ tiện nghi.
Khu vực bếp rộng và đầy đủ tiện nghi.
Ngôi nhà còn có một phòng nhỏ nhô ra phía bên ngoài để tổ chức các bữa tiệc lớn hơn.
Ngôi nhà còn có một phòng nhỏ nhô ra phía bên ngoài để tổ chức các bữa tiệc lớn hơn.
Phòng ngủ tràn ngập ánh sáng bên trong ngôi nhà.
Phòng ngủ tràn ngập ánh sáng bên trong ngôi nhà.

GALLERY MỚI NHẤT

Diễn viên Thương Tín qua đời ở tuổi 69

Diễn viên Thương Tín qua đời ở tuổi 69

Diễn viên Thương Tín qua đời vào ngày 8/12 tại nhà riêng ở Khánh Hòa. Ông ra đi ở tuổi 69. Ông để lại dấu ấn sâu đậm qua hàng trăm vai diễn trong lịch sử điện ảnh Việt Nam.