Nhà "mỏng như tờ giấy” ở Hà Nội khiến báo ngoại ngỡ ngàng

Nhà "mỏng như tờ giấy” ở Hà Nội khiến báo ngoại ngỡ ngàng

Căn nhà “mỏng như tờ giấy” ở Hà Nội khiến trang báo ngoại bất ngờ vì không gian sống rộng rãi không tưởng.

Tọa lạc tại Thạch Thất, Hà Nội, căn nhà siêu mỏng được xây trên phần góc xéo cắt ra từ một mảnh đất lớn, hình dạng méo mó và chật chội.
Tọa lạc tại Thạch Thất, Hà Nội, căn nhà siêu mỏng được xây trên phần góc xéo cắt ra từ một mảnh đất lớn, hình dạng méo mó và chật chội.
Ở khu vực ngoại thành, người ta thường xây nhà trên những mảnh đất rộng, vuông vắn nên những miếng đất xấu như thế này ít khi được sử dụng để dựng nhà.
Ở khu vực ngoại thành, người ta thường xây nhà trên những mảnh đất rộng, vuông vắn nên những miếng đất xấu như thế này ít khi được sử dụng để dựng nhà.
Mảnh đất gần như bị bỏ hoang cho tới khi một thanh niên mua lại nó với giá rẻ.
Mảnh đất gần như bị bỏ hoang cho tới khi một thanh niên mua lại nó với giá rẻ.
Khu vực này nằm quá xa trung tâm, trong khi các thợ xây ở địa phương thường gặp khó khăn trong việc đọc bản vẽ kiến trúc, vậy nên mọi thứ đều phải thật tối giản.
Khu vực này nằm quá xa trung tâm, trong khi các thợ xây ở địa phương thường gặp khó khăn trong việc đọc bản vẽ kiến trúc, vậy nên mọi thứ đều phải thật tối giản.
Phần tường nhà phía trước được làm bằng gạch thông gió để tạo khoảng trống tại những góc nghiêng và hẹp nhất, trồng cây vào những khe hổng đó để tạo sự riêng tư cho gia chủ.
Phần tường nhà phía trước được làm bằng gạch thông gió để tạo khoảng trống tại những góc nghiêng và hẹp nhất, trồng cây vào những khe hổng đó để tạo sự riêng tư cho gia chủ.
Khoảng hở này giúp tách biệt không gian sống với mặt đường lớn bên ngoài...
Khoảng hở này giúp tách biệt không gian sống với mặt đường lớn bên ngoài...
...vừa lọc khói bụi, tiếng ồn, vừa thông gió và cung cấp ánh sáng tự nhiên cho không gian sống.
...vừa lọc khói bụi, tiếng ồn, vừa thông gió và cung cấp ánh sáng tự nhiên cho không gian sống.
Phòng khách hiện đại với bộ sofa màu ghi sáng và thảm trải sàn màu da bò.
Phòng khách hiện đại với bộ sofa màu ghi sáng và thảm trải sàn màu da bò.
Ngay liền kề phòng khách là bếp và phòng ăn.
Ngay liền kề phòng khách là bếp và phòng ăn.
Sát bếp là giếng trời giúp làm bay bớt mùi khi nấu nướng và đem ánh sáng tự nhiên vào căn phòng.
Sát bếp là giếng trời giúp làm bay bớt mùi khi nấu nướng và đem ánh sáng tự nhiên vào căn phòng.
Bàn ăn mặt bằng kính với những chiếc ghế “cọc cạch” thể hiện cá tính của gia chủ.
Bàn ăn mặt bằng kính với những chiếc ghế “cọc cạch” thể hiện cá tính của gia chủ.
Góc đặt tivi và tủ ly được sơn màu vàng tạo điểm nhấn và phân tách không gian giúp tạo cảm giác rộng hơn.
Góc đặt tivi và tủ ly được sơn màu vàng tạo điểm nhấn và phân tách không gian giúp tạo cảm giác rộng hơn.
Nội thất tối giản để phòng khách không bị quá ngột ngạt và chật chội.
Nội thất tối giản để phòng khách không bị quá ngột ngạt và chật chội.
Tủ quần áo trong phòng ngủ được thiết kế đặc biệt để kê vừa góc xéo của căn nhà.
Tủ quần áo trong phòng ngủ được thiết kế đặc biệt để kê vừa góc xéo của căn nhà.
Góc đọc sách lý tưởng.
Góc đọc sách lý tưởng.
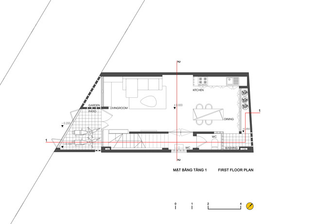
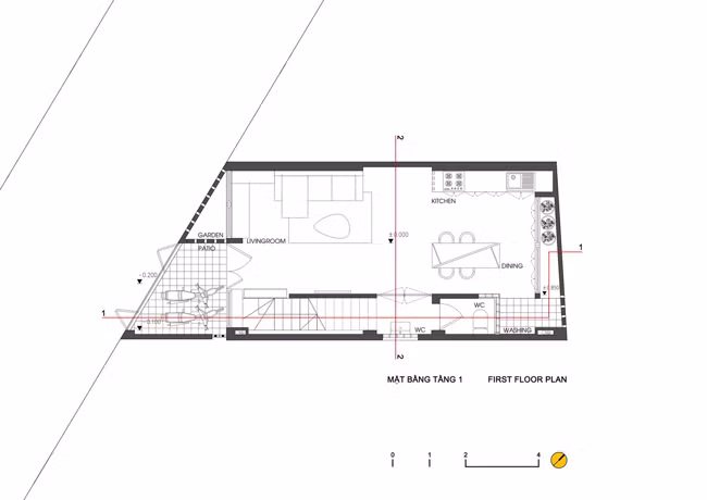
Bản vẽ mặt bằng tầng 1.
Bản vẽ mặt bằng tầng 1.
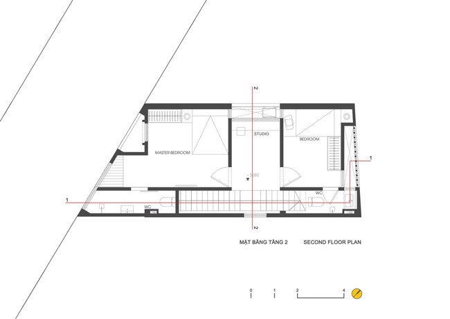
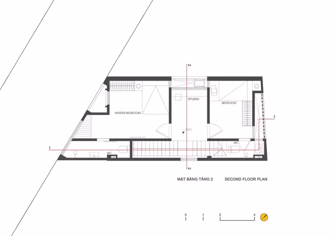
Bản vẽ mặt bằng tầng 2. Ngôi nhà được tạp chí kiến trúc ArchDaily đánh giá cao bởi thiết kế không gian sống thoải mái, rộng rãi trên một mảnh đất “khó”.
Bản vẽ mặt bằng tầng 2. Ngôi nhà được tạp chí kiến trúc ArchDaily đánh giá cao bởi thiết kế không gian sống thoải mái, rộng rãi trên một mảnh đất “khó”.

GALLERY MỚI NHẤT

5 lý do chọn Galaxy S25 thay vì S26

5 lý do chọn Galaxy S25 thay vì S26

Galaxy S25 đang có mức giá tối ưu, tiết kiệm tới 5,6 triệu đồng so với S26, nhưng vẫn giữ trải nghiệm flagship mạnh mẽ và toàn diện.