Mẫu nhà cấp 4 khoảng 150 triệu đẹp mê ly dẫn đầu xu hướng 2020

Mẫu nhà cấp 4 khoảng 150 triệu đẹp mê ly dẫn đầu xu hướng 2020

Để xây nhà cấp 4 khoảng 150 triệu bạn nên tham khảo chi phí và các mẫu nhà đã thi công dưới đây để có sự tính toán phù hợp nhất.

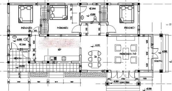
150 triệu tuy không phải số tiền lớn nhưng cũng đủ để bạn có thể xây dựng 1 căn nhà cấp 4 hoàn chỉnh với 2 phòng ngủ, 1 phòng khách và 1 nhà vệ sinh trong diện tích đất 80m2.
150 triệu tuy không phải số tiền lớn nhưng cũng đủ để bạn có thể xây dựng 1 căn nhà cấp 4 hoàn chỉnh với 2 phòng ngủ, 1 phòng khách và 1 nhà vệ sinh trong diện tích đất 80m2.
Bạn có thể tham khảo phần hạch toán chi phí thi công sau: - Chi phí xây thô và trát hoàn thiện: 80 m2 x 1,1 triệu = 88.000.000 đồng. - Đá, cát, gạch và nguyên vật liệu khác: 13.000.000 đồng. - Phần lát nền và ốp vệ sinh, bếp: 100 m2 x 60.000 = 6.000.000 đồng. - Chi phí làm cửa nhôm kính: 30 m2 x 360.000 = 10.800.000 đồng. - Phí sơn tường nội, ngoại thất nhà: 80 m2 x 4 x 12.000 = 3.840.000 đồng. - Thiết bị vệ sinh (1 phòng): 1 x 5 triệu = 5.000.000 đồng. (gồm có vòi sen, xí, bình nóng lạnh, gương, chậu rửa mặt).- Thiết bị điện cơ bản dây, công tắc, ổ cắm, bóng đè:, hệ đèn chiếu sáng là 8.000.000 đồng. - Đường ống nước: 4.000.000 đồng. - Nhân công lắp đặt điện nước: 80 m2 x 250.000 = 20.000.000 đồng. Tổng chi phí xây dựng: 157.640.000 đồng.
Bạn có thể tham khảo phần hạch toán chi phí thi công sau: - Chi phí xây thô và trát hoàn thiện: 80 m2 x 1,1 triệu = 88.000.000 đồng. - Đá, cát, gạch và nguyên vật liệu khác: 13.000.000 đồng. - Phần lát nền và ốp vệ sinh, bếp: 100 m2 x 60.000 = 6.000.000 đồng. - Chi phí làm cửa nhôm kính: 30 m2 x 360.000 = 10.800.000 đồng. - Phí sơn tường nội, ngoại thất nhà: 80 m2 x 4 x 12.000 = 3.840.000 đồng. - Thiết bị vệ sinh (1 phòng): 1 x 5 triệu = 5.000.000 đồng. (gồm có vòi sen, xí, bình nóng lạnh, gương, chậu rửa mặt).- Thiết bị điện cơ bản dây, công tắc, ổ cắm, bóng đè:, hệ đèn chiếu sáng là 8.000.000 đồng. - Đường ống nước: 4.000.000 đồng. - Nhân công lắp đặt điện nước: 80 m2 x 250.000 = 20.000.000 đồng. Tổng chi phí xây dựng: 157.640.000 đồng.
Ngoài ra khi xây dựng còn có thể chênh lệch tùy vào giá thành của khu vực nơi bạn sống và sự chênh lệch giá cả thị trường của thiết bị, nguyên vật liệu xây dựng.
Ngoài ra khi xây dựng còn có thể chênh lệch tùy vào giá thành của khu vực nơi bạn sống và sự chênh lệch giá cả thị trường của thiết bị, nguyên vật liệu xây dựng.
Nhiều thiết kế nhà cấp 4 ở nông thôn có phong cách như châu Âu mà giá thành thi công chỉ khoảng 150 triệu.(Ảnh minh họa)
Nhiều thiết kế nhà cấp 4 ở nông thôn có phong cách như châu Âu mà giá thành thi công chỉ khoảng 150 triệu.(Ảnh minh họa)
 Nhà cấp 4 nhỏ đơn giản, hiện đại, giá thành rẻ được nhiều cặp vợ chồng trẻ lựa chọn xây dựng.(Ảnh minh họa)
Nhà cấp 4 nhỏ đơn giản, hiện đại, giá thành rẻ được nhiều cặp vợ chồng trẻ lựa chọn xây dựng.(Ảnh minh họa)
Xây nhà cấp 4 khoảng 150 triệu vẫn có khoảng sân thoải mái sinh hoạt. (Ảnh minh họa)
Xây nhà cấp 4 khoảng 150 triệu vẫn có khoảng sân thoải mái sinh hoạt. (Ảnh minh họa)
Nhà cấp 4 có thể kết hợp bố trí một mảnh vườn bên cạnh tạo cảnh quan hài hòa. (Ảnh minh họa)
Nhà cấp 4 có thể kết hợp bố trí một mảnh vườn bên cạnh tạo cảnh quan hài hòa. (Ảnh minh họa)
Nhiều thiết kế nhà cấp 4 sang chảnh chẳng kém gì những ngôi biệt thự thu nhỏ.(Ảnh minh họa)
Nhiều thiết kế nhà cấp 4 sang chảnh chẳng kém gì những ngôi biệt thự thu nhỏ.(Ảnh minh họa)
Khuôn viên nhà cấp 4 với hàng rào tạo cảm giác chắc chắn. (Ảnh minh họa)
Khuôn viên nhà cấp 4 với hàng rào tạo cảm giác chắc chắn. (Ảnh minh họa)
Xây nhà cấp 4 khoảng 150 triệu nên chọn phong cách xây dựng tối giản để tránh phát sinh chi phí. (Ảnh minh họa)
Xây nhà cấp 4 khoảng 150 triệu nên chọn phong cách xây dựng tối giản để tránh phát sinh chi phí. (Ảnh minh họa)
Nhà cấp 4 có mái hiên cách điệu vẫn là mẫu nhà được lựa chọn nhiều trong năm 2019. (Ảnh minh họa)
Nhà cấp 4 có mái hiên cách điệu vẫn là mẫu nhà được lựa chọn nhiều trong năm 2019. (Ảnh minh họa)
Thay thế tường gạch bằng nhiều cửa kính tạo không gian mở cho ngôi nhà của bạn. (Ảnh minh họa)
Thay thế tường gạch bằng nhiều cửa kính tạo không gian mở cho ngôi nhà của bạn. (Ảnh minh họa)
Với những gia đình chỉ có đủ diện tích đất để xây nhà thì nên thiết kế hợp lý để tận dụng được tối da không gian sống. (Ảnh minh họa)
Với những gia đình chỉ có đủ diện tích đất để xây nhà thì nên thiết kế hợp lý để tận dụng được tối da không gian sống. (Ảnh minh họa)
Xây nhà cấp 4 khoảng 150 triệu nên chọn màu sơn đơn giản, sang trọng để vừa tiết kiệm chi phí vừa tạo cảm giác rộng rãi thoáng đạt cho căn nhà. (Ảnh minh họa)
Xây nhà cấp 4 khoảng 150 triệu nên chọn màu sơn đơn giản, sang trọng để vừa tiết kiệm chi phí vừa tạo cảm giác rộng rãi thoáng đạt cho căn nhà. (Ảnh minh họa)
150 triệu là mức chi phí tối thiểu để xây dựng, tuy nhiên bạn có thể đầu tư thêm cho phần trang trí để căn nhà trở nên hoàn hảo hơn. (Ảnh minh họa)
150 triệu là mức chi phí tối thiểu để xây dựng, tuy nhiên bạn có thể đầu tư thêm cho phần trang trí để căn nhà trở nên hoàn hảo hơn. (Ảnh minh họa)

GALLERY MỚI NHẤT

Amazon sa thải 30.000 nhân viên vì AI

Amazon sa thải 30.000 nhân viên vì AI

Amazon bước vào cuộc tái cấu trúc lớn nhất lịch sử, sa thải 30.000 nhân viên và yêu cầu 80% lập trình viên phải dùng AI mỗi tuần để tăng hiệu suất.