Cuộc đua “tứ mã”
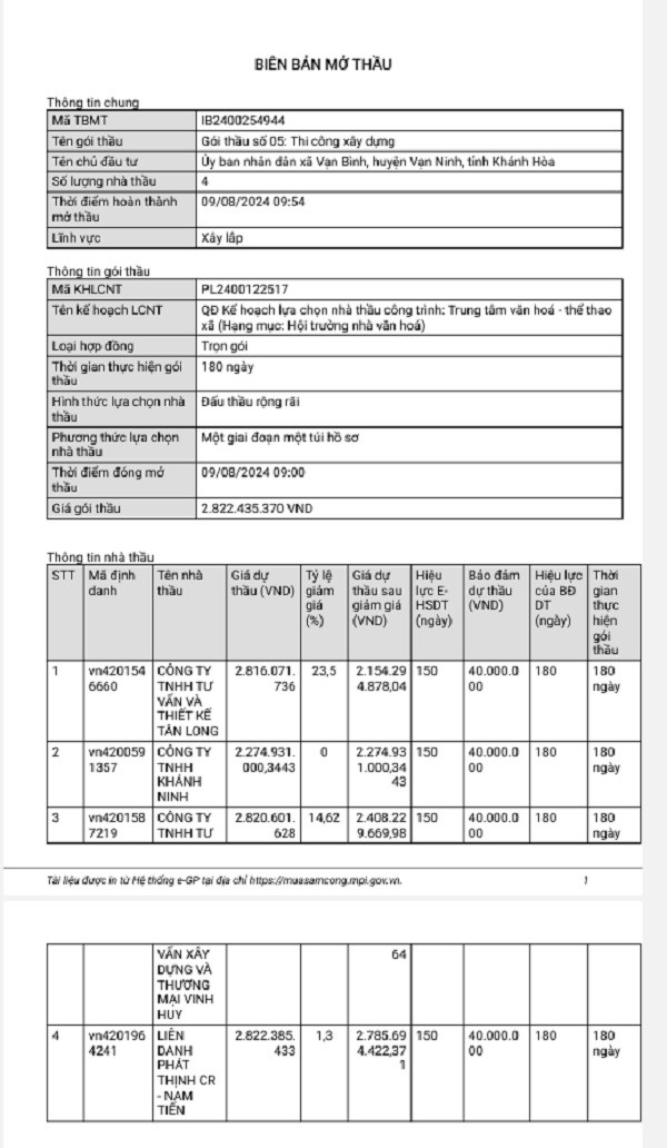
Theo Hệ thống mạng đấu thầu quốc gia (muasamcong.mpi.gov.vn), ngày 9/8/2024, UBND xã Vạn Bình, huyện Vạn Ninh (tỉnh Khánh Hòa) đã hoàn thành mở thầu Gói thầu số 5: Thi công xây dựng, thuộc Dự án Trung tâm văn hóa - thể thao - hạng mục “hội trường nhà văn hóa” xã Vạn Bình, huyện Vạn Ninh, có giá hơn 2,822 tỷ đồng.
![]() |
| Biên bản mở thầu (Nguồn: MSC) |
Được biết, Dự án Trung tâm văn hóa - thể thao - hạng mục “hội trường nhà văn hóa” xã Vạn Bình, huyện Vạn Ninh, có tổng mức đầu tư hơn 3,996 tỷ đồng. Dự án được UBND huyện Vạn Ninh phê duyệt tại Quyết định số 541 ngày 27/5/2024; nguồn vốn thực hiện được trích từ nguồn vốn ngân sách tỉnh và ngân sách huyện; giao UBND xã Vạn Bình làm chủ đầu tư và chịu trách nhiệm lựa chọn nhà thầu.
Theo Biên bản mở thầu đã công bố ngày 9/8/2024, gói thầu có 4 nhà thầu tham gia:
Công ty TNHH Tư vấn và Thiết kế Tân Long dự thầu với giá 2,816 tỷ đồng (giá sau giảm 2,154 tỷ đồng); Công ty TNHH Khánh Ninh dự thầu với giá 2,274 tỷ đồng; Công ty TNHH Tư vấn xây dựng và Thương mại Vinh Huy dự thầu với giá 2,820 tỷ đồng (giá sau giảm 2,408 tỷ đồng); liên danh Công ty TNHH Xây dựng và Thương mại Phát Thịnh CR – Nam Tiến dự thầu với giá 2,822 tỷ đồng (giá sau giảm 2,785 tỷ đồng).
Tính đến 12h ngày 12/8/2024, trên Hệ thống mạng đấu thầu quốc gia, gói thầu vẫn trong trạng thái xét thầu.
Năng lực các nhà thầu
Công ty TNHH Tư vấn và Thiết kế Tân Long (địa chỉ trụ sở thị trấn Vạn Giã, huyện Vạn Ninh, tỉnh Khánh Hòa) thành lập năm 2013; người đại diện pháp luật là Đặng Văn Quý.
Theo tìm hiểu của PV trên Hệ thống mạng đấu thầu quốc gia, từ năm 2016 đến nay, công ty đã tham gia 24 gói thầu, trong đó trúng 18 gói; tổng giá trị trúng thầu hơn 14,817 tỷ đồng (cả trong vai trò độc lập và liên danh).
Công ty TNHH Tư vấn và Thiết kế Tân Long là một trong những nhà thầu có số lượng gói thầu tham gia cao và trúng thường xuyên qua các năm, cùng giá trị không nhỏ. Đặc biệt, công ty thường xuyên tham gia và trúng các gói thầu tại tỉnh Khánh Hòa, như:
![]() |
| Quyết định phê duyệt KQLCNT gói thầu thi công xây dựng, thuộc Dự án Trường Tiểu học Vạn Hưng 2: Xây mới phòng ngoại ngữ, xây mới nhà vệ sinh học sinh, tường rào, cột cờ và sân khấu, cải tạo, sửa chữa nhà lớp 5 phòng học, sửa chữa nhà bảo vệ (Nguồn: MSC) |
Gói thầu thi công xây dựng, thuộc Dự án Trường Tiểu học Vạn Hưng 2: Xây mới phòng ngoại ngữ, xây mới nhà vệ sinh học sinh, tường rào, cột cờ và sân khấu, cải tạo, sửa chữa nhà lớp 5 phòng học, sửa chữa nhà bảo vệ; Ban Quản lý dự án các công trình xây dựng huyện Vạn Ninh (tỉnh Khánh Hòa) đã phê duyệt Công ty TNHH Tư vấn và Thiết kế Tân Long trúng thầu với giá 1,769 tỷ đồng (giá gói thầu 2,314 tỷ đồng), thực hiện trong 120 ngày, từ 22/4/2024.
![]() |
| Quyết định phê duyệt KQLCNT gói thầu thi công xây dựng, thuộc Dự án Trường Tiểu học Đại Lãnh; hạng mục: Xây mới 1 phòng học, phòng giáo dục nghệ thuật, phòng tin học, phòng ngoại ngữ, phòng y tế, nhà trực, nhà vệ sinh học sinh (Nguồn: MSC) |
Gói thầu thi công xây dựng, thuộc Dự án Trường Tiểu học Đại Lãnh - hạng mục “xây mới 1 phòng học, phòng giáo dục nghệ thuật, phòng tin học, phòng ngoại ngữ, phòng y tế, nhà trực, nhà vệ sinh học sinh”; Ban Quản lý dự án các công trình xây dựng huyện Vạn Ninh (tỉnh Khánh Hòa) đã phê duyệt Công ty TNHH Tư vấn và Thiết kế Tân Long trúng thầu với giá 1,819 tỷ đồng (giá gói thầu 2,432 tỷ đồng), thực hiện trong 110 ngày, từ 4/4/2024…
Công ty TNHH Khánh Ninh (địa chỉ trụ sở thôn Phú Ân Nam 3, xã Diên An, huyện Diên Khánh, tỉnh Khánh Hòa) thành lập năm 2013; người đại diện pháp luật là Trần Phú Khương.
Theo tìm hiểu của PV trên Hệ thống mạng đấu thầu quốc gia, từ năm 2016 đến nay, công ty đã tham gia 49 gói thầu, trong đó trúng 15 gói; tổng giá trị trúng thầu hơn 64,869 tỷ đồng (cả trong vai trò độc lập và liên danh).
Theo dõi lịch sử tham gia đấu thầu, có thể thấy, mỗi năm, đơn vị này trúng 2 - 4 gói thầu, chủ yếu tại tỉnh Khánh Hòa. Cụ thể:
![]() |
| Quyết định phê duyệt KQLCNT Gói thầu số 1: Xây lắp và thiết bị, thuộc Dự án Trường Tiểu học - THCS Suối Tiên (Nguồn: MSC) |
Gói thầu số 1: Xây lắp và thiết bị, thuộc Dự án Trường Tiểu học - THCS Suối Tiên; Ban Quản lý dự án các công trình xây dựng Diên Khánh (tỉnh Khánh Hòa) đã phê duyệt liên danh Công ty TNHH Xây dựng số 1 Diên Khánh – Công ty TNHH Khánh Ninh – Công ty CP Trí Minh – Công ty TNHH Thương mại và Dịch vụ PCCC 316 trúng thầu với giá 18,035 tỷ đồng (giá gói thầu 23,250 tỷ đồng), thực hiện trong 180 ngày, từ 31/7/2024.
![]() |
| Quyết định phê duyệt KQLCNT gói thầu thi công xây dựng, thuộc Dự án Điện chiếu sáng, vỉa hè, cây xanh đường N3, Thanh Minh 3 (Nguồn: MSC) |
Gói thầu thi công xây dựng, thuộc Dự án Điện chiếu sáng, vỉa hè, cây xanh đường N3, Thanh Minh 3; UBND xã Diên Lạc, huyện Diên Khánh (tỉnh Khánh Hòa) đã phê duyệt liên danh Công ty TNHH Khánh Ninh - DNTN Xây dựng cơ bản Việt Ngân trúng thầu với giá 2,397 tỷ đồng (giá gói thầu 2,528 tỷ đồng), thực hiện trong 45 ngày, từ 21/11/2023…
Công ty TNHH Tư vấn xây dựng và Thương mại Vinh Huy (địa chỉ trụ sở Khóm 9, thị trấn Vạn Giã, huyện Vạn Ninh, tỉnh Khánh Hòa) thành lập năm 2014; người đại diện pháp luật là Nguyễn Ngọc Vinh.
Theo tìm hiểu của PV trên Hệ thống mạng đấu thầu quốc gia, từ năm 2017 đến nay, công ty đã tham gia 88 gói thầu, trong đó trúng 65 gói, chủ yếu tại tỉnh Khánh Hòa; tổng giá trị trúng thầu hơn 116,682 tỷ đồng (cả trong vai trò độc lập và liên danh).
Một số gói thầu, đơn vị đã trúng thầu gần đây:
![]() |
| Quyết định phê duyệt KQLCNT gói thầu thi công xây dựng và thiết bị, thuộc Dự án Sửa chữa đập dâng Gò Mè, huyện Diên Khánh (Nguồn: MSC) |
Gói thầu thi công xây dựng và thiết bị, thuộc Dự án Sửa chữa đập dâng Gò Mè, huyện Diên Khánh; Công ty TNHH MTV Khai thác công trình thủy lợi Khánh Hòa (chủ đầu tư) đã phê duyệt liên danh Công ty TNHH Tư vấn xây dựng và Thương mại Vinh Huy - Công ty TNHH Đầu tư và Xây dựng 778 trúng thầu với giá 11,678 tỷ đồng (giá dự toán 12,355 tỷ đồng), thực hiện trong 300 ngày, từ 24/6/2024.
![]() |
| Quyết định phê duyệt KQLCNT gói thầu thi công xây dựng, thuộc Dự án Trụ sở làm việc UBND xã Vạn Lương (Nguồn: MSC) |
Gói thầu thi công xây dựng, thuộc Dự án Trụ sở làm việc UBND xã Vạn Lương; UBND xã Vạn Lương, huyện Vạn Ninh (tỉnh Khánh Hòa) đã phê duyệt Công ty TNHH Tư vấn xây dựng và Thương mại Vinh Huy trúng thầu với giá 8,325 tỷ đồng (giá gói thầu 8,449 tỷ đồng), thực hiện trong 200 ngày, từ 10/6/2024…
Công ty TNHH Xây dựng và Thương mại Phát Thịnh CR (địa chỉ trụ sở phường Cam Thuận, TP. Cam Ranh, tỉnh Khánh Hòa); người đại diện pháp luật là Ngô Trần Kiều Oanh.
Theo tìm hiểu của PV trên Hệ thống mạng đấu thầu quốc gia, từ năm 2023 đến nay, công ty đã tham gia 15 gói thầu, trong đó trúng 4 gói, chủ yếu của Tổng công ty CP Công trình Viettel (chủ đầu tư); tổng giá trị trúng thầu hơn 9,347 tỷ đồng (cả trong vai trò độc lập và liên danh).
Một số gói thầu, đơn vị đã trúng thầu gần đây:
Gói thầu 81-ĐTRR/VCC/2024: Thi công xây dựng hạ tầng trạm BTS tại tỉnh Khánh Hòa, thuộc Dự án Đầu tư xây dựng hạ tầng trạm BTS cho thuê năm 2024; Tổng công ty CP Công trình Viettel (chủ đầu tư) đã phê duyệt Công ty TNHH Xây dựng và Thương mại Phát Thịnh CR trúng thầu với giá 3,791 tỷ đồng (giá gói thầu 3,805 tỷ đồng), thực hiện trong 2 năm, từ 3/6/2024.
Gói thầu 84-ĐTRR/VCC/2024: Thi công xây dựng hạ tầng trạm BTS tại tỉnh Ninh Thuận, thuộc Dự án Đầu tư xây dựng hạ tầng trạm BTS cho thuê năm 2024; Tổng công ty CP Công trình Viettel (chủ đầu tư) đã phê duyệt Công ty TNHH Xây dựng và Thương mại Phát Thịnh CR trúng thầu với giá 1,276 tỷ đồng (giá gói thầu 1,288 tỷ đồng), thực hiện trong 2 năm, từ 3/6/2024…






