Điên đảo với căn hộ tí hon có chiều rộng... 100cm

Điên đảo với căn hộ tí hon có chiều rộng... 100cm

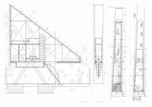
Căn hộ tí hon Keret House nằm giữa hai tòa nhà Chlodna và Zelazna, nơi hẹp nhất giữa hai tòa nhà là 92cm và rộng nhất là 152cm.

 Căn hộ tí hon hẹp nhất thế giới mang tên Keret House nằm ở thành phố Warsaw, Ba Lan là một tác phẩm sắp đặt đầy nghệ thuật và hiện đại. Khởi nguồn từ ý tưởng nghệ thuật của kiến trúc sư người Ba Lan Jakub Szczesny, căn hộ Keret House được xây dựng giữa hai cấu trúc có từ các thời kỳ lịch sử khác nhau, mang nét tổng hòa giữa quá khứ và hiện tại. Mặc dù căn hộ chỉ có chiều ngang là 122cm nhưng sự nội thất lại được bài trí không hề ngột ngạt như bạn nghĩ.
Căn hộ tí hon hẹp nhất thế giới mang tên Keret House nằm ở thành phố Warsaw, Ba Lan là một tác phẩm sắp đặt đầy nghệ thuật và hiện đại. Khởi nguồn từ ý tưởng nghệ thuật của kiến trúc sư người Ba Lan Jakub Szczesny, căn hộ Keret House được xây dựng giữa hai cấu trúc có từ các thời kỳ lịch sử khác nhau, mang nét tổng hòa giữa quá khứ và hiện tại. Mặc dù căn hộ chỉ có chiều ngang là 122cm nhưng sự nội thất lại được bài trí không hề ngột ngạt như bạn nghĩ.
Keret House cung cấp chỗ ở tạm thời cho các nhà văn, nghệ sĩ trong những chuyến du lịch đến Ba Lan. Keret House nằm giữa hai tòa nhà Chlodna và Zelazna, nơi hẹp nhất giữa hai tòa nhà là 92cm và rộng nhất là 152cm. Đó là lí do mà việc xây dựng không gian sống này ban đầu dường như là không thể. Khi căn hộ được hình thành, nơi hẹp nhất trong căn hộ là 72cm và rộng nhất là 122cm. Theo kiến trúc sư Jakub Szczesny, việc thiết kế và xây dựng căn hộ này đã mở rộng những khái niệm về những loại hình kiến trúc được cho là “không thể có” trước đây.
Keret House cung cấp chỗ ở tạm thời cho các nhà văn, nghệ sĩ trong những chuyến du lịch đến Ba Lan. Keret House nằm giữa hai tòa nhà Chlodna và Zelazna, nơi hẹp nhất giữa hai tòa nhà là 92cm và rộng nhất là 152cm. Đó là lí do mà việc xây dựng không gian sống này ban đầu dường như là không thể. Khi căn hộ được hình thành, nơi hẹp nhất trong căn hộ là 72cm và rộng nhất là 122cm. Theo kiến trúc sư Jakub Szczesny, việc thiết kế và xây dựng căn hộ này đã mở rộng những khái niệm về những loại hình kiến trúc được cho là “không thể có” trước đây.
Nội thất bên trong căn hộ tí hon được sắp xếp rất thông minh. Khu vực bếp có chiều rộng 90cm với bồn rửa thu nhỏ, chiếc cửa trượt giúp ngăn cách với phòng tắm hẹp. Bằng một chiếc thang nhỏ để lên tầng hai nơi đặt một chiếc giường có kích thước chỉ đủ cho một người nằm.
Nội thất bên trong căn hộ tí hon được sắp xếp rất thông minh. Khu vực bếp có chiều rộng 90cm với bồn rửa thu nhỏ, chiếc cửa trượt giúp ngăn cách với phòng tắm hẹp. Bằng một chiếc thang nhỏ để lên tầng hai nơi đặt một chiếc giường có kích thước chỉ đủ cho một người nằm.
Khu vực phòng khách ở tầng dưới là nơi mỏng nhất của căn hộ, nhưng không hề gây cảm giác quá ngột ngạt bởi trần cao và ánh sáng được cung cấp từ hai chiếc cửa sổ. Các kiến trúc sư đã sử dụng nhựa bán trong suốt cho mái nhà thay vì bê tông, do đó ánh sáng luôn tràn ngập căn hộ.
Khu vực phòng khách ở tầng dưới là nơi mỏng nhất của căn hộ, nhưng không hề gây cảm giác quá ngột ngạt bởi trần cao và ánh sáng được cung cấp từ hai chiếc cửa sổ. Các kiến trúc sư đã sử dụng nhựa bán trong suốt cho mái nhà thay vì bê tông, do đó ánh sáng luôn tràn ngập căn hộ.

GALLERY MỚI NHẤT

Hàng nghìn người hưởng ứng “Hành động Xanh - Chọn tương lai Xanh”

Hàng nghìn người hưởng ứng “Hành động Xanh - Chọn tương lai Xanh”

Sáng 4/4, hàng nghìn người dân và thanh niên trên khắp cả nước cùng tham gia hoạt động dọn dẹp vệ sinh khu phố và thu gom đồ dùng cũ, hưởng ứng lời kêu gọi “Hành động Xanh - Chọn tương lai Xanh” do Quỹ Vì Tương lai xanh do Tập đoàn Vingroup phát động. Đây là một trong những hoạt động tiêu biểu mở màn cho chuỗi chiến dịch “Thứ 4 Ngày Xanh” được Quỹ triển khai xuyên suốt năm 2026 với thông điệp “Hành động Xanh - Chọn tương lai Xanh”.