Những khu nhà tập thể, chung cư cũ nhiều chục năm tuổi vẫn lặng thầm tồn tại ở nhiều thành phố tại nhiều quốc gia. Những khu nhà đó có thể theo thời gian đã xuống cấp, lối thiết kế đã lạc hậu nhưng công năng vẫn đầy đủ, có lợi thế về vị trí, tiện ích, do đó những căn hộ ở đó vẫn luôn săn đón.
Dù vậy, khi dọn vào những khu nhà lâu năm đó, để phù hợp với thực tế cuộc sống, các gia chủ thường sẽ phải bắt tay vào cải tạo. Đặc biệt nếu đó là nhà của những người trẻ như cặp vợ chồng dưới đây. Căn hộ này vốn nằm trong tòa nhà xây từ năm 1955 với đặc điểm là phần ban công không có mái che và lối đi lại trong nhà rất nhỏ hẹp.
Căn hộ gần 70 năm tuổi sau khi cải tạo lại trông vô cùng thẩm mĩ và đầy đủ công năng.
Căn hộ có lợi thế về ánh sáng tự nhiên.
Để giải quyết vấn đề này, nhất là khi gia đình có một em bé nhỏ đang tuổi hiếu động, thích chạy chơi, cặp vợ chồng này đã cải tạo căn hộ theo hướng hiện đại. Họ đã phá bỏ đi những bức tường chia phòng không cần thiết để tạo ra không gian sinh hoạt thoáng, rộng, bao quát hơn. Theo đó, phòng ăn và phòng giặt đã bị đập bỏ và trở thành một phần không gian chung của nhà bếp, phòng khách, phòng ăn và ban công. Nhờ vậy mà căn hộ mới thực sự hiện đại và sức sống hơn.
Trong căn hộ mới, cửa trượt bằng thủy tinh mở ra ban công là một điểm cộng lý tưởng để các thành viên đón nắng, ngắm hoàng hôn và đêm sao lãng mạn. Nhưng dĩ nhiên, cách bài trí nhà cũng quan trọng không kém. Sau khi bỏ đi những bức tường chia phòng không còn hợp thời, không gian rộng nhất trong nhà lần lượt được dành cho bếp nấu, bàn ăn, phòng khách.
Khu bếp nhỏ nhưng được bài trí hợp lý với nhiều giải pháp lưu trữ và cất trữ thông minh.
Bồn rửa và máy giặt được giấu sau cánh tủ vừa gọn gàng, vừa thẩm mĩ.
Cách hệ tủ âm tường hoặc giàu trong tủ lưu trữ là bí quyết giúp căn hộ thêm đẹp.
Căn hộ ngập tràn ánh sáng.
Dù là không gian công cộng nhưng mỗi góc nhỏ trong phòng đa năng đều rất hợp lý. Khu tiếp khách được bố trí đối diện với góc chơi của con trẻ. 2 không gian này bổ trợ cho nhau để khi cần người lớn vẫn có thể đón khách nhưng ngày thường vẫn là góc chung để cả nhà tương tác. Trong khi đó, giá sách kiêm góc chơi của trẻ không chỉ bổ ích mà còn bổ sung thêm sắc màu cho ngôi nhà.
Trong căn hộ mới sửa, màu gỗ tự nhiên kết hợp với màu trắng chủ đạo và sàn nhà xanh lam thực sự là sự kết hợp đẹp mắt, hiện đại và tinh tế. Ngoài ra nó còn giúp những dấu vết cũ của cột, xà nhà còn lại hài hòa với tổng thể và tinh thần mới.
Việc đập bớt tường nhà giúp căn hộ thoáng, rộng, phù hợp với em bé đang tuổi khám phá.
2 phòng ngủ được bố trí ở 2 bên nên đảm bảo được sự riêng tư.
Kệ sách kiêm góc chơi đơn giản mà đẹp của trẻ.
Ban công trở thành góc thư gian siêu lý tưởng cho cả gia đình.
Căn hộ này có đến 2 nhà vệ sinh, điểm chung của 2 phòng vệ sinh này là tuy không quá rộng nhưng gọn gàng, sạch sẽ, dễ dọn dẹp.
Phòng tắm gọn gàng, sạch sẽ.
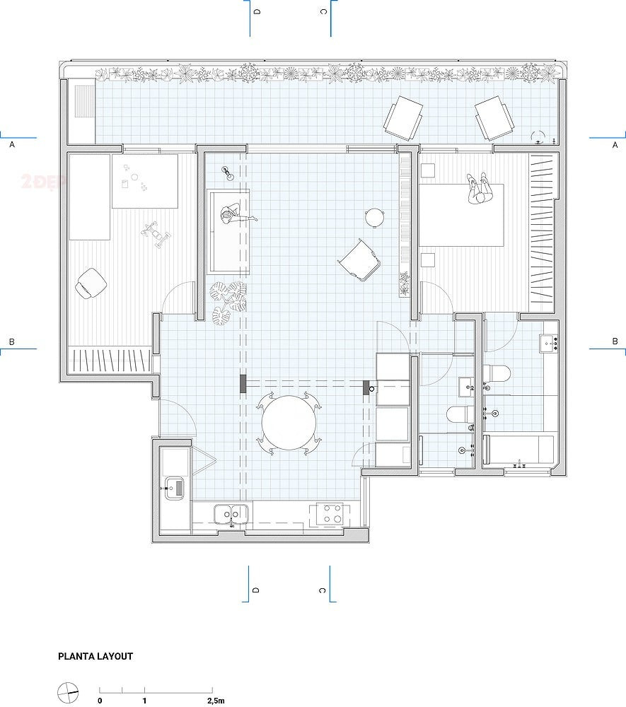
Mặt bằng căn hộ sau cải tạo.
Dù đã xây gần 70 năm nhưng sau khi cải tạo, căn hộ đã khoác lên mình một tấm áo hoàn toàn mới, năng động và hợp cho người trẻ. Không những vậy việc giữ được những nét truyền thống của khung căn hộ ban đầu nhưng vẫn thể hiện được tinh thần mới mẻ của hiện tại quả là điều đáng học hỏi ở căn hộ này!













