Xin chào chuyên mục
Em sinh năm 1992, vợ em sinh năm 1993 và mẹ em sinh năm 1969. Cuối năm em dự định sẽ xây nhà và em vừa mua 1 miếng đất nhỏ 3mx9m hướng đông nam. Em tính xây nhà cấp 4 gồm 1 trệt 1 gác đúc giả, tầng trệt sẽ là sân để xe, phòng khách và bếp. Gác đúc là 2 phòng ngủ của mẹ va vợ chồng em.
Gia đình xin cám ơn chuyên mục và rất mong chuyên mục giúp đỡ ạ!
Vinh Quang
Kiến trúc sư tư vấn:
Dựa theo những thông tin mà bạn cung cấp và yêu cầu thiết kế cho ngôi nhà, chúng tôi xin đưa ra phương án mặt bằng tư vấn thiết kế để bạn tham khảo.
![]() |
![]() |
| Mặt bằng tư vấn tầng lửng |
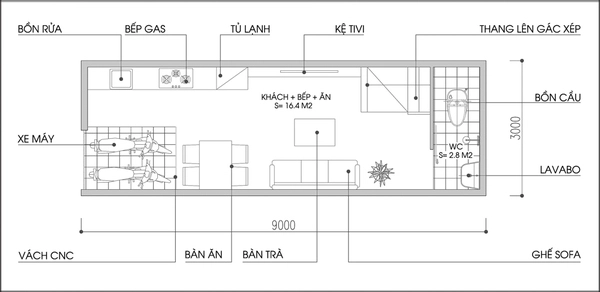
Mảnh đất của bạn về mặt tổng thể có hình dạng ống với diện tích tương đối khá nhỏ cho một gia đình có 3 người ở mà chưa kể sau này vợ chồng bạn còn sinh em bé. Tuy nhiên để sắp xếp được một không gian hợp lý, khoa học mà lại hợp phong thủy là điều không khó.
Theo mong muốn của bạn đưa ra là muốn có 1 tầng và 1 gác đúc giả có 2 phòng ngủ, vậy nên chúng tôi đưa ra phương án là bố trí gom hệ thống thang và vệ sinh thành một khối ở cuối nhà, đầu nhà sẽ được thiết kế làm sân để xe và khu vực bếp nấu nướng, khoảng giữa sẽ là không gian phòng khách và ăn. Gác đúc giả sẽ được bố trí 2 phòng ngủ thoáng mát đầy đủ ánh sáng với những đồ nội thất cơ bản.
Tầng 1, bước vào nhà là 1 khoảng không gian nhỏ được bố trí để xe máy, cạnh đó là gian bếp để phục vụ nấu nướng , phía trên không gian bếp được thiết kế cửa sổ giúp thông thoáng và khử mùi dầu mỡ. Vào đến khoảng giữa là không gian sinh hoạt chung gồm phòng khách và ăn. Đối với phòng khách khá nhỏ như vậy, sử dụng những đồ nội thất sáng màu sẽ làm không gian rộng rãi và thoáng hơn rất nhiều. Vệ sinh được bố trí cuối nhà với hệ thống cửa trượt giúp tiết kiệm diện tích.
Lên gác lửng với hệ thống thang chạy quanh tường cùng với khoảng thông tầng giúp không gian cuối nhà đỡ bí bách và thoáng mát hơn. Không gian riêng trên tầng lửng được chia làm 2 phòng ngủ. Phòng ngủ của 2 vợ chồng được bố trí những đồ nội thất cơ bản như giường ngủ đôi, tủ quần áo, kệ tivi, táp đầu giường hoặc có thể là bàn phấn trang điểm, được thừa hưởng ánh sáng từ cửa sổ phía trước nhà nên phòng luôn tràn ngập ánh sáng. Phòng ngủ còn lại là dành cho mẹ của bạn với những đồ nội thất cơ bản như giường ngủ đơn, tủ quần áo và nên bố trí tivi treo tường nếu có thể.
Bạn sinh năm 1992 là thuộc mệnh Kim, vì vậy bạn nên sử dụng những đồ nội thất sáng màu như màu trắng hoặc vàng, không nên sử dụng màu đỏ. Bạn cũng có thể mang một chút thiên nhiên vào trong căn nhà bằng cách bố trí những chậu cây xanh nhỏ, điều đó sẽ giúp cho không gian thêm thoáng và mát hơn. Ngoài ra sử dụng giấy dán tường họa tiết hay những đồ decor cũng sẽ giúp ngôi nhà thêm ấm áp và thú vị hơn rất nhiều.
Hy vọng với phương án bố trí này sẽ đáp ứng được tiện nghi cũng như nhu cầu sinh hoạt của bạn và gia đình. Sau đây là một số hình ảnh tham khảo giúp bạn hình dung không gian sống của mình được tốt hơn.
![]() |
| Phòng khách được sử dụng những đồ nội thất sáng màu. |
![]() |
| Ghế sofa nhỏ xinh với tone màu sáng là lựa chọn hoàn hảo cho phòng khách của bạn. |
![]() |
| Bàn ăn nhỏ gọn với tone màu sáng. |
![]() |
| Hệ tủ bếp áp sát tường giúp lối giao thông mạch lạc và không gian thông thoáng. |
![]() |
| Nhà vệ sinh được bố trí dưới gầm cầu thang giúp tiết kiệm diện tích. |
![]() |
| Phòng ngủ master thoáng đãng, tràn ngập ánh sáng |
![]() |
| Phòng ngủ của bà với những đồ nội thất đơn giản. |








