Chuyên mục thân mến!
Gia đình tôi đang sống trong căn hộ chung cư khoảng 60m². Nhà chỉ có 1 phòng ngủ nhưng do nhu cầu sinh hoạt nên tôi cần cải tạo để có thêm 1 phòng ngủ nữa. Nhờ chuyên mục tư vấn cải tạo đồng thời hướng dẫn tôi cách bố trí nội thất hợp lý để căn hộ được thông thoáng, tiện dụng. Xin trân trọng cảm ơn!
(Thanh Hoa - Hà Nội)
Kiến trúc sư tư vấn:
Dựa theo những thông tin mà bạn cung cấp và yêu cầu thiết kế cho ngôi nhà, chúng tôi xin đưa ra phương án mặt bằng tư vấn để bạn tham khảo.
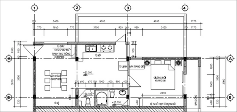
![]() |
| Mặt bằng hiện trạng. |
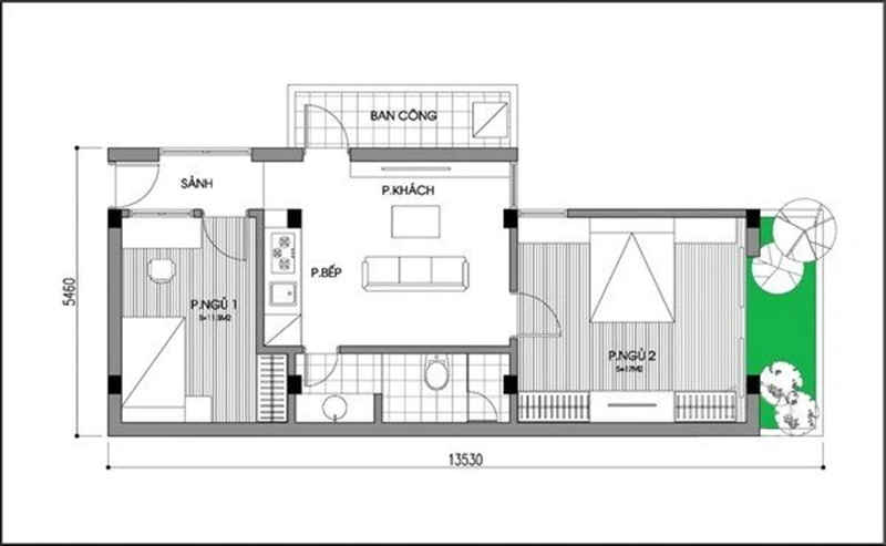
![]() |
| Mặt bằng tư vấn. |
Căn hộ của bạn tuy không quá rộng nhưng lại có 2 mặt thoáng, do vậy sẽ không khó để cơ cấu thêm 1 phòng ngủ. Với phương án cải tạo, phòng ngủ được cơ cấu thêm sẽ bố trí ở phòng khách cũ. Phòng ngủ nhỏ này sẽ được mở một cửa sổ lớn lấy sáng từ cửa sổ phía đối diện. Bàn làm việc hoặc bàn học được ưu tiên bố trí gần cửa sổ. Trong phòng còn được bố trí một chiếc giường, tủ đầu giường và một tủ quần áo âm tường.
Phòng khách, bếp và ăn được kết hợp trong một không gian chung. Khu vực vệ sinh của bạn có diện tích không quá lớn, nếu chia thành 2 phòng vệ sinh nhỏ, không gian sử dụng sẽ bị hạn chế, do vậy bạn có thể cải tạo 2 phòng vệ sinh nhỏ thành 1 phòng vệ sinh lớn. Phòng ngủ lớn về cơ bản sẽ không có gì thay đổi.
Về màu sắc, bạn nên dùng các gam màu sáng cho tổng thể căn hộ và sử dụng một số màu sắc nổi bật như xanh, vàng, đỏ để làm điểm nhấn vào đồ nội thất. Việc chọn những món nội thất cũng nên ưu tiên tính tiện dụng, gọn nhẹ lên hàng đầu.
Hy vọng với các phương án bố trí này sẽ đáp ứng được tiện nghi cũng như nhu cầu sinh hoạt của bạn và gia đình. Sau đây là một số hình ảnh tham khảo giúp bạn hình dung không gian sống của mình được tốt hơn.
![]() |
| Ghế sofa nhỏ gọn cho phòng khách có diện tích khiêm tốn. |
![]() |
| Tủ tivi nên được thiết kế đa năng và có khả năng lưu trữ. |
![]() |
| Tủ bếp nhỏ gọn nhưng được tích hợp đầy đủ công năng cần thiết. |
![]() |
| Phòng ngủ nhỏ với màu sắc nhẹ nhàng, giường ngủ được tích hợp thêm tủ và ngăn chứa đồ tiện dụng. Bạn có thể thay cửa gỗ bằng cửa kính để giúp phòng trông thoáng hơn nhưng vẫn đảm bảo tính riêng tư. |
![]() |
| Phòng ngủ lớn được thiết kế tràn ngập ánh sáng. |
![]() |
| Phòng vệ sinh sử dụng tone màu ghi sáng sạch sẽ. |







