
Vợ chồng trẻ mua căn hộ cũ, chi thêm 200 triệu cải tạo lại đẹp lung linh
“Vì ít tiền nên chúng tôi chọn tìm căn hộ cũ đã qua sử dụng. Căn hộ có giá tiền 1,5 tỷ đồng. Hiện trạng căn nhà khi mua khá cũ kỹ, công năng sử dụng cũng chưa đúng ý, nên ngoài tiền mua nhà tôi quyết định chi thêm 200 triệu cải tạo toàn bộ căn hộ” – anh Trung chia sẻ.
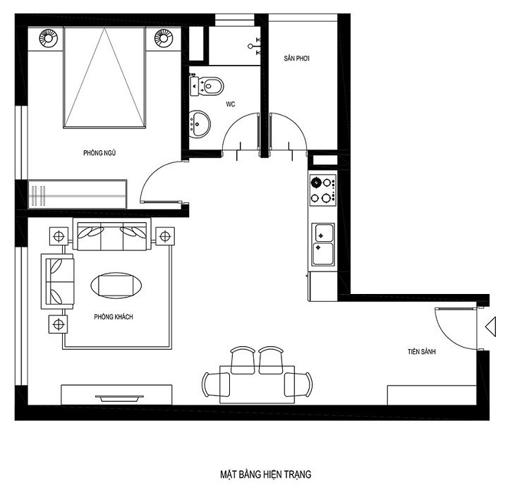
Yêu cầu đầu tiên của vợ chồng anh là căn hộ phải có 2 phòng ngủ. Ngoài ra, chủ nhà mong muốn có không gian nhiều ánh sáng, nội thất trẻ trung trong phạm vi kinh phí không quá 200 triệu đồng.
Sau cải tạo, căn hộ có 2 phòng ngủ phù hợp với gia đình trẻ có con nhỏ
Tận dụng nhà có nhiều ánh sáng và thoáng, anh Trung chia phòng khách hiện trạng thành phòng ngủ nhỏ cho em bé và phòng khách phía ngoài. Ngăn cách giữa hai khu vực này là vách kính, đảm bảo vừa gọn vừa giúp ánh sáng tự nhiên vẫn chiếu được tới không gian sinh hoạt chung.
Để giải quyết yêu cầu về phong cách trẻ trung và chi phí, anh Trung sử dụng vật liệu nội thất là gỗ sơn trắng kết hợp với gỗ công nghiệp. Cách sử dụng vật liệu này có thể giảm 30% kinh phí so với gỗ tự nhiên.
Vật liệu nội thất được gia chủ chọn tông màu trắng là chủ đạo
Tủ bếp được chủ nhà cải tạo chạy dài theo tường, vừa gọn vừa tiện khi nấu ăn.
Chồng thích sự ngăn nắp, gọn gàng còn vợ lãng mạn, nên nội thất tại phòng ngủ của hai vợ chồng, phòng khách đều được thiết kế trẻ trung và không quá cầu kỳ.
Phòng nhỏ của em bé được bố mẹ trẻ chăm chút theo sở thích của con với các màu sắc và đồ dùng bắt mắt.
“Tổng chi phí bao gồm cải tạo phần thô nhà và mua sắm nội thất (trừ đồ điện tử) là 200 triệu đồng. Tuy không quá nhiều nhưng đủ để “hô biến” thành một căn hộ mới tiện nghi phù hợp gia đình trẻ có con nhỏ. Tài chính hạn chế, với tổng chi phí như trên, cả hai vợ chồng tôi đều khá hài lòng với căn hộ” – anh Trung chia sẻ.
Phòng ngủ lớn gọn gàng, tràn ngập ánh sáng
Anh Trung đồng thời cũng dành 2 lời khuyên cho những cặp vợ chồng đang có dự định cải tạo lại nhà. Thứ nhất, bạn nên tìm hiểu kỹ phong cách nhà ở để diễn giải dễ dàng cho kiến trúc sư. Điều này giúp hạn chế tình huống đôi bên không hiểu ý nhau, từ đó gây lãng phí thời gian thiết kế.
Căn hộ trước và sau cải tạo
Thứ hai, bạn nên tính toán dư thời gian thi công để tiện cho việc sinh hoạt trong quá trình sửa lại nhà. Chẳng hạn như kiến trúc thông báo thi công nhà mất 2 tháng, bạn nên chuẩn bị tinh thần rằng thời gian thật có thể tăng lên khoảng 1 tháng nữa vì trong quá trình thi công, có nhiều vấn đề phát sinh nhỏ có thể xảy ra.
Ngoài ra, ông bố trẻ cho rằng, nên chọn đồ vừa đủ theo nhu cầu sử dụng cũng như phù hợp túi tiền. Thay vì chạy theo xu hướng hay chọn những đồ đạc đắt tiền, tốt nhất hãy lấy chính căn nhà và mong muốn của mình làm trọng tâm, bởi sự phù hợp luôn là trên hết.
Được biết, căn hộ sau cải tạo được gia chủ bài trí hợp lý. Các hình ảnh về căn hộ sau khi được chia sẻ, khá nhiều người để lại lời khen ngợi, có người thì cho rằng sẽ dựa theo cách cải tạo của gia chủ nhà này để cải tạo nhà của mình...