Biệt thự siêu sang nằm giữa cánh đồng lúa ai nhìn cũng mê

Biệt thự siêu sang nằm giữa cánh đồng lúa ai nhìn cũng mê

Căn nhà giống như một vùng kết nối hài hòa giữa cuộc sống hiện đại và bối cảnh đồng quê truyền thống giản dị.

Grey Palace (Cung điện Xám) nằm ở ngoại ô Yogyakarta, Indonesia.
Grey Palace (Cung điện Xám) nằm ở ngoại ô Yogyakarta, Indonesia.
 Căn nhà được bao quanh bởi cánh đồng lúa, khiến nó trở thành tâm điểm thu hút mọi ánh nhìn khi đến nơi đây.
Căn nhà được bao quanh bởi cánh đồng lúa, khiến nó trở thành tâm điểm thu hút mọi ánh nhìn khi đến nơi đây.
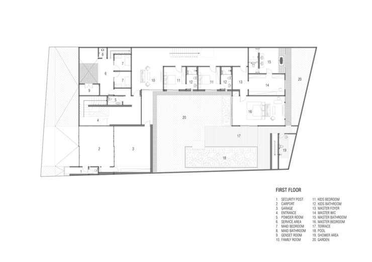
Ngôi nhà gồm hai tầng, được phân thành khu vực chung và khu riêng tư.
Ngôi nhà gồm hai tầng, được phân thành khu vực chung và khu riêng tư.
Ba khu vực chính là phòng chứa thức ăn, phòng ăn và phòng khách nằm trên tầng 2, trong khi khu vực riêng tư nằm ở tầng 1.
Ba khu vực chính là phòng chứa thức ăn, phòng ăn và phòng khách nằm trên tầng 2, trong khi khu vực riêng tư nằm ở tầng 1.
Mục đích của khu vực chung trên tầng 2 là tạo ra một sân thượng ngoài trời để mọi người có thể trải nghiệm quang cảnh xung quanh với góc nhìn cao hơn.
Mục đích của khu vực chung trên tầng 2 là tạo ra một sân thượng ngoài trời để mọi người có thể trải nghiệm quang cảnh xung quanh với góc nhìn cao hơn.
Lối vào chính được thiết kế với tiền sảnh lớn
Lối vào chính được thiết kế với tiền sảnh lớn
Thiết kế của ngôi nhà này tập trung vào các yếu tố tạo ra một tông màu đất-nhiệt đới, chẳng hạn như gỗ, đá và bê tông.
Thiết kế của ngôi nhà này tập trung vào các yếu tố tạo ra một tông màu đất-nhiệt đới, chẳng hạn như gỗ, đá và bê tông.
Mặt tiền được thiết kế với các yếu tố vững chắc để mang lại sự riêng tư và an toàn cho ngôi nhà vì vị trí vắng vẻ của nó.
Mặt tiền được thiết kế với các yếu tố vững chắc để mang lại sự riêng tư và an toàn cho ngôi nhà vì vị trí vắng vẻ của nó.
Khi bước vào khu vực riêng tư, có một sân cỏ, trồng nhiều cây nhiệt đới và một hồ bơi.
Khi bước vào khu vực riêng tư, có một sân cỏ, trồng nhiều cây nhiệt đới và một hồ bơi.
Hồ bơi được thiết kế liên thông với khu vực công cộng bằng cầu thang ngoài trời.
Hồ bơi được thiết kế liên thông với khu vực công cộng bằng cầu thang ngoài trời.
Lối đi thứ hai được thiết kế để trở thành khu vực chung có thể đi lên từ cầu thang dài dẫn đến lối vào chính.
Lối đi thứ hai được thiết kế để trở thành khu vực chung có thể đi lên từ cầu thang dài dẫn đến lối vào chính.
Khu vực bếp và bàn ăn lớn
Khu vực bếp và bàn ăn lớn
Khu vực tiếp khách - ăn uống được thiết kế theo quy hoạch mở với các yếu tố xuyên suốt để mọi người có thể phóng tầm nhìn ra xung quanh.
Khu vực tiếp khách - ăn uống được thiết kế theo quy hoạch mở với các yếu tố xuyên suốt để mọi người có thể phóng tầm nhìn ra xung quanh.
Nội thất được thiết kế mang khuynh hướng hiện đại, màu sắc ấm cúng.
Nội thất được thiết kế mang khuynh hướng hiện đại, màu sắc ấm cúng.

GALLERY MỚI NHẤT