Ngôi nhà cải tạo lấy cảm hứng từ 'tuổi trẻ lạc lối'

Lấy cảm hứng từ cuốn tiểu thuyết “Ở quán cà phê của tuổi trẻ lạc lối” (Dans le café de la jeunesse perdue) của Patrick Modiano, KTS muốn công trình là một nơi cho chính gia chủ lưu giữ tuổi trẻ của mình.

Ngoi nha cai tao lay cam hung tu 'tuoi tre lac loi'

La condé nằm trong một dãy nhà liền kề ở Huế, có tổng diện tích 300 m2. Nét thô, mộc, cũ kỹ trở thành điểm đặc biệt của ngôi nhà.

La condé nằm trong một dãy nhà liền kề được xây dựng cách đây gần 20 năm. Căn hộ có nhiều sự xuống cấp trông thấy và là một thử thách đối với đơn vị thiết kế vì không được can thiệp quá nhiều vào kết cấu của căn nhà vì sẽ ảnh hưởng đến các căn hộ xung quanh.

Ngôi nhà là một điểm nhấn tối màu giữa các căn nhà liền kề san sát giống nhau, làm cho người đi qua thì sẽ bị thu hút và níu chân lại.

Ngoi nha cai tao lay cam hung tu 'tuoi tre lac loi'-Hinh-2

Phòng studio lấy gam màu đen làm chủ đạo, sử dụng tấm kính lớn trong suốt được cố định bằng những khuôn thép vuông, tạo nên nét hoài cổ và mang ánh sáng vào nhà.

Ngoi nha cai tao lay cam hung tu 'tuoi tre lac loi'-Hinh-3

Không gian sống độc đáo, tinh tế, và hiện đại.

Ngoi nha cai tao lay cam hung tu 'tuoi tre lac loi'-Hinh-4

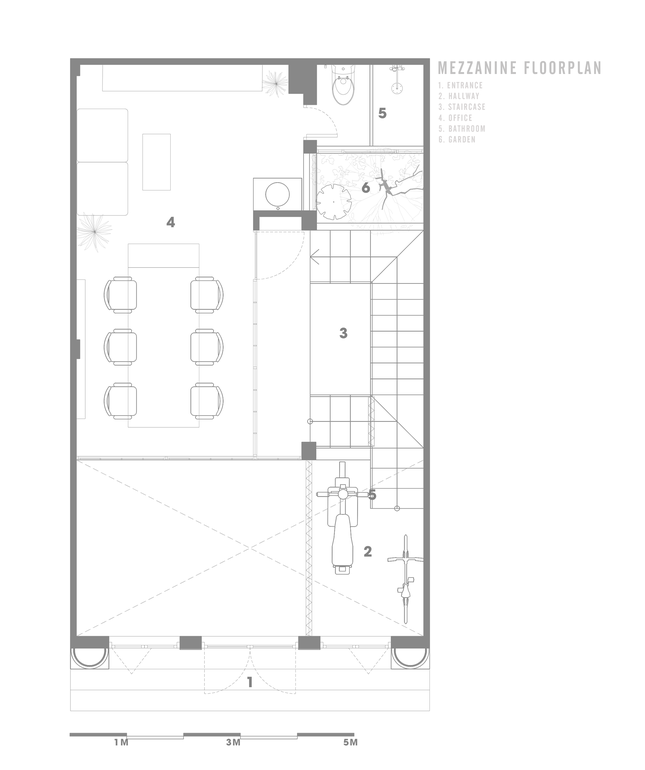
Mặt bằng tầng lửng ngôi nhà.

Ngoi nha cai tao lay cam hung tu 'tuoi tre lac loi'-Hinh-5

Mặt bằng tầng 1 ngôi nhà.

Tương phản với vẻ bề ngoài thì bên trong, gia chủ lại có thể thấy được ánh sáng qua những mảng gương lớn được đem lại từ ánh hoàng hôn.

Và trước một buổi hoàng hôn đó, trong một không gian kiến trúc được tạo nên với ngôn ngữ Industrial Loft (nhà xưởng công nghiệp), chủ nhà sẽ cảm nhận được tuổi trẻ của họ đã sôi động như thế nào, đã hoang dại như thế nào và đã lạc lối như thế nào.

Ngoi nha cai tao lay cam hung tu 'tuoi tre lac loi'-Hinh-6

Không gian sinh hoạt chung nằm gọn ở tầng 2 ngôi nhà.

Ngoi nha cai tao lay cam hung tu 'tuoi tre lac loi'-Hinh-7

Những mảng tường bị bong tróc, lộ ra phần gạch đỏ bên trong được giữ nguyên như một điểm nhấn.

Ngoi nha cai tao lay cam hung tu 'tuoi tre lac loi'-Hinh-8

Phòng khách và phòng bếp không có vách ngăn, tạo sự liền mạch trong không gian sinh hoạt.

Ngoi nha cai tao lay cam hung tu 'tuoi tre lac loi'-Hinh-9

Những mảng, gam màu thô mộc, cũ kỹ không khiến ngôi nhà trở nên dơ bẩn mà vẫn tiện nghi.

Ngoi nha cai tao lay cam hung tu 'tuoi tre lac loi'-Hinh-10

Cây xanh điểm xuyết trong ngôi nhà, tạo nên vẻ tươi mới.

Ngoi nha cai tao lay cam hung tu 'tuoi tre lac loi'-Hinh-11

Phòng khách lấy ánh sáng từ cửa kính trong suốt của phòng ngủ.

Thiết kế đã đưa vào những mảng và gam màu thô mộc, cũ kỹ nhưng không hề dơ bẩn, vẫn đầy đủ tiện nghi và công năng để phục vụ tốt cho một người chủ độc thân. Căn hộ chính là một chốn trú ẩn tuyệt vời khỏi mọi thứ u ám của cuộc đời. Đồng thời, phần tốt đẹp nhất đời họ - tuổi trẻ - cũng để lại nơi đó.

Ngoi nha cai tao lay cam hung tu 'tuoi tre lac loi'-Hinh-12

Những mảng gương lớn phản chiếu ánh sáng, khiến căn phòng trở nên ấm áp.

Ngoi nha cai tao lay cam hung tu 'tuoi tre lac loi'-Hinh-13

Cây xanh được bố trí từ ban công đến phòng ngủ, khiến không gian thêm trong lành.

Ngoi nha cai tao lay cam hung tu 'tuoi tre lac loi'-Hinh-14

Đồ nội thất đơn giản, tiện nghi.

Ngoi nha cai tao lay cam hung tu 'tuoi tre lac loi'-Hinh-15

Những chiếc đèn vàng tạo điểm nhấn trong phong cách thiết kế nhà xưởng công nghiệp.

Ngoi nha cai tao lay cam hung tu 'tuoi tre lac loi'-Hinh-16

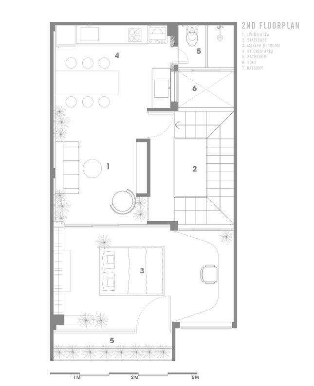
Mặt bằng tầng 2 ngôi nhà.

Căn hộ này có một phong cách thiết kế không theo trật tự tuyến tính thông thường, nhưng lại mang đến sự liền mạch và kết nối giữa khu vực chính và khu vực làm việc của chủ nhà ở tầng dưới.

Tổng thể căn hộ như một nốt nhạc trầm khác lạ trong một dãy nhà san sát giống như những dòng kẻ nhạc, khiến gia chủ tìm được sự đồng cảm về chính tuổi trẻ của chính mình. Tuổi trẻ bất thường ấy thể hiện qua phong cách kiến trúc của Le Condé và nó cũng có thể là một phần trong mỗi con người khi bước vào không gian này.

Ngoi nha cai tao lay cam hung tu 'tuoi tre lac loi'-Hinh-17

Mặt cắt ngôi nhà.

Ngoi nha cai tao lay cam hung tu 'tuoi tre lac loi'-Hinh-18

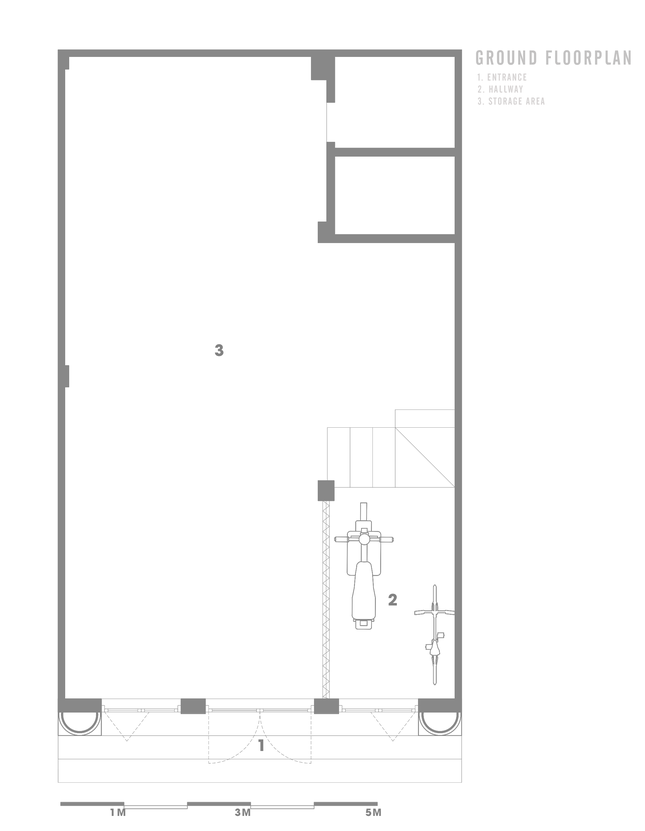
Mặt bằng tầng trệt ngôi nhà.

Đọc nhiều nhất