Chào chuyên mục!
Gia đình mình gồm có hai vợ chồng, 1 bé gái 7 tuổi, 1 bé trai gần 2 tuổi. Mình đang có nhu cầu xây nhà trên mảnh đất có kích thước 16x 5m. Nhà chỉ có 1 mặt thoáng quay ra ngõ rộng 2m, hướng Tây Nam (mình lại không hợp hướng Tây Nam) xung quanh đều có nhà.
Mong các KTS tư vấn thiết kế giúp để tôi có 1 ngôi nhà hiện đại, đủ chức năng, khoa học, hợp phong thủy. Nhà 1 tầng + 1 tum (+ 1 gác xép thích hợp càng tốt). Vợ chồng mình tuổi Tân Dậu (1981).
Chân thành cảm ơn chuyên mục.
Đinh Hương
Kiến trúc sư tư vấn:
Dựa theo những thông tin mà bạn cung cấp và yêu cầu thiết kế cho ngôi nhà, chúng tôi xin đưa ra phương án mặt bằng tư vấn để bạn tham khảo.
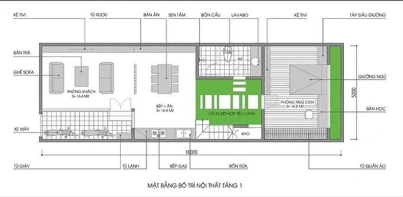
![]() |
| Mặt bằng tư vấn tầng 1 |
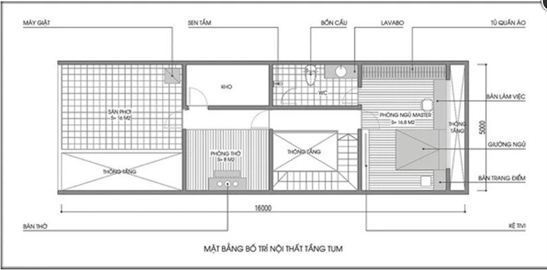
![]() |
| Mặt bằng tư vấn tầng tum. |
Mảnh đất của bạn có điểm cộng là rất vuông vức, thêm vào đó diện tích cũng khá rộng rãi nên việc sắp xếp không gian và bố trí nội thất trong nhà sao cho khoa học, đủ chức năng và hợp phong thủy người mệnh Mộc là không khó.
Theo yêu cầu của bạn đưa ra là muốn có nhà 1 tầng + 1 tum mà gia đình có 4 người, vì vậy chúng tôi đưa ra phương án là tạo không gian mở cho phòng khách, bếp và ăn, phòng ngủ con gái sẽ được bố trí ở tầng 1. Phòng ngủ master, phòng thờ và 1 kho nhỏ sẽ được bố trí trên tầng tum. Diện tích còn lại trên tầng tum sẽ được sử dụng làm sân phơi và thông tầng lấy sáng.
Bố trí lối vào từ bên phải căn nhà, bước đệm khi vào nhà là khoảng sân dài hình chữ nhật được sử dụng để xe máy, bên cạnh đó sẽ được thiết kế tủ đựng giày và những vật dụng cá nhân, đồng thời đây cũng là khoảng thông tầng để lấy sáng cho không gian phòng khách. Phòng khách được bố trí với những đồ nội thất tối màu sang trọng, hiện đại.
Sử dụng vách mỹ thuật với những đường cong uyển chuyển để ngăn chia không gian bếp ăn và phòng khách, điều đó sẽ giúp cho không gian mở thêm độc đáo và bắt mắt hơn. Khoảng giữa của ngôi nhà sẽ được bố trí vệ sinh, thang và lối đi vào phòng ngủ con gái, kết hợp với lối đi sẽ là tiểu cảnh, cây xanh trang trí giúp cho căn nhà có nhiều không gian xanh, gần gũi với thiên nhiên, phía trên sẽ là thông tầng giúp cho không gian thoáng và sạch sẽ hơn.
Phòng ngủ con gái được bố trí với những đồ nội thất cơ bản như giường ngủ, tủ quần áo, tivi và bàn học được bố trí gần cửa sổ để lấy sáng từ khoảng thông tầng phía trên. Phía sau cùng căn nhà cũng sẽ có tiểu cảnh, bố trí cây xanh, đó là giải pháp tối ưu khi xử lý góc chết, giúp cho căn nhà có một không gian độc đáo, thú vị. Phòng ngủ master cũng được bố trên tầng tum và cũng được sử dụng những đồ nội thất cơ bản như giường ngủ đôi, tủ quần áo, bàn trang điểm và bàn làm việc được ưu tiên để gần cửa sổ để lấy sáng.
Căn nhà có chiều dài khá sâu mà chỉ có một mặt thoáng quay ra ngõ, vậy nên cần phải xử lý nhiều thông tầng để đáp ứng đủ nhu cầu về không gian sống, thêm vào đó bố trí nhiều cây xanh giúp cho căn nhà luôn trong lành và gần gũi với thiên nhiên hơn.
Hai vợ chồng bạn đều sinh năm 1981 là mệnh Mộc nên cần chọn những đồ nội thất có tone màu nâu làm chủ đạo, điểm thêm một chút xanh lá sẽ làm hài hòa căn phòng. Sử dụng những đồ decor bắt mắt hay giấy dán tường sẽ làm cho căn nhà của bạn thêm thú vị và thẩm mỹ hơn.
Hy vọng phương án bố trí này sẽ đáp ứng được tiện nghi cũng như nhu cầu sinh hoạt của bạn và gia đình. Sau đây là một số hình ảnh tham khảo giúp bạn hình dung không gian sống của mình được tốt hơn.
![]() |
| Không gian mở thoáng đãng giữa phòng khách và ăn. Bộ bàn ghế sofa tối màu sang trọng, hiện đại. |
![]() |
| Bộ bàn ghế xinh xắn với tone màu phù hợp với người mệnh Mộc. |
![]() |
| Hệ tủ bếp gọn gàng, sạch sẽ, tích hợp đủ chức năng cho công việc nội trợ. |
![]() |
| Phòng ngủ master với những đồ nội thất hiện đại. |
![]() |
| Phòng ngủ con với những đồ nội thất dễ thương tinh nghịch. |
![]() |
| Phòng thờ thanh tịnh. |
![]() |
| Nhà vệ sinh với những đồ nội thất tinh tế, đẹp mắt, điểm thêm một chút cây xanh sẽ làm hài hòa không gian. |








