Ngôi nhà mang vẻ đẹp truyền thống nằm giữa lòng thủ đô

Ý tưởng chính là tạo ra một không gian ấm cúng, yên bình dành cho gia đình với phong cách thiết kế đơn giản pha trộn hơi hướng truyền thống.

Dự án có tổng diện tích 295 m2 với 3 sàn và 1 tầng mái. Ngôi nhà nằm ở thủ đô Hà Nội, mang phong cách hiện đại đơn giản nhưng có sự pha trộn yếu tố truyền thống trong kiến trúc Việt Nam cũ.

Ngoi nha mang ve dep truyen thong nam giua long thu do

Ngôi nhà nằm ở thủ đô Hà Nội, có tổng diện tích 295 m2.

KTS dùng các chi tiết trang trí mang đường nét truyền thống bằng gỗ sồi tự nhiên trên tường ở tầng 1, hay trên các đầu giường phòng ngủ.

Ngoài ra, chất liệu terrazzo được sử dụng trong thiết kế sàn tầng 1 và hành lang các tầng, cầu thang tạo cảm giác mát mẻ dễ chịu, tương phản tốt với chất liệu gỗ ấm cúng làm nên sự hài hòa của tổng thể không gian.

Ngoi nha mang ve dep truyen thong nam giua long thu do-Hinh-2

Gỗ sồi tự nhiên được dùng trên tường tầng 1, tạo nên nét truyền thống, hoài cổ.

Ngoi nha mang ve dep truyen thong nam giua long thu do-Hinh-3

Chất liệu terrazzo được sử dụng cho cầu thang, tạo cảm giác mát mẻ, dễ chịu.

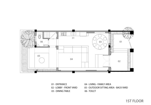
Tầng 1 là không gian sinh hoạt chung của gia đình với sân vườn trước và sau, ở giữa là không gian sinh hoạt chính được thiết kế mở liên thông của các khu chức năng phòng khách, bếp, phòng ăn và một phòng vệ sinh nhỏ. Các khu vực công năng chính được phân chia không phải bằng tường ngăn mà qua các cột cao độ khác nhau, tạo cảm giác thú vị không nhàm chán khi cùng ở trên một mặt sàn.

Ngoi nha mang ve dep truyen thong nam giua long thu do-Hinh-4

Phòng khách, bếp và phòng ăn liên thông với nhau, khiến các thành viên trong gia đình có thể dễ dàng trò chuyện.

Ngoi nha mang ve dep truyen thong nam giua long thu do-Hinh-5

Bàn ăn nằm đối diện cửa sổ, lấy ánh sáng tự nhiên.

Ngoi nha mang ve dep truyen thong nam giua long thu do-Hinh-6

Phòng ăn được trang trí kiểu ngồi bệt.

Ngoi nha mang ve dep truyen thong nam giua long thu do-Hinh-7

Các đường vân gỗ tự nhiên tạo cảm giác mộc mạc.

Ngoi nha mang ve dep truyen thong nam giua long thu do-Hinh-8

Sân sau được bố trí chỗ ngồi thư giãn cho các thành viên trong gia đình.

Ngoi nha mang ve dep truyen thong nam giua long thu do-Hinh-9

Các không gian được ngăn cách bởi những cao độ sàn khác nhau, xóa bỏ cảm giác nhàm chán.

Ngoi nha mang ve dep truyen thong nam giua long thu do-Hinh-10

Từ trên tầng 2 có thể nhìn xuống khu vườn tầng 1.

Ngoi nha mang ve dep truyen thong nam giua long thu do-Hinh-11

Mặt bằng tầng 1 ngôi nhà.

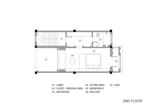
Tầng 2 có phòng ngủ chính dành cho bố mẹ. Phòng này có không gian để đồ và phòng tắm khép kín. Để có sự thông gió và ánh sáng tự nhiên, phòng này có ban công phía trước nhà nhìn ra đường nội khu và cửa sổ phía sau nhìn xuống vườn.

Ngoi nha mang ve dep truyen thong nam giua long thu do-Hinh-12

Cửa phòng ngủ được trang trí bằng gỗ nhưng không mang vẻ cứng nhắc, thô ráp.

Ngoi nha mang ve dep truyen thong nam giua long thu do-Hinh-13

Phòng ngủ chính được thiết kế đơn giản dành cho bố mẹ.

Ngoi nha mang ve dep truyen thong nam giua long thu do-Hinh-14

Cửa sổ phòng ngủ chính có hình sáng đặc biệt, như một đồng xu lớn.

Ngoi nha mang ve dep truyen thong nam giua long thu do-Hinh-15

Bên dưới cửa sổ có chỗ ngồi để gia chủ thư giãn.

Ngoi nha mang ve dep truyen thong nam giua long thu do-Hinh-16

Mặt bằng tầng 2 ngôi nhà.

Tầng 3 gồm 2 phòng ngủ của 2 con. Mỗi phòng đều có cửa sổ thông thoáng tự nhiên và phòng thay đồ khép kín. Phía ngoài là phòng tắm chung rộng và có khu vực chậu rửa mặt tách rời cho tiện sử dụng.

Tầng mái có phần trong nhà được thiết kế đặt máy giặt và sấy cũng như kho chứa một số vật dụng trong gia đình. Phần ngoài nhà là sân phơi và bố trí các hệ thống kĩ thuật.

Ngoi nha mang ve dep truyen thong nam giua long thu do-Hinh-17

Phòng ngủ tầng 3 có thiết kế cửa sổ hình đồng xu giống với phòng ngủ chính.

Ngoi nha mang ve dep truyen thong nam giua long thu do-Hinh-18

Sàn, kệ giường và tủ đầu giường đều sử dụng gỗ sồi là vật liệu chính.

Ngoi nha mang ve dep truyen thong nam giua long thu do-Hinh-19

Mặt bằng tầng 3 ngôi nhà.

Ngoi nha mang ve dep truyen thong nam giua long thu do-Hinh-20

Mặt bằng tầng mái ngôi nhà.

Đọc nhiều nhất