Xin chào chuyên mục,
Vợ chồng mình mới cưới khoảng 6 tháng và đang sống trong 1 căn phòng nhỏ với diện tích: 4,5m x 4m, đồ đạc cũng khá ít và đơn giản.
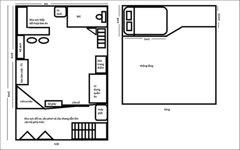
Phòng của mình thực chất là tầng trệt của 1 căn nhà 2 lầu, bên trên là phòng của vợ chồng bác mình, có cầu thang riêng bên ngoài, bên trong mỗi phòng đều có 1 gác lửng nhỏ, trước đây dùng để đồ đạc nhưng sau khi cưới vợ chồng mình đã mở rộng và cải tạo thành phòng ngủ với nệm đặt trực tiếp trên sàn.
Dù chiều cao từ sàn gác đến trần chỉ 1m15 nhưng sắp tới mình dự định có em bé vì vậy việc lên xuống gác lửng sẽ khá bất tiện vì cầu thang nhỏ và hẹp.
Mình muốn nhờ chuyên mục tư vấn cải tạo cho gia đình mình và cách bố trí nội thất căn hộ cho phù hợp hơn với gia đình có trẻ nhỏ, vừa hợp phong thủy.
Xin chân thành cảm ơn.
Trâm Nguyễn
Kiến trúc sư tư vấn:
Dựa theo những thông tin mà bạn cung cấp và yêu cầu thiết kế cho ngôi nhà, chúng tôi xin đưa ra phương án mặt bằng tư vấn để bạn tham khảo.
Mặt bằng hiện trạng.
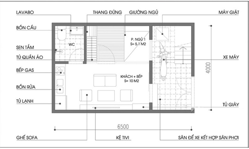
Mặt bằng tư vấn tầng 1.
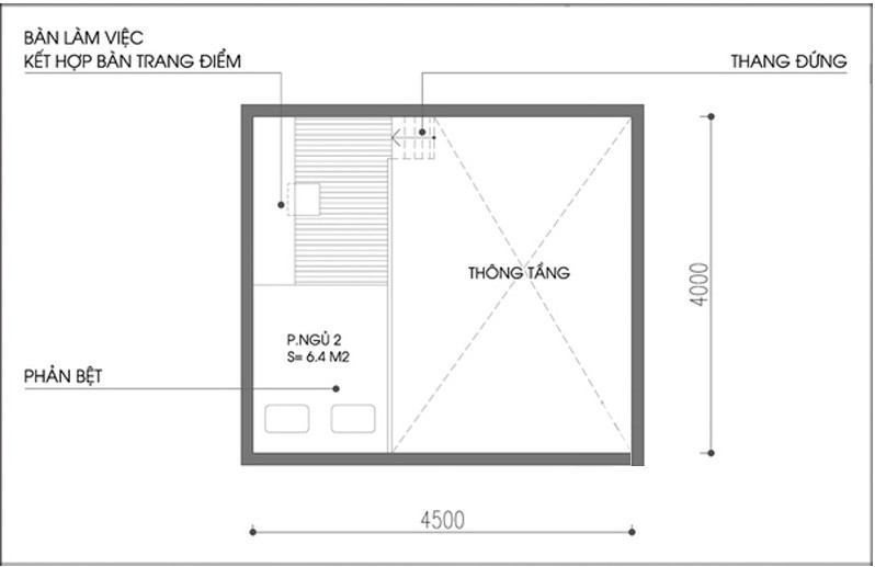
Mặt bằng tư vấn gác lửng
Căn phòng của bạn có nhược điểm là diện tích khá nhỏ, tuy nhiên có 1 điểm bù trừ lại là khá vuông vức, vì vậy không khó để biến 1 không gian nhỏ hẹp như thế này trở thành 1 không gian sống lý tưởng, thoáng mát và khoa học.
Theo yêu cầu và mong muốn của bạn đề ra thì chúng thôi sẽ đưa ra phương án là ngăn chia căn hộ thành 3 không gian. Thứ nhất là không gian phòng khách kết hợp với bếp, thứ 2 là khu vệ sinh và cuối cùng là phòng ngủ 1. Sử dụng thang đứng để lên gác lửng phía trên sẽ là không gian phòng ngủ master với những đồ nội thất cơ bản. Cách phân chia và sắp xếp các không gian như vậy sẽ giúp cho ngôi nhà có 1 không gian thoải mái và 1 cuộc sống lý tưởng.
Bước vào cổng là 1 khoảng sân nhỏ, đồng thời cũng là khoảng sảnh đệm để bước vào nhà trong. Khoảng sân này được sử dụng làm sân để xe hoặc làm sân phơi, góc phía trong có thể bố trí 1 chiếc máy giặt nhỏ để giúp tiết kiệm diện tích.
Vào trong nhà, ta sẽ được tiếp cận với không gian sinh hoạt chung gồm phòng khách kết hợp với kệ bếp đa năng. Không gian rất nhỏ, vì vậy bạn nên chọn các đồ nội thất gọn gàng, đơn giản cùng với tone màu sáng, điều đó sẽ giúp cho căn phòng có cảm giác rộng rãi và thoáng mát hơn.
Hệ tủ bếp chữ I được đặt áp sát tường giúp tiết kiệm được rất nhiều diện tích, tạo ra 1 không gian nấu nướng thoải mái và tiện nghi. Ngay cạnh bếp là khu vực vệ sinh, ở đây cũng được sử dụng những đồ nội thất với tone màu sáng, điều đó sẽ giúp cho căn phòng sạch sẽ và khô thoáng hơn.
Được ngăn chia bởi vách kính. phòng ngủ 1 được bố trí đối diện với phòng khách. Không gian sinh hoạt riêng này được sử dụng tối giản với những đồ nội thất cơ bản là giường ngủ và tủ quần áo. Tủ quần áo này sẽ được sử dụng cho cả 2 phòng ngủ để giúp tiết kiệm diện tích và tạo ra không gian thoáng cho phòng ngủ phía trên.
Sắp tới nhà bạn sinh em bé, vì vậy chúng tôi đã bố trí 1 chiếc giường đặt ở dưới tầng 1 để tiện việc chăm sóc, giúp cho 2 mẹ con không phải đi lại nhiều trên gác lửng, điều đó rất nguy hiểm. Trên gác lửng chỉ cao có 1m15, vì vậy chúng tôi đã bố trí 1 tấm phản bệt lớn thay cho chiếc giường cồng kềnh, kèm theo đó là 1 hệ bàn dài làm việc kết hợp với bàn trang điểm rất tiện ích.
Cách bố trí đồ nội thất như vậy sẽ giúp cho không gian sống thêm tiện nghi và trở nên tốt hơn sau khi nhà bạn sinh em bé. Ngoài ra bạn cũng không nên trang trí rườm ra, điều đó sẽ làm cho căn phòng thêm chật chội. Bạn có thể sử dụng giấy dán tường hay những đồ decor độc đáo và bắt mắt, nó sẽ làm điểm nhấn giúp cho căn nhà của bạn thú vị và hấp dẫn hơn.
Hy vọng với phương án bố trí này sẽ đáp ứng được tiện nghi cũng như nhu cầu sinh hoạt của bạn và gia đình. Sau đây là một số hình ảnh tham khảo giúp bạn hình dung không gian sống của mình được tốt hơn.
Sử dụng bộ ghế sofa tone màu sáng sẽ giúp cho căn phòng thêm rộng rãi hơn.
Phòng ngủ 1 tràn ngập ánh sáng với hệ cửa sổ lớn.
Gác lửng với phản bệt tiện nghi.
Nhà vệ sinh gọn gàng, sạch sẽ.