Biệt thự hiện đại có bể bơi tràn bờ độc đáo ở Nha Trang

Biệt thự hiện đại có bể bơi tràn bờ độc đáo ở Nha Trang

Có vị trí vô cùng đắc địa khi phía trước nhìn ra biển và phía sau là núi, kiến trúc sư đã thiết kế biệt thự này với mục tiêu tối ưu hoá sự trải nghiệm.

Tọa lạc tại TP. Nha Trang, biệt thự hiện đại có bể bơi này là 1 trong 3 biệt thự nghỉ dưỡng (nhà đá, nhà gỗ và nhà kính) có vị trí vô cùng đắc địa.
Tọa lạc tại TP. Nha Trang, biệt thự hiện đại có bể bơi này là 1 trong 3 biệt thự nghỉ dưỡng (nhà đá, nhà gỗ và nhà kính) có vị trí vô cùng đắc địa.
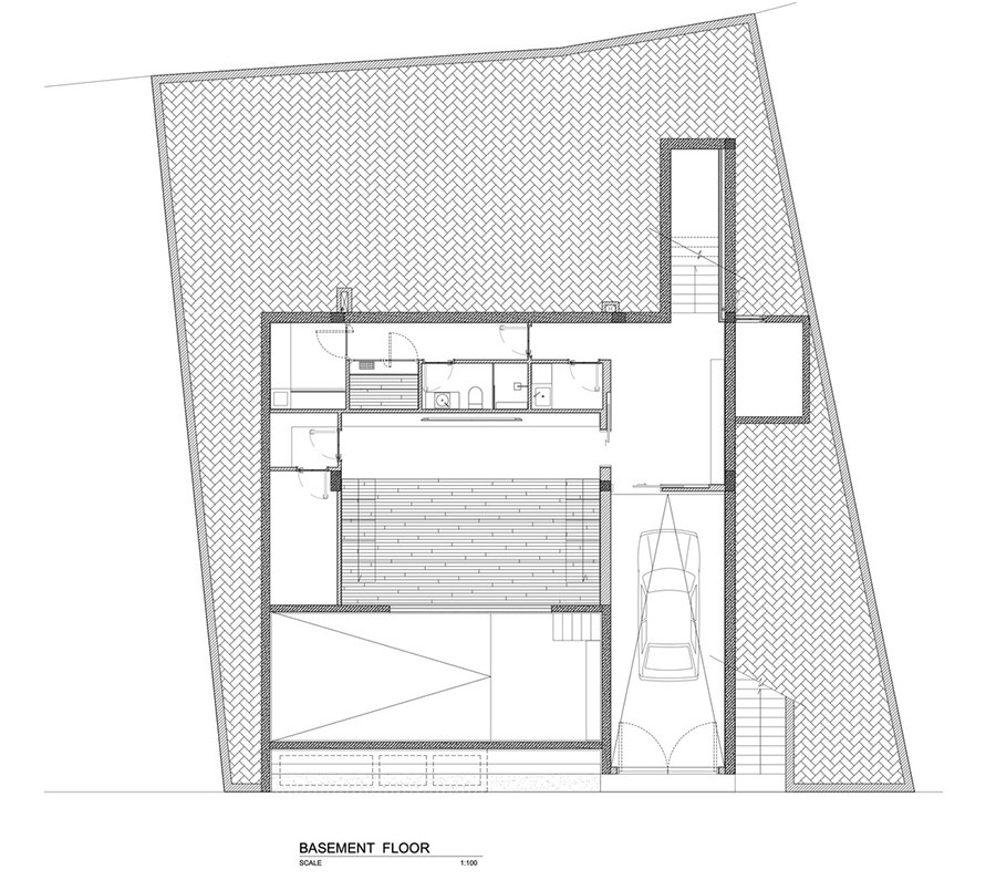
Mặt bằng chi tiết tầng hầm.
Mặt bằng chi tiết tầng hầm.
Phòng xem phim của gia đình được bố trí ở tầng hầm, có cửa sổ lấy ánh sáng từ bể bơi.
Phòng xem phim của gia đình được bố trí ở tầng hầm, có cửa sổ lấy ánh sáng từ bể bơi.
Mặt bằng chi tiết tầng 1 của biệt thự.
Mặt bằng chi tiết tầng 1 của biệt thự.
Lối vào nhà bằng cầu thang đi lên.
Lối vào nhà bằng cầu thang đi lên.
Không gian sinh hoạt chung của gia đình có tầm nhìn ra bể bơi trước nhà.
Không gian sinh hoạt chung của gia đình có tầm nhìn ra bể bơi trước nhà.
Thiết kế trần nhà cao khiến cho không gian sinh hoạt chung rất thoáng đãng.
Thiết kế trần nhà cao khiến cho không gian sinh hoạt chung rất thoáng đãng.
Bếp, bàn đảo và phòng khách liên thông với nhau.
Bếp, bàn đảo và phòng khách liên thông với nhau.
Từ không gian sinh hoạt chung có thể phóng tầm nhìn ra bể bơi, xa xa là vịnh.
Từ không gian sinh hoạt chung có thể phóng tầm nhìn ra bể bơi, xa xa là vịnh.
Quang cảnh như tranh vẽ.
Quang cảnh như tranh vẽ.
Phòng ngủ nhỏ ở phía sau của tầng 1 có không gian mở.
Phòng ngủ nhỏ ở phía sau của tầng 1 có không gian mở.
Biệt thự hiện đại có bể bơi tràn bờ độc đáo ở Nha Trang
Biệt thự hiện đại có bể bơi tràn bờ độc đáo ở Nha Trang
Cầu thang nối tầng 1 và tầng lửng.
Cầu thang nối tầng 1 và tầng lửng.
Mặt bằng chi tiết tầng lửng.
Mặt bằng chi tiết tầng lửng.
Tầng lửng được thiết kế là phòng ngủ 2 giường.
Tầng lửng được thiết kế là phòng ngủ 2 giường.
Từ phòng ngủ này có tầm nhìn ra khu vực sinh hoạt chung.
Từ phòng ngủ này có tầm nhìn ra khu vực sinh hoạt chung.
Khối phía trên của biệt thự như "hộp gỗ" treo lơ lửng.
Khối phía trên của biệt thự như "hộp gỗ" treo lơ lửng.
Tầng 2 của biệt thự là nơi bố trí 2 phòng ngủ.
Tầng 2 của biệt thự là nơi bố trí 2 phòng ngủ.
Trong đó, một phòng ngủ có khu vực vệ sinh liên thông với giường ngủ.
Trong đó, một phòng ngủ có khu vực vệ sinh liên thông với giường ngủ.
Khu vực vệ sinh gần gũi với thiên nhiên.
Khu vực vệ sinh gần gũi với thiên nhiên.
Bồn tắm nằm được đặt kế bên giường ngủ.
Bồn tắm nằm được đặt kế bên giường ngủ.
Hệ thống cửa chớp được thiết kế linh hoạt
Hệ thống cửa chớp được thiết kế linh hoạt
Biệt thự lung linh khi về đêm nhờ ánh sáng nghệ thuật từ bể bơi.
Biệt thự lung linh khi về đêm nhờ ánh sáng nghệ thuật từ bể bơi.
Toàn cảnh biệt thự hiện đại có bể bơi độc đáo về đêm.
Toàn cảnh biệt thự hiện đại có bể bơi độc đáo về đêm.

GALLERY MỚI NHẤT