Tư vấn cải tạo căn hộ 50m2 từ 1 thành 2 phòng ngủ ở Hà Nội

Ý tưởng tư vấn cải tạo căn hộ của kiến trúc sư đưa ra là thu hẹp diện tích phòng ngủ chính và loggia để có không gian bố trí phòng ngủ thứ 2.

Kính gửi chuyên mục!
Gia đình tôi hiện đang sống trong căn hộ có diện tích khoảng 50m², do nhu cầu sử dụng, chúng tôi muốn cải tạo để căn hộ có 2 phòng ngủ. Rất mong các KTS tư vấn cải tạo và hướng dẫn cách bố trí nội thất căn hộ khoa học và hợp phong thủy giúp tôi. Tôi sinh năm 1985 và chồng tôi sinh năm 1984. Xin chân thành cảm ơn!
(Đỗ Linh - Hà Nội)
Kiến trúc sư tư vấn:
Dựa theo những thông tin mà bạn cung cấp và yêu cầu thiết kế cho ngôi nhà, chúng tôi xin đưa ra phương án mặt bằng tư vấn để bạn tham khảo.
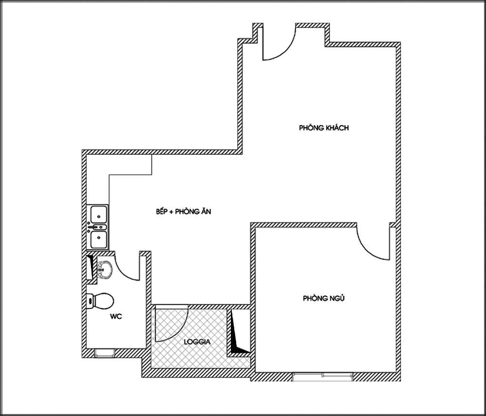
Tu van cai tao can ho 50m2 tu 1 thanh 2 phong ngu o Ha Noi
Mặt bằng hiện trạng.
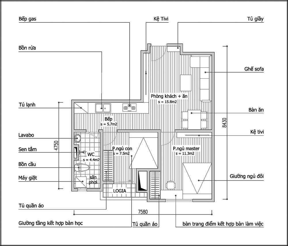
Tu van cai tao can ho 50m2 tu 1 thanh 2 phong ngu o Ha Noi-Hinh-2
Mặt bằng tư vấn.
Căn hộ của bạn vốn không rộng, lại có thêm nhược điểm là không vuông vức, thế nên nếu có thêm 1 phòng ngủ nữa, các không gian phụ sẽ bị thu hẹp lại đáng kể.
Với yêu cầu muốn có thêm 1 phòng ngủ của bạn, chúng tôi đưa ra phương án là giảm diện tích ban đầu của phòng ngủ chính và lấy thêm khoảng không gian liền kề, đồng thời thu hẹp loggia để bố trí phòng ngủ thứ 2.
Việc đưa 2 phòng ngủ vào cùng 1 phía giúp giao thông trong nhà thuận tiện hơn, đồng thời cả 2 phòng ngủ đều được tiếp cận với ánh sáng tự nhiên.
Phòng ngủ chính được bài trí những món đồ nội thất cơ bản như giường ngủ đôi, bàn trang điểm, tủ quần áo kê sát tường và bàn làm việc được bố trí gần cửa sổ để lấy ánh sáng tự nhiên. Phòng ngủ nhỏ hơn nên sử dụng những đồ nội thất như giường tầng kết hợp với bàn học, tủ quần áo.
Khối sinh hoạt chung gồm có phòng khách và ăn được kết hợp trong một không gian, ghế sofa và bàn ăn được bố trí cùng về 1 phía, nhờ vậy lối đi trở nên rộng rãi và thông thoáng hơn, bếp và vệ sinh vẫn được giữ nguyên.
Chồng bạn sinh năm 1984, thuộc mệnh Kim vì vậy bạn nên chọn các gam màu sáng như màu vàng hoặc màu trắng làm màu cơ bản. Giấy dán tường cho phòng khách và phòng ngủ màu trắng ngà với họa tiết nhẹ nhàng là gợi ý hay cho việc trang trí nội thất nhà bạn.
Hy vọng với phương án bố trí này sẽ đáp ứng được tiện nghi cũng như nhu cầu sinh hoạt của bạn và gia đình. Sau đây là một số hình ảnh tham khảo giúp bạn hình dung không gian sống của mình được tốt hơn.
Tu van cai tao can ho 50m2 tu 1 thanh 2 phong ngu o Ha Noi-Hinh-3
Phòng khách và ăn liên thông tạo được không rộng, giúp bài trí đồ nội thất dễ dàng hơn.
Tu van cai tao can ho 50m2 tu 1 thanh 2 phong ngu o Ha Noi-Hinh-4
Ghế sofa chữ L giúp tiết kiệm diện tích và tạo không gian thông thoáng hơn.
Tu van cai tao can ho 50m2 tu 1 thanh 2 phong ngu o Ha Noi-Hinh-5
Bàn ăn nhỏ xinh giúp không gian ăn uống trở nên gọn gàng, đẹp mắt.
Tu van cai tao can ho 50m2 tu 1 thanh 2 phong ngu o Ha Noi-Hinh-6
Hệ tủ bếp chữ L gọn gàng, ngăn nắp giúp cho giao thông đi lại dễ dàng.
Tu van cai tao can ho 50m2 tu 1 thanh 2 phong ngu o Ha Noi-Hinh-7
Phòng ngủ master ấm cúng.
Tu van cai tao can ho 50m2 tu 1 thanh 2 phong ngu o Ha Noi-Hinh-8
Phòng ngủ thứ 2 với giường ngủ đơn và bàn làm việc.
Tu van cai tao can ho 50m2 tu 1 thanh 2 phong ngu o Ha Noi-Hinh-9
Nhà vệ sinh sạch sẽ, thoáng mát vì được lấy sáng tự nhiên.

Đọc nhiều nhất