Mẫu biệt thự tối giản, tác phẩm “điêu khắc” vượt thời gian

Mẫu biệt thự tối giản, tác phẩm “điêu khắc” vượt thời gian

Phong cách tối giản tận dụng tối đa không gian sống một cách tiện nghi nhất, loại bỏ những chi tiết thiết kế cầu kì ở mức tối thiểu – một phong cách thiết kế lý tưởng cho không gian ấn tượng tạo ra kiến trúc vượt thời gian.

Đây là biệt thự được xây dựng để tránh xa cuộc sống đô thị.
Đây là biệt thự được xây dựng để tránh xa cuộc sống đô thị.
Mục tiêu chính của gia chủ là giữ cho tòa nhà tối giản nhất có thể, để tạo ra kiến trúc vượt qua thử thách của thời gian.
Mục tiêu chính của gia chủ là giữ cho tòa nhà tối giản nhất có thể, để tạo ra kiến trúc vượt qua thử thách của thời gian.
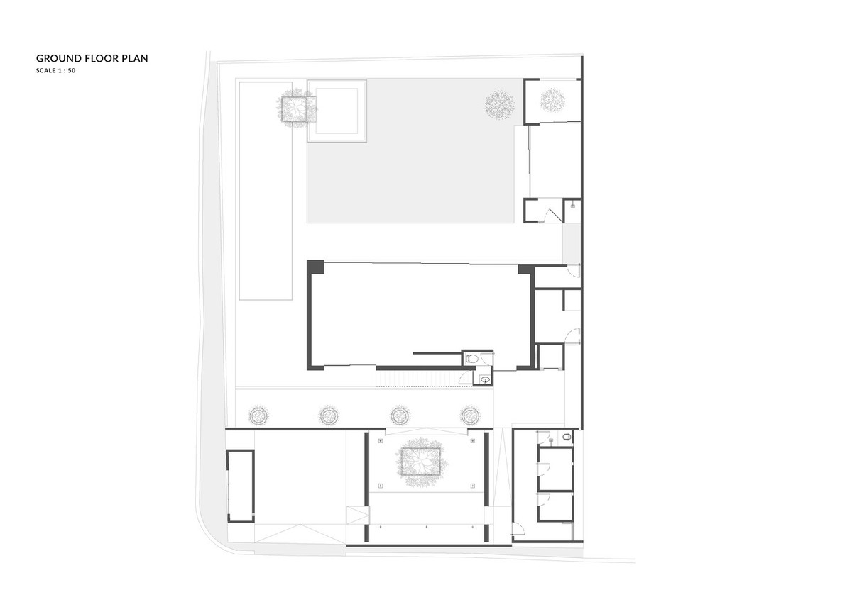
Biệt thự có một loạt các khu vực mở khác nhau ở tầng trệt, chủ yếu là khu vực sinh hoạt, ăn uống và bếp.
Biệt thự có một loạt các khu vực mở khác nhau ở tầng trệt, chủ yếu là khu vực sinh hoạt, ăn uống và bếp.
Bốn phòng ngủ nằm ở tầng hai và mỗi khu vực được sắp xếp để hòa hợp với không gian ngoài trời.
Bốn phòng ngủ nằm ở tầng hai và mỗi khu vực được sắp xếp để hòa hợp với không gian ngoài trời.
Cửa sổ phòng ngủ đóng khung một phần của cùng một góc nhìn mở rộng, tạo nên trải nghiệm ngắm cảnh tuyệt đẹp cho mỗi phòng ngủ.
Cửa sổ phòng ngủ đóng khung một phần của cùng một góc nhìn mở rộng, tạo nên trải nghiệm ngắm cảnh tuyệt đẹp cho mỗi phòng ngủ.
Khi bước vào khu nhà, mọi người sẽ được chào đón bằng một sân trong biệt lập và hồ bơi phản chiếu, sau đó tiếp tục đi qua một hành lang hẹp, dẫn đến khu vực chính.
Khi bước vào khu nhà, mọi người sẽ được chào đón bằng một sân trong biệt lập và hồ bơi phản chiếu, sau đó tiếp tục đi qua một hành lang hẹp, dẫn đến khu vực chính.
Khoảng mở dài của biệt thự dành cho khu vực sinh hoạt, để tối ưu hóa góc nhìn tuyệt đẹp của ngọn đồi để mọi người có thể thư giãn, chiêm ngưỡng chuyển động của mặt trời vào các thời điểm khác nhau trong ngày.
Khoảng mở dài của biệt thự dành cho khu vực sinh hoạt, để tối ưu hóa góc nhìn tuyệt đẹp của ngọn đồi để mọi người có thể thư giãn, chiêm ngưỡng chuyển động của mặt trời vào các thời điểm khác nhau trong ngày.
Đá địa phương được sử dụng làm một trong những vật liệu chính và được cải tiến bằng cách thêm sơn có kết cấu màu be khắp nhà và đá granit màu be.
Đá địa phương được sử dụng làm một trong những vật liệu chính và được cải tiến bằng cách thêm sơn có kết cấu màu be khắp nhà và đá granit màu be.
Vật liệu nội thất chủ yếu bao gồm gỗ sồi, tất cả được kết hợp đơn sắc để tạo cảm giác nhẹ nhàng và thư giãn.
Vật liệu nội thất chủ yếu bao gồm gỗ sồi, tất cả được kết hợp đơn sắc để tạo cảm giác nhẹ nhàng và thư giãn.